盛荟·创智产业中心
约1212-4960㎡独立红本厂房销售中


【基础信息】
【项目地址】深圳市龙华区大浪街道英泰路与华盛路交汇处
【占地面积】11176.30㎡
【可售建筑面积】79540㎡
【产权年限】50年
【套数】60套
【绿化覆盖率】30%
【停车位】358个
【建筑面积】约1212-4960㎡
【柱间距】9m X 9.6m、9m X 10m
【层数】20层
【层高】首层:6m;2-6层:5.4m;7-20层:4.5m
【荷载】首层:1.5T;2-3层:1T;4-12层:0.85T;13-20层:0.65T
【电梯】9台客梯,8台货梯,货梯:开门宽1.8m,长2.4m,荷载3T
【产品优势】
稀缺产品:可售型生产研发用房(M1),每户可独立分割,享有独立红本
高标品质:层高4.5-6米,承重0.65-1.5吨,柱距大于9米,实用率高
工业上楼:3吨货梯+每户吊装窗口,专配卸货平台和吊装平台,工业设备可上楼
企业形象:玻璃幕墙外立面+高质感铝板,高颜值、高品质彰显企业高端形象
绿色生态:采用退台式绿化、屋顶花园等生态设计理念,打造绿色生态花园式研发生产用房
【户型鉴赏】

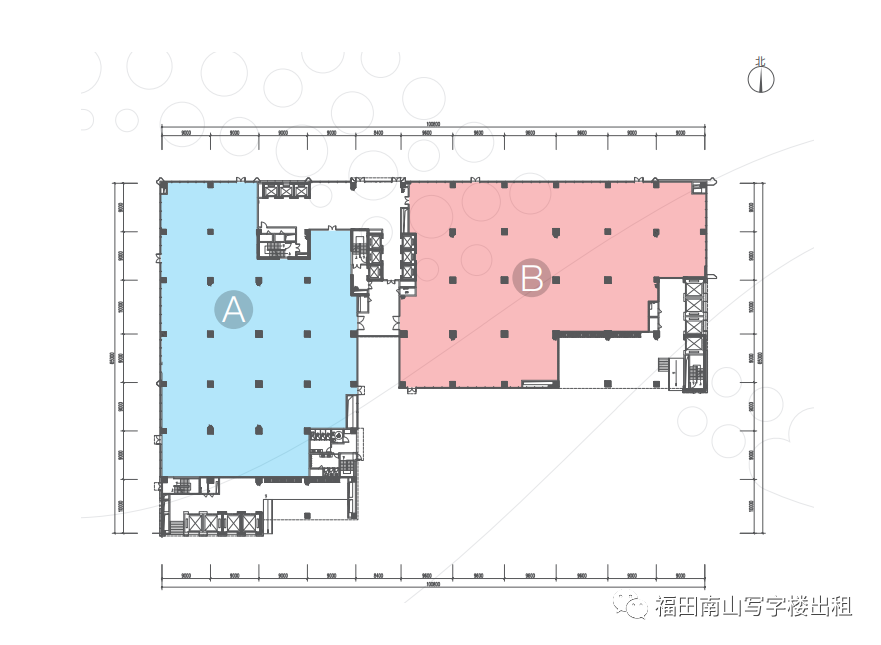
首层户型
建筑面积:A户型约2069.27㎡;B户型约2067.27㎡
卸货区:481.99㎡
层高:6m
荷载:1.5T
柱距网:9m X 9.6m、9m X 10m

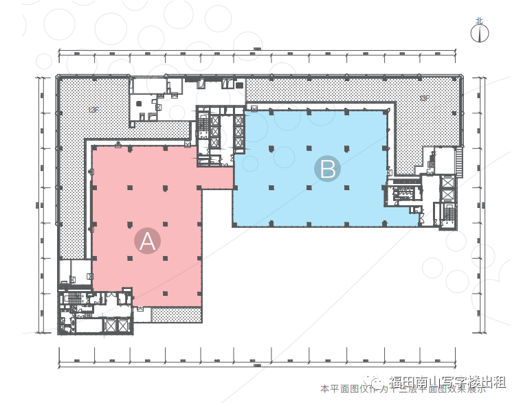
2-12层户型
建筑面积:A户型约1215.43㎡;B户型约1310.25㎡
C户型约1221.53㎡;D户型约1212.98㎡
层高:2-6层:5.4m;7-12层:4.5m
荷载:2-3层:1T;4-12层:0.85T
柱距网:9m X 9.6m、9m X 10m
货梯:8台;尺寸:开门宽1.8m,长2.4m,荷载3T
客梯:9台;荷载1.35T

13-19层户型
建筑面积:A户型约1395.56㎡;B户型约1437.18㎡
层高:13-19层:4.5m
荷载:13-19层:0.65T
柱距网:9m X 9.6m、9m X 10m
货梯:4台;尺寸:开门宽1.8m,长2.4m,荷载3T
客梯:6台;荷载1.35T
13层退台面积:约1793.52㎡
【项目价值】
区域价值:大湾区国际化创新型中轴新城
深圳“十四五”规划对龙华的定位为深圳中部综合服务中心、大湾区国际化创新型中轴新城,与南山/罗湖/福田中心并驾齐驱;
数字经济圈中央活力区

交通价值
轨道交通:临近地铁25号线华富站(规划中)、地铁6号线羊台山东站(2KM),通达全市各个区域




