点击
蓝
字
关注我们吧!

暑期结束
新学期开始,新的一起CAD机械制图开班了
如果你还在为工作发愁

创硕教育《AutoCAD工程制图班》



随着自动化机械的快速发展,工程制造、机械设计、室内设计等行业对CAD的专业人才需求快速增长,就业前景和就业空间非常可观。
CAD制图软件
AutoCAD软件是由美国欧特克有限公司(Autodesk)出品的一款自动计算机辅助设计软件,可以用于绘制二维制图和基本三维设计,通过它无需懂得编程,即可自动制图,因此它在全球广泛使用,可以用于土木建筑,装饰装潢,工业制图,工程制图,电子工业,服装加工等多方面领域。

01
CAD高级制图培训
市场需求量

就业面广
学会CAD,可从事六大热门行业


03
成为真正的CAD设计师,不止是学软件

1.AUTOCAD工作界面介绍 2.设置CAD绘图环境
3.在CAD中图形文件的管理 4.绘图精度的控制
5.设置绘图图纸的尺寸大小 6.认识世界坐标系和用户坐标系
7.设置用户坐标UCS的选项 8.设置对象捕捉功能

图形的绘制方法
掌握AutoCAD图形的绘制方法,掌握直线、多线、多段线、正多边形、矩形、圆弧、圆、圆环、样条曲线、椭圆;熟悉其它命令。
图形的编辑
掌握删除、复制、镜像、偏移、阵列、移动、旋转、缩放、拉伸、拉长、修剪、延伸、打断、合并、倒角、圆角、多段线、样条曲线和多线的编辑、分解、特性、特性匹配命令。


1. 认识CAD轴测图;
2. 设置轴测图模式;
3. 绘制轴测图技巧和注意事项;
4. 绘制轴测截面图。

1. AUTOCAD三维模型的分类
2. 三维坐标系
3. 设置视图
4. 如何创建实体
5. 如何通过二维图形创建实体
6. 对于三维模型的修改调整以及观看

1. 文本样式和编辑
2. 文本标注
3. 表格
4. 标注规则与尺寸组成
5. 尺寸样式
6. 引线标注

1. cad模型空间和布局空间;
2. cad使用布局向导创建布局;
3. cad使用浮动窗口观察图形;
4. cad将图形发布到WEB页的方法。

04
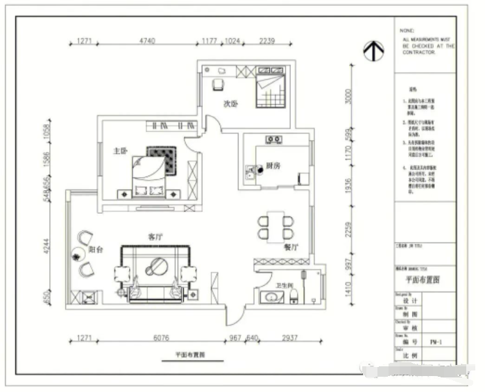
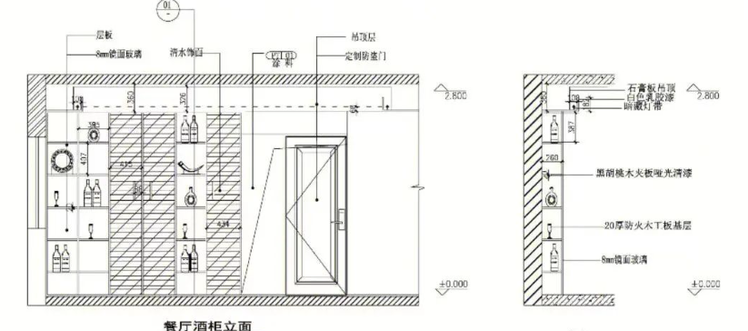
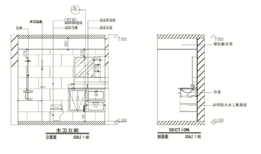
CAD家装施工图赏析










学校地址:人民路与陵西大街交叉口鑫岭大厦808
咨询电话:13373209193
更多课程展示










