


项目亮点


产业定位

以“智能制造”为产业核心驱动,聚焦“智能装备、电子信息”等相关产业细分产业类型。

项目技术指标表

规划总用地面积:约25亩
总建筑面积:约69116㎡
容积率:4.0
最大层数:13层
总停车位:130个(地上81个,地下49个)
工程节点:
封顶时间:2023年9月底
交付时间:2024年5月底

项目基础指标

智能工厂
1200-1600-2500㎡
1#/2#/3#首层7.9米,2-4层6米,5-11层4.5米4#首层6米,2-10层4.5米,11-13层4米
1#/2#/3#首层2T/㎡,2-4层1.2T/㎡,5-11层0.85T/㎡
4#首层1.2T/㎡,2-13层0.85T/㎡
8.9m*9.4m
1#/2#:1台3T+1台5T货梯、1台消防梯
3#:2台5T货梯、1台消防梯
4#:1台3T货梯、1台消防梯



便捷交通

1站南城 畅融湾区1小时经济圈
作为水乡首站,多轨对接深广,水陆交通路网发达。泓海科技产业谷,近享港口大道与外环路交汇便捷,可快速接驳水乡大道、东莞大道、京港澳高速、地铁2号线、莞惠城轨等,而且规划中的东莞地铁12号线规划预留道滘蔡白站,1站到南城,快捷畅融湾区1小时经济圈。

完善配套

2公里通勤半径 尽揽丰盛配套
三屯工业产业园、蔡白第一工业区等
陈屋小学、三屯小学、济川小学、道滘中心小学分校等
三屯公园、后底岭公园、蔡白湿地公园等
沿海丽水佳园、新里城、金地城南艺境、中海凤凰熙岸等
大众时代广场、万达广场、三屯商业街、万科生活广场等
运营服务中心、行政商务•市场拓展•特色金融•物业管理•人力资源五大功能配套、智能餐厅、便利店等

天赋优质

工改先行园区 50年产权高标智造港
作为道滘工改先行项目,泓海科技产业谷,优享片区M1产业用地,以50年红本独立产权,缔造企业优质恒产。
园区精筑高标制造厂房,可轻松实现工业上楼,高拓空间可按需灵活扩容,及独立分割产权,从而实现企业使用价值与资产价值双优。

货物实现高效快进快出
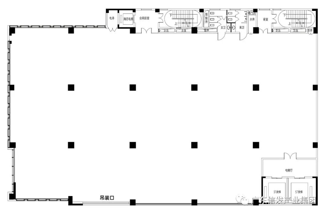
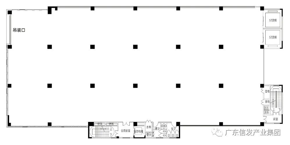
园区客货流线清晰,多通道货运路线,满足多尺寸、多辆货运车辆通行;规划超宽装卸车位及独立装卸货平台,实现货物高效快进快出。

轻松实现工业上楼智造所需
1#、2#配备 1台3T+1台5T高承载货梯,3#配备2台5T高承载货梯,从而实现了生产设备和产品“一键上下楼”、“全维度交互传送”。

未来发展空间不易受限
1#、2#、3#首层7.9m,2-4层6m,5-11层4.5m, 可安放大型自动化生产设备,也可装置大型机械手臂, 为企业未来设备升级预留想象空间!

满足企业生产多样化需求
1#、2#、3#首层2T/㎡,2-4层1.2T/㎡,5-11层850KG/㎡;4#首层1.2T/㎡,2-13层850KG/㎡,可满足制造企业开展各类大型生产与研试, 堪称产研展贸一体全能空间。

生产产线布局灵活通畅
利于大型生产设备安放,生产灵活布线,生产搬运不再拥挤局促,生产空间宽阔通畅,更好提高生产效率与实现产能提升。




