

2025年2月26日21时15分左右,南通超远新材料有限公司的一名工人在开展搅拌罐清洗作业时发生窒息事故,造成1人死亡1人受伤,直接经济损失190.7万元。
依照《中华人民共和国安全生产法》和《生产安全事故报告和调查处理条例》(中华人民共和国国务院令第493号)等有关法律法规,2月27日,元宝山区人民政府成立了由区应急管理局、区公安分局、区纪委监委、区总工会、区人社局、风水沟镇人民政府等单位有关负责同志组成的南通超远新材料有限公司“2·26”一般中毒窒息事故调查组(以下简称事故调查组),开展事故调查工作。
事故调查组按照“四不放过”和“科学严谨、依法依规、实事求是、注重实效”的原则,通过现场勘查、调查取证、询问谈话、综合分析等多种方式,查明了事故发生的经过、发生原因、人员伤亡情况及直接经济损失,认定了事故性质和责任,提出了对有关责任人和责任单位的处理意见。同时,调查组举一反三,深入剖析事故暴露的突出问题,总结事故主要教训,提出了事故整改和防范措施建议。
一、事故性质认定
经调查认定,南通超远新材料有限公司“2·26”一般中毒窒息事故是一起生产安全责任事故。
二、事故基本情况
(一)事故发生单位情况
南通超远新材料有限公司,成立于2020年3月26日,统一社会信用代码:91320612……,法定代表人:董**,注册地址:南通高新区……,经营范围:工程和技术研究和试验发展;技术服务、技术开发、技术咨询、技术交流、技术转让、技术推广;生物化工产品技术研发;专用化学产品销售(不含危险化学品);化工产品销售(不含许可类化工产品);自然科学研究和试验发展;生物基材料技术研发;生物基材料销售(除依法须经批准的项目外,凭营业执照依法自主开展经营活动)限分支机构经营:专用化学产品制造(不含危险化学品)。
2021年南通超远新材料有限公司负责人董**在网上找寻租赁厂房,后经人介绍,与元宝山区风水沟镇下坎子村口头商定达成厂房租赁事宜。由于经济效益差,企业于2024年停产,停产后厂房内存有部分原材料及半成品,2025年企业负责人董颖超打算清理设备内残渣后拆除设备并搬离。事发企业共5人,企业负责人董*超及其雇佣的死者潘*虎、伤者潘*丰及其父亲潘*学、妻子张*芳等五位工人,企业主要负责人董*超直接安排工人进行作业,全面负责企业生产技术和安全管理工作。
(二)安全管理情况
企业负责人董颖超在租赁的厂房内做涂料添加剂等新材料的研发及销售,采用将单丁基氧化锡、己二酸作为原料投入搅拌罐内,加入椰子油酸锡、大豆油作为分散剂进行搅拌生产,搅拌均匀后形成成品。若搅拌罐内挂壁结块,则使用甲醇进行浸泡后清理,大部分物料结块会脱落,少部分需要人工清理。甲醇由企业负责人董*超从沈阳、广东、湖北等地的产品工厂或者贸易公司购进;企业未对员工进行安全操作培训,未组织开展应急演练,未对作业场所进行风险辨识及员工对应急处置程序不熟悉。
(三)事故现场情况
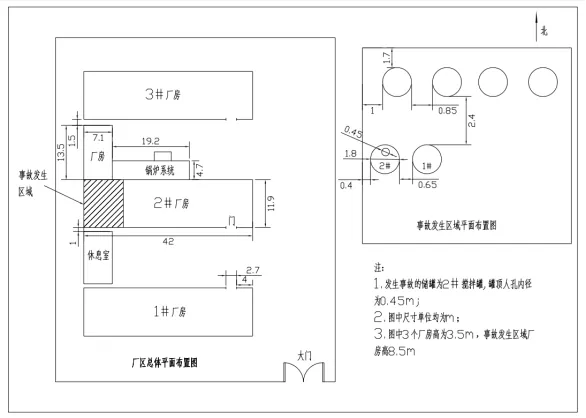
事故发生现场地址为赤峰市元宝山区风水沟镇下坎子村,老公营子煤矿北侧的厂房,事发地点位于该企业2#厂房西侧2#搅拌罐内。该搅拌罐直径1.8米、高3米左右,罐顶人孔内径为0.45米,罐顶人孔及罐底物料排放口打开,罐内有部分残留的固体涂料助剂,人为放置的可移动金属爬梯直通罐底。

图1 企业平面图及事发2#搅拌罐平面示意图


图2 事发2#搅拌罐底部现场图图3 事发2#搅拌罐顶部现场图

图4 事发2#搅拌罐现场内部图
(四)事故发生经过
通过查验事故现场和询问现场作业人员等方式还原了事故经过:企业于2025年2月22日开始准备清理搅拌罐内残渣工作,向搅拌罐内注入甲醇溶液用于浸泡物料结块,25日通过罐底排放口将甲醇溶液和物料结块的混合物排出,但有部分物料结块挂壁,需要人工清理,2月26日当天董*超安排工人在罐顶平台清理搅拌罐;
21时左右工人潘*虎(事故中死亡)和潘*学在2#厂房清理2#搅拌罐内残渣,为快速完成残渣清理工作,潘*虎擅自进入2#搅拌罐内开展清洗工作;
21时15分左右潘*虎因为窒息晕倒在2#搅拌罐内,潘*丰赶到现场后进入到搅拌罐内开展救援,但未将潘*虎救出,自身也由于窒息晕倒在搅拌罐内。
(五)人员伤亡情况
本次事故共造成1人死亡1人受伤,依据《企业职工伤亡事故经济损失统计标准》(GB6721-1986),本次事故直接经济损失为人民币190.7万元。

三、事故应急处置情况及评估情况
(一)事故现场应急处置情况
21时15左右潘*丰接到潘*学电话,潘*丰随即电话联系董*超,潘*丰到达事故现场,进入到搅拌罐内展开救援,但未将潘*虎救出,自身也由于窒息晕倒在搅拌罐内。
21时16分左右董*超接到潘*丰电话后,呼叫安庆镇居民崔*学到现场帮忙,董*超到达事故现场后,立即安排潘*学启动储水罐给水泵,通过2#搅拌罐人孔向罐内注水进行冲洗,罐底打开将水排出,同时采用移动式通风机通过2#搅拌罐人孔进行通风换气后,董*超进入罐内与罐外崔*学和潘*学将两人救出,并在罐顶平台通过人工呼吸等方式对两人进行救治。
21时56分119到达现场,22时15分120救护车到现场后立即对两人紧急救治,潘振虎经抢救无效死亡,潘晓丰经抢救后转院送至赤峰市医院进行救治,无生命危险,经救治现已康复出院。
(二)医疗救治和善后情况
区应急管理局接到事故报告后,立即向赤峰市应急管理局和元宝山区人民政府报告了事故相关情况。元宝山区人民政府立即启动应急预案,组织区应急管理局、区公安分局、风水沟镇人民政府等单位开展现场救援和善后处理工作,并于2月27日成立了事故调查组,开展事故调查工作。同时积极开展善后工作,对死者进行妥善安置,做好死者善后及家属安抚工作。3月9日,事故发生单位与遇难人员家属达成赔偿协议并签订了赔偿协议书;3月19日伤者潘晓丰康复出院,3月21日事故发生单位与受伤人员家属达成赔偿协议并签订了赔偿协议书,善后处理工作结束,未引发不良舆论。
四、事故原因分析
事故直接原因:死者潘*虎擅自进入搅拌罐内开展清理作业,未进行通风置换、气体浓度检测等工作,由于甲醇挥发导致罐内甲醇蒸汽浓度较高,氧气浓度降低,致其窒息死亡。
五、有关责任单位存在的主要问题
(一)南通超远新材料有限公司
1.主要负责人履行安全生产第一责任人职责[1]不到位,未按规定组织员工安全生产教育培训,只对从业人员口头进行安全培训告知;未组织制定并落实安全生产管理制度和安全操作规程。
[1] 《中华人民共和国安全生产法》(2021年)第二十一条:生产经营单位的主要负责人对本单位安全生产工作负有下列职责:(一)建立健全并落实本单位全员安全生产责任制,加强安全生产标准化建设;(二)组织制定并实施本单位安全生产规章制度和操作规程;(三)组织制定并实施本单位安全生产教育和培训计划;(四)保证本单位安全生产投入的有效实施;......(六)组织制定并实施本单位的生产安全事故应急救援预案。
2.企业作业现场安全管理不到位,未对作业场所危险因素进行分析辨识,未制定相应安全风险管控措施,未在搅拌罐出入口等醒目位置设置明显的安全警示标志或安全风险告知牌。
3.企业落实安全生产主体责任不到位,安全管理制度落实不严格,作业现场未设置专人进行有效监护,企业应急处置救援能力不足。
六、对有关责任人员和责任单位的处理建议
(一)免于追究人员
潘*虎,南通超远新材料有限公司工作人员,对清理作业的安全风险认识不到位,擅自进入搅拌罐内部开展清理作业,对该起事故的发生负有直接责任,鉴于其在事故中已死亡,免于追究其责任。
(二)有关责任人员
董*超,南通超远新材料有限公司主要负责人,未建立健全并落实本单位全员安全生产责任制,未制定完善本单位安全生产规章制度和操作规程,未组织制定并实施本单位安全生产教育和培训计划,对事故发生负有管理责任。建议依据《中华人民共和国安全生产法》第九十五条第一项的规定,对其处上一年年收入40%的罚款,暨人民币43720.00元。鉴于其在事故发生时积极对伤者进行抢救,事后积极进行赔偿,未引发不良社会舆论,建议不追究其刑事责任。
(三)南通超远新材料有限公司
安全生产主体责任落实不到位,未对从业人员进行安全生产教育和培训[2],未组织制定安全管理制度,对安全风险隐患未采取有效管控措施,未组织开展应急演练,未在搅拌罐出入口等醒目位置设置明显的安全警示标志或安全风险告知牌,对事故的发生负有管理责任。建议依据《中华人民共和国安全生产法》第一百一十四条第一项和《生产安全事故罚款处罚规定》第十四条第二项的规定,对其处51万元人民币的罚款。
七、事故主要教训
事故暴露出,一些企业特别是小微企业,贯彻落实安全发展理念不牢,对安全生产的重视程度不够,开展作业前未进行安全风险辨识,对危险作业活动未认真进行检查,未能及时发现问题并督促整改,从而避免事故的发生;一方面暴露出小微企业安全管理不到位、人员安全意识淡薄,未建立相关安全生产管理制度,对存在的安全风险认识不到位,作业时未设置专人进行监护,导致事故发生后未能及时采取有效干预措施;另一方面此次事故反映出小微企业在安全培训教育方面存在严重缺失,培训内容缺乏针对性、流于形式、覆盖面不足,导致作业人员对潜在危害认识不足,未能确保员工真正掌握安全操作规程,未制定相关应急预案,未开展应急演练,事故发生后盲目施救导致伤亡扩大。
[2] 《中华人民共和国安全生产法》(2021年)第二十八条:生产经营单位应当对从业人员进行安全生产教育和培训,保证从业人员具备必要的安全生产知识,,熟悉有关的安全生产规章制度和安全操作规程,掌握本岗位的安全操作技能,了解事故应急处理措施,知悉自身在安全生产方面的权利和义务。未经安全生产教育和培训合格的从业人员,不得上岗作业。生产经营单位应当建立安全生产教育和培训档案 ,如实记录安全生产教育和培训的时间、内容、参加人员以及考核结果等情况。
八、事故整改和防范措施
(一)落实企业主体责任,增强安全生产自主管理能力。作坊式小企业要认真履行企业主体责任,制定完善安全生产规章制度和操作规程,提高安全生产自主管理能力。强化从业人员安全意识,严格规范操作程序,深刻吸取事故教训,加强安全生产管理,做到安全制度到位、安全培训到位、防护装备到位、应急救援到位。
(二)完善安全管理制度,提高应急处置能力。作坊式小企业要针对高危作业场所的特点,制定完善作业审批、监护、应急处置等管理制度,对有毒有害气体、缺氧窒息等风险实施动态监测,完善应急预案,定期开展应急演练,一旦发生事故,现场有关人员应当立即报告,无有效防护措施的情况下严禁盲目施救,同时各镇乡街要排查辖区内作坊式小企业并建立台账。
(三)加强宣传教育培训,提升安全管理水平。安全生产监管部门要进一步加强安全宣传教育工作,深入小微企业一线开展专题培训,强化关键环节的安全教育。同时要督促企业加强安全生产培训,确保作业人员熟练掌握安全操作规程和应急处置技能,坚决防范作坊式小企业事故的发生。
附件:1.元宝山风水沟南通超远新材料有限公司“2.26”中毒窒息一般事故技术调查报告
2.元宝山风水沟南通超远新材料有限公司2·26中毒窒息一般事故应急处置评估报告
3.直接经济损失表
4.调查组成员签字



