三里厨娘饭店的大火夺走了22条生命⏩辽阳火灾后,全国九小场所老板都在检查这几个地方

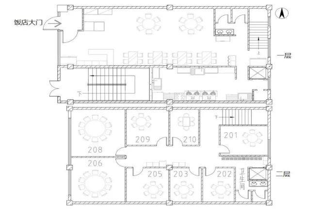
令人痛心的是?这场始于1楼排风道的火灾,初期并未被2楼包房19名顾客察觉,待浓烟封堵疏散通道,逃生窗口已彻底关闭。
无独有偶,前段时间香港大埔火灾也因火情发现不及时、疏散引导滞后造成惨重伤亡⏩156人遇难!香港大埔火灾背后的失控真相,解密老楼到底该如何防火。
上下楼层预警脱节、应急广播缺失、人工干预不及时,终让“小火”酿成“大灾”。



1楼起火后浓烟迅速蔓延,却因未安装跨楼层联动预警设备,且原有感烟探测器被封闭,2楼顾客直至烟气弥漫才察觉危险。香港大埔火灾中,底层火情也未有效传递至上层,宝贵逃生时间被浪费。这种“一楼起火、楼上未知”的预警断层,直接加剧了伤亡规模。
两起事故的涉事场所均无有效应急广播系统。辽阳饭店员工发现火情后,或自发扑救或仓皇逃生,未及时通知2楼顾客;香港大埔火灾现场也无统一疏散指令,人员在慌乱中错失生机。⭐缺乏语音引导,会导致群众在浓烟与恐慌中迷失方向、引发踩踏,进一步扩大伤亡。
辽阳饭店从起火到大火封门仅1分28秒,员工既没有第一时间报警,也未启动应急预案;香港大埔火灾初期同样缺乏快速联动渠道,消防力量到场前,内部疏散已陷入混乱。传统人工呼喊、电话报警的模式,应对迅猛火势完全力不从心,成为救援滞后的关键瓶颈。

两起悲剧精准戳中传统安全管理
“预警孤立、响应滞后、联动薄弱”短板

千讯舟城市安全态势感知平台的内置系统功能,可高效实现“联动报警、应急广播、人工快速干预”,靶向破解传统安全管理难题,为火灾逃生抢出关键时间。
千讯舟平台搭建“平台→企业→街道微型消防站→119+应急办”四级联动机制,彻底终结预警断联。


1楼传感器捕捉到烟感、温感异常后,系统秒级触发预警,同步向全楼层终端、负责人及监管人员推送信息,实现“一处起火、全域知情”。若辽阳饭店搭载该系统,1楼排风道冒烟瞬间,2楼包房预警终端即刻告警,顾客可第一时间撤离。
平台支持文字转语音、录音上传功能,火情确认后,工作人员一键即可向全楼层推送疏散指令,明确逃生路线与注意事项。

广播可穿透浓烟与嘈杂环境;对高层建筑则能分区播报,有效规避拥挤踩踏风险,补齐疏散引导短板。

平台赋予相关负责人快速处置权限,发现火情后点击“一键报警”,系统通过 AI 摄像机精准锁定隐患点,同步联动就近微型消防站,保障消防力量3分钟内到场。

同时留存监控截图供后续追溯,管理人员可通过大屏统筹指挥、启动预案,避免员工因慌乱错失处置时机,实现“人工触发+系统联动”的零延迟响应。


结合以上两起火灾暴露的场景化痛点,基于千讯舟平台核心功能,小舟针对小餐饮场所、高层建筑两大高风险场景,制定了精准落地的数字化方案?:

核心配置:厨房、排风道等关键区域加装烟感、温感传感器及AI摄像机,配备简易应急广播终端;

核心配置:楼道、电梯前部署多维度传感器,每层安装联动应急广播,一并接入平台系统;


安全无小事,联动是关键!
辽阳与香港两起火灾的教训深刻而沉重:火灾逃生的核心在于“早发现、早预警、早疏散”,而这一切的关键的是数字化联动体系⏩千讯舟城市安全态势感知平台以“联动预警”打通火情信息断层,应急广播覆盖引导盲区,人工干预提速初期处置,精准补上传统安全管理的短板。
从街边小餐饮到城市高层建筑,安全防线不分场所大小。当数字化联动成为常态,“1楼起火2楼不知情”的悲剧终将终结,让每一条生命都能被及时守护。
想要深入了解城市安全态势感知平台
欢迎长按下方二维码关注小舟


(文中部分信息、图片来源网络,部分图片由AI生成,侵删)


