
辽宁省应急管理厅网站于12月28日公布了《辽阳白塔区三里厨娘饭店重大火灾事故调查报告》:
2025年4月29日12时20分许,辽宁省辽阳市白塔区三里厨娘饭店发生重大火灾事故,造成22人死亡、3人受伤,直接经济损失2536.39万元。

事故发生后,辽宁省政府成立事故调查组,依法依规开展事故调查工作。国务院安委会对事故查处实行挂牌督办。
调查认定,这是一起因饭店主体责任不落实,违法改造扩建外立面且大量使用以普通塑料为芯材的铝塑板,违规在门外排风道下方检修口内堆放可燃垃圾,顾客随意丢弃烟蒂,外墙保温材料以次充好,消防设施损坏未及时修复,初期火灾处置不力,属地有关部门及党委、政府履职不到位而导致的重大生产安全责任事故。
调查报告建议对三里厨娘饭店经营者等8人移送司法机关。针对事故中暴露的问题,辽宁省纪委监委也同步成立火灾事故追责问责审查调查组,依规依纪依法对重大火灾事故中负有责任的40名公职人员进行严肃追责问责。


事故发生经过
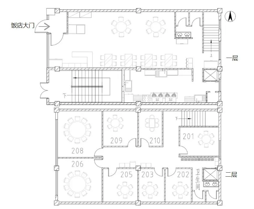
2025年4月29日12时12分,王慧(男)等4名顾客进入饭店就餐。
12时15分,王慧走出店门,在门口排风道附近吸烟。
12时16分,王慧将未熄灭的烟蒂丢弃到排风道检修口附近北侧地面后,返回饭店。当时,饭店共40人,其中顾客28人,员工12人。
12时22分,一层1名顾客闻到物品烧焦味道,走到饭店门口看到外立面北侧有火,便跑回店内呼喊一同就餐的3名顾客从饭店大门离开。
12时24分,一层3名服务员通过大门离开。
12时25分,饭店3名后厨员工使用手提式干粉灭火器到饭店外扑救未果,火势迅速蔓延扩大,大门被火封死,未再进入店内。1名服务员、3名后厨员工和1名顾客从一层楼梯下方小窗逃生,1名后厨员工和2名顾客从二层201包房跳窗逃生。其余人员未能及时逃生。

火灾共造成22人死亡(含王慧在内)、3人受伤。死亡人员中,一层顾客2人,二层顾客19人,饭店服务员1人。受伤人员为从二层201包房跳窗逃生的1名后厨员工和2名顾客。


事故原因

顾客王慧丢弃未熄灭的烟蒂

排风道检修口缝隙最早出现火光
(视频时间比北京时间慢49秒)
▷蔓延扩大原因分析
1.外立面装饰装修使用普通型铝塑板快速燃烧,致使火势迅速蔓延扩大。
2.外墙保温系统采用的聚苯乙烯保温板快速燃烧,加剧了火势蔓延扩大。
3.外立面装饰装修包裹烟道形成烟囱效应,致使火势迅速蔓延至二层形成立体燃烧。
4.共用消防设施瘫痪,导致自动喷水灭火系统未能阻止火势向室内蔓延。
▷造成人员伤亡原因分析
1.燃烧产物毒性大,短期致人死亡。
2.饭店未组织有效疏散,致使大量人员被困。
3.逃生时间短,被困人员逃生困难。

涉事生产经营单位和个人存在的主要问题
未申请办理外立面装饰工程规划许可,擅自改变建筑外观。
外立面装饰装修采用普通型铝塑板,且超出经营场所原有门窗界线。
内部装修改造未经具有相应资质的设计单位进行设计,擅自改动、遮挡消防设施,将一、二层原卫生间外窗分别用砖进行部分封堵,改变承重结构将楼板开孔增设传菜设备。
未申请办理建设工程消防验收备案和公众聚集场所营业前消防安全检查。
日常经营产生的部分可燃垃圾,随意堆放在门口排风道内。
火灾事故发生后现场工作人员未及时有效组织疏散。

滑动查看更多
2.装修改造单位及个人
(1)创易达广告
负责搭建的三里厨娘饭店外立面占用公共场地。
(2)陈岩
无资质承揽三里厨娘饭店室内装修改造工程,无设计方案擅自组织施工。
3.汇霖物业
承接物业时未取得相应资质证书,从事物业管理的人员未取得相应职业资格证书;未依法对物业共用部位、共用设施设备进行查验。进驻后,未对小区共用消防设施进行定期检测、维护保养,未有效组织开展防火巡查、检查,及时消除火灾隐患。未及时制止商户装修过程中破坏建筑结构、违规扩建、封堵外窗、遮挡消防设施等行为。
4.建筑外墙保温工程相关单位
(1)浙江中南建设集团有限公司未履行总承包合同约定职责,违规将涉事建筑外墙保温工程发包给个人;对分包工程监督不力,未发现聚苯乙烯外墙保温材料以次充好、蒙混抽检等问题。
(2)何家奎
违规以个人名义承揽外墙保温工程;未按设计图纸进行施工;伙同辽阳市太子河区城奥装潢材料厂通过添加石墨颗粒方式,使非阻燃产品的外观、重量与合格产品相似,以次充好、蒙混抽检。
(3)辽阳市太子河区城奥装潢材料厂
与何家奎串通,生产、销售不合格外墙保温材料用于涉事建筑外墙保温工程。
(4)辽阳建华工程建设监理有限公司
在负责涉事建筑外墙保温工程监理期间,未按有关规定对入场的外墙保温材料进行抽检。

有关责任人员、单位处理建议
(一)已被司法机关采取强制措施及移送人员(8人)
1.刘言,女,对事故负有责任,已被检察机关批捕。
2.王婷,女,对事故负有责任,已被检察机关批捕。
3.王硕,男,对事故负有责任,已被检察机关批捕。
4.褚洪宝,男,对事故负有责任,已被检察机关批捕。
5.何家奎,男,对事故负有责任,移送司法机关依法处理。
6.付丽娜,女,辽阳市太子河区城奥装潢材料厂经营者,涉嫌提供伪劣产品,建议将违法线索移送司法机关处理。
7.付宏伟,男,辽阳市太子河城奥装潢材料厂生产负责人,涉嫌提供伪劣产品,建议将违法线索移送司法机关处理。
8.张伟,男,时任辽阳市建华工程建设监理有限公司土建监理工程师,负责涉事建筑外墙保温工程的监理工作,对事故负有责任,移送司法机关依法处理。
9.王慧,男,因在事故中死亡,不予追究刑事责任。
(二)对有关公职人员的处理建议
对于在事故调查过程中发现的地方党委政府及有关部门的公职人员履职方面的问题线索及相关材料,建议移交纪委监委审查调查组依法依规处理。
辽宁省纪委监委也同步成立火灾事故追责问责审查调查组,依规依纪依法对重大火灾事故中负有责任的40名公职人员进行严肃追责问责。
事故调查报告【全文】
↕滑动查看全文






























容易出现可燃物多、
火源管理差、“三合一”等问题
“小场所”可能会发生大事故
岁末年初客流、物流密集
九小场所有哪些常见的安全隐患?
如何做好火灾防控工作?
节前九小场所自查清单来了
↓↓↓











--END--
来源 | 应急管理部、辽宁省应急管理厅
编辑 | 朱建婷
审核 | 张钰珊、张晋华
终审 | 余婧
往期回顾





