








▪Plan-\"空间分离但光影交会,视野通透的大平层\"
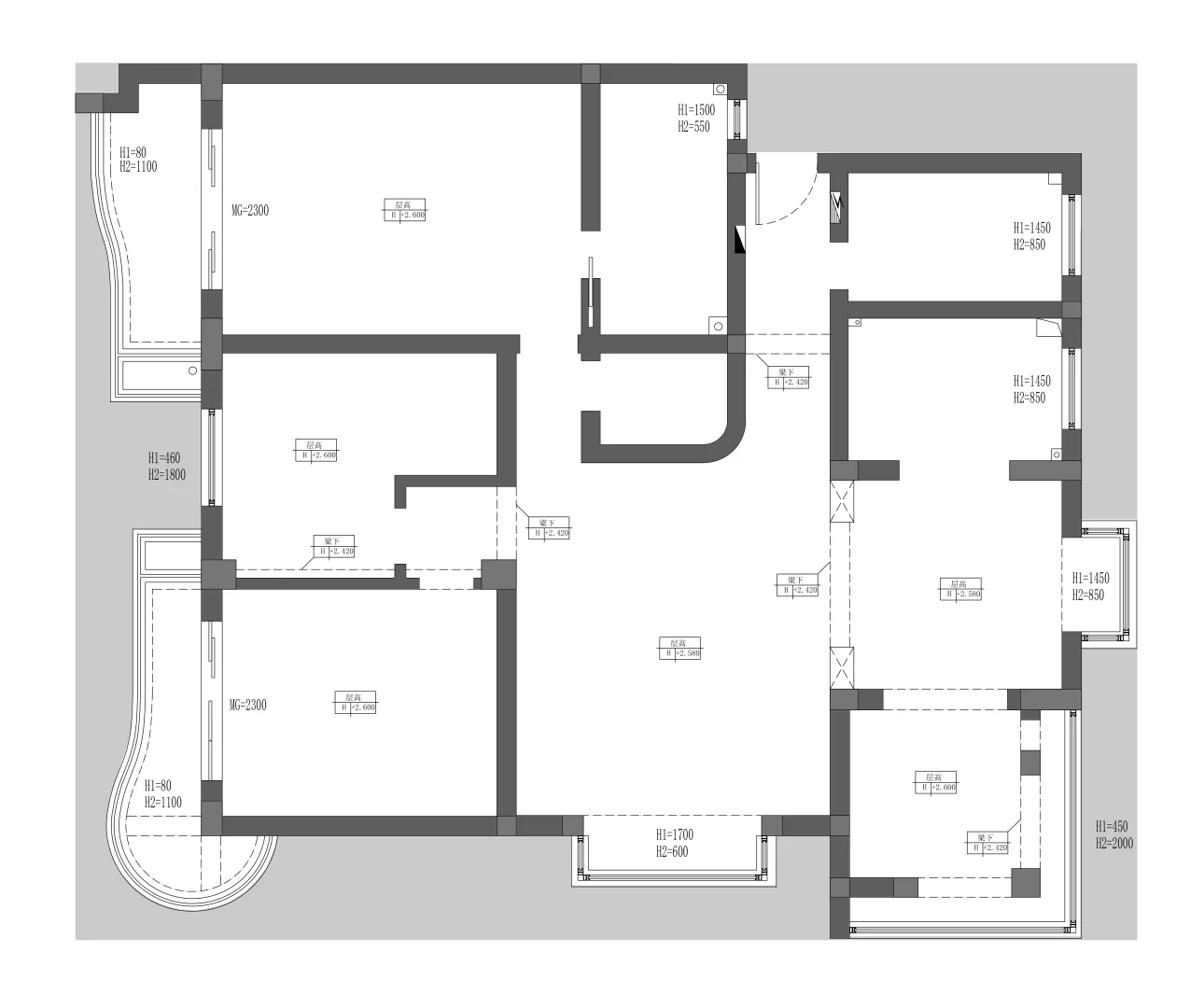
坐标:杭州 面积:150㎡
需求:作为婚房的二人世界➕预留未来的空间
1、规划两个卧室: 主人房带衣帽间和卫生间,下沉式淋浴房和超长台盆; 孩子房有足够的空间,并且不包阳台预留室外空间;
2、一间书房兼客房功能的房间,榻榻米增加储纳,书桌与酒吧台做高低差分割空间,折叠门开合;酒吧台区预留空白给未来孩子手工、游玩使用;
3、客餐厅分别用餐桌岛台上隔断及悬浮电视柜将酒吧区及厨房空间与之分离,而北面光依旧可以透过间隔交会东面光影使其空间通透;
4、意式风格多采用白色、米色、灰色等中性色调,搭配少量暖木色或深色调点缀,通过色彩深浅和材质变化营造层次感与空间感。
#户型改造 #户型优化 #方案优化 #室内设计 #户型设计 #设计案例分析 #户型布局设计
坐标:杭州 面积:150㎡
需求:作为婚房的二人世界➕预留未来的空间
1、规划两个卧室: 主人房带衣帽间和卫生间,下沉式淋浴房和超长台盆; 孩子房有足够的空间,并且不包阳台预留室外空间;
2、一间书房兼客房功能的房间,榻榻米增加储纳,书桌与酒吧台做高低差分割空间,折叠门开合;酒吧台区预留空白给未来孩子手工、游玩使用;
3、客餐厅分别用餐桌岛台上隔断及悬浮电视柜将酒吧区及厨房空间与之分离,而北面光依旧可以透过间隔交会东面光影使其空间通透;
4、意式风格多采用白色、米色、灰色等中性色调,搭配少量暖木色或深色调点缀,通过色彩深浅和材质变化营造层次感与空间感。
#户型改造 #户型优化 #方案优化 #室内设计 #户型设计 #设计案例分析 #户型布局设计


