六批次新房官宣:仅16盘!仍以刚需为主,市区少量供应!
原本预测的昌平云岸、苏河湾1号、中环汇云启等关注度比较高的楼盘都没有如期而至,那么看来,七批次应该会备受瞩目了!
根据房地网公示汇总
华润观宸润府
小烨找房

项目位于浦东川沙板块,靠近轨交2号线川沙站,从项目步行大约在750m左右,轨交站点旁边就是川沙百联和绿地东海岸的商业。生活配套上还是比较完善的。
图片来源:网络
本次推出64套建面约98㎡的3房,过会均价约63760元/㎡。
图片来源:网络
进入“华润观宸润府”看房通道
案场销售会第一时间与您联系
点击下方链接
虹口源717
小烨找房
图片来源:网络
从地图看,该项目位于虹口四川北路板块,属于内环内,地块距轨交4、10号线海伦路站直线约300米内。 另外,项目旁还有在建19号线,未来三轨环绕,交通十分便捷。
图片来源:网络
项目hk301C-01、hk301D-01地块用地功能为三类住宅+商业+商办,其中三类住宅≤60%,商业+商办≥40%。
本次推出228套建面约100-356㎡的产品,过会均价约138000元/㎡。
▼ 户型图如下:
↑
按住图片可左右滑动
进入“虹口源·717”看房通道
案场销售会第一时间与您联系
嘉佰道
小烨找房
图片来源:网络
图片来源:网络
项目基本信息:
容积率:3.7;
车位比:1:1.45;
物业费:11.8元/㎡/月;
交房时间:2026/6/30;
室内层高:100户型约3.15m,260、360户型约3.6m;
得房率:100户型约72-73%;260户型约78%;360户型约82%。
进入“长风嘉佰道”看房通道
案场销售会第一时间与您联系
中国铁建花语前湾
小烨找房
图片来源:网络▼ 户型图如下:
图片来源:网络
图片来源:网络
图片来源:网络进入“中铁建花语前湾”看房通道
案场销售会第一时间与您联系
中环置地中心
小烨找房
三期加推楼栋户型分布,仅供参考
图片来源:网络
图片来源:网络
图片来源:网络
图片来源:网络
图片来源:网络
图片来源:网络
图片来源:网络
进入“中环置地中心”看房通道
案场销售会第一时间与您联系
点击下方链接
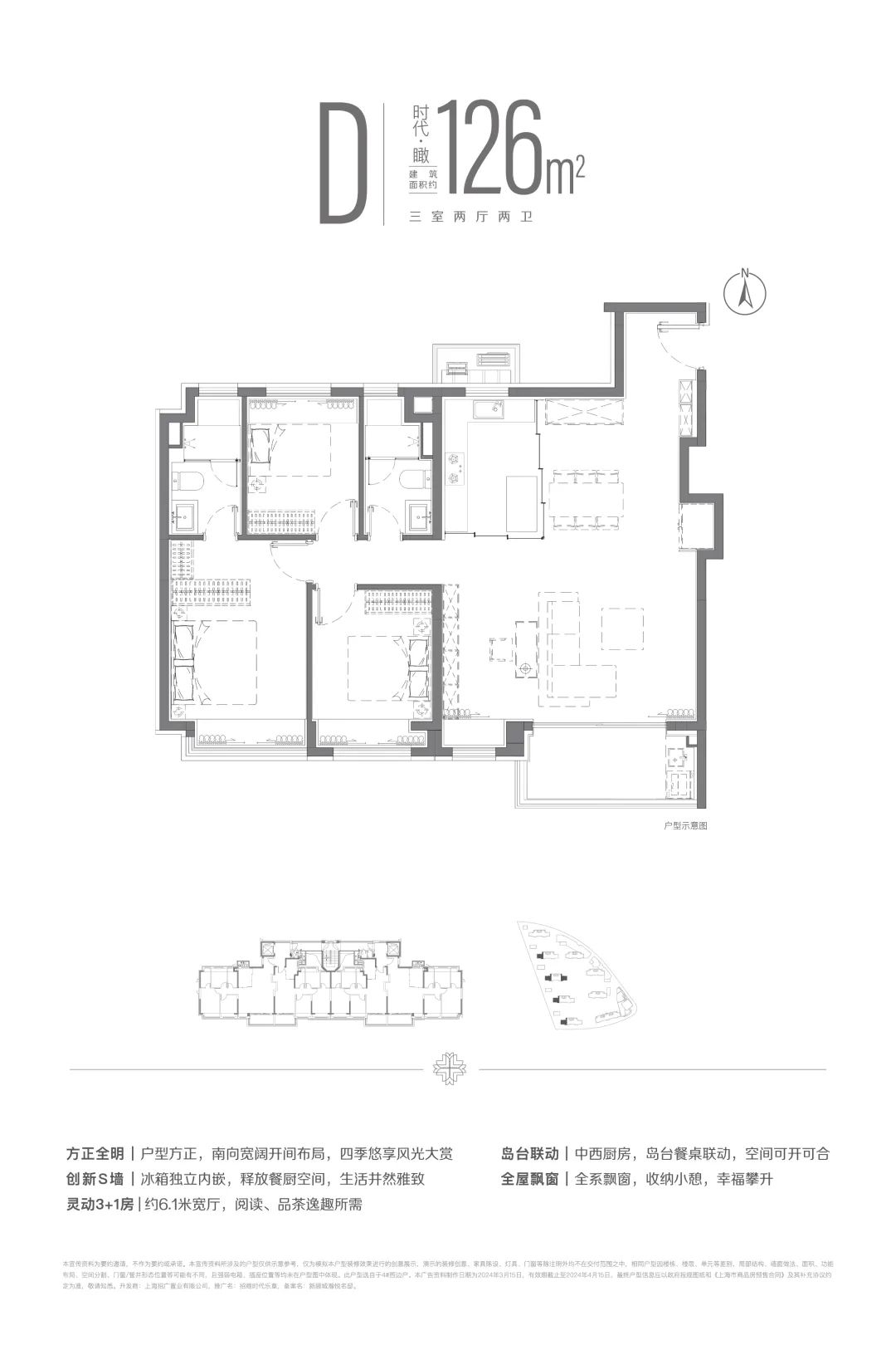
招商时代乐章
小烨找房
图片来源:网络
图片来源:网络
「招商时代乐章」7号线潘广路地铁上盖的TOD新房。过会均价约48500元/㎡。
图片来源:网络
图片来源:网络
图片来源:网络
图片来源:网络
进入“招商时代乐章”看房通道
案场销售会第一时间与您联系
因为公众号平台改变了推送规则
如果不想错过最新内容
记得读完点一下「赞」和「在看」
也可以将我们设为「星标★」
这样每次新的文竟才会第一时间
推送到你的订阅列表


往期推荐
深耕百万方中兴城,万科雅宾利四期(暂定名),预计5/1开放展厅!
嘉定南翔「华润华发时代之城」,售楼处即将开放,样板房效果图出炉!
近12号线西延伸段,「保利西郊和煦」推出建面约96-165㎡洋房+联排产品!
老静安「昌平云岸」,建面约92-305㎡1-6房即将入市!
浦东「张江金茂府」,样板房效果图出炉!首开约203套建面约92-135㎡洋房产品,展厅已开放!
浦东康桥「港城中环汇·云启」,联动价约6.25万/㎡,建面约79-187㎡2-5房,终于要来了!
双轨交全新盘「华发海上都荟」,均价约49100元/㎡,建面约91-136㎡高层/叠墅!
陆家嘴三林滨江项目,户型图来了!施工进度&效果图分享,预计下半年入市!
「天安1号」样板房观后感......
浦开云璟三期,最新户型图来了!建面约80-175㎡2-4房!
万科雅宾利四期,将推出建面约100-320㎡产品,首开信息曝光!
近12号线西延伸段,「保利西郊和煦」推出建面约96-165㎡洋房+联排产品!
陆家嘴三林滨江项目,首开户型分布预测,户型图过程稿发布!预计三季度入市!
宝山大场TOD「中环置地中心」三期约278套房源,即将加推!
金桥九宫格「金鼎·睿府」,建面约45-255㎡1-5房,五一火爆销售约160余套!
浦东北蔡「开云艾尚里」二期,预计六批次加推!约334套建面约89-146㎡2-4房!
徐汇龙华「中海领邸」户型解析!
虹口中建江湾镇项目案名公布【中建虹悦里】,建面约79-99㎡全小户型!
「中建壹品·浦江之星」一房一价分析:143户型总价居然和183户型有重合!
普陀「越秀苏河·和樾府」,展厅已开放!最新户型图过程稿发布!
【二手房】杨浦黄兴公园板块「文化佳园」顶复,建面约182㎡送3个露台!
徐汇龙华「中海领邸」,“186户型”样板间即将开放!“210户型图”发布!
徐汇长桥,两幅地块协议出让!
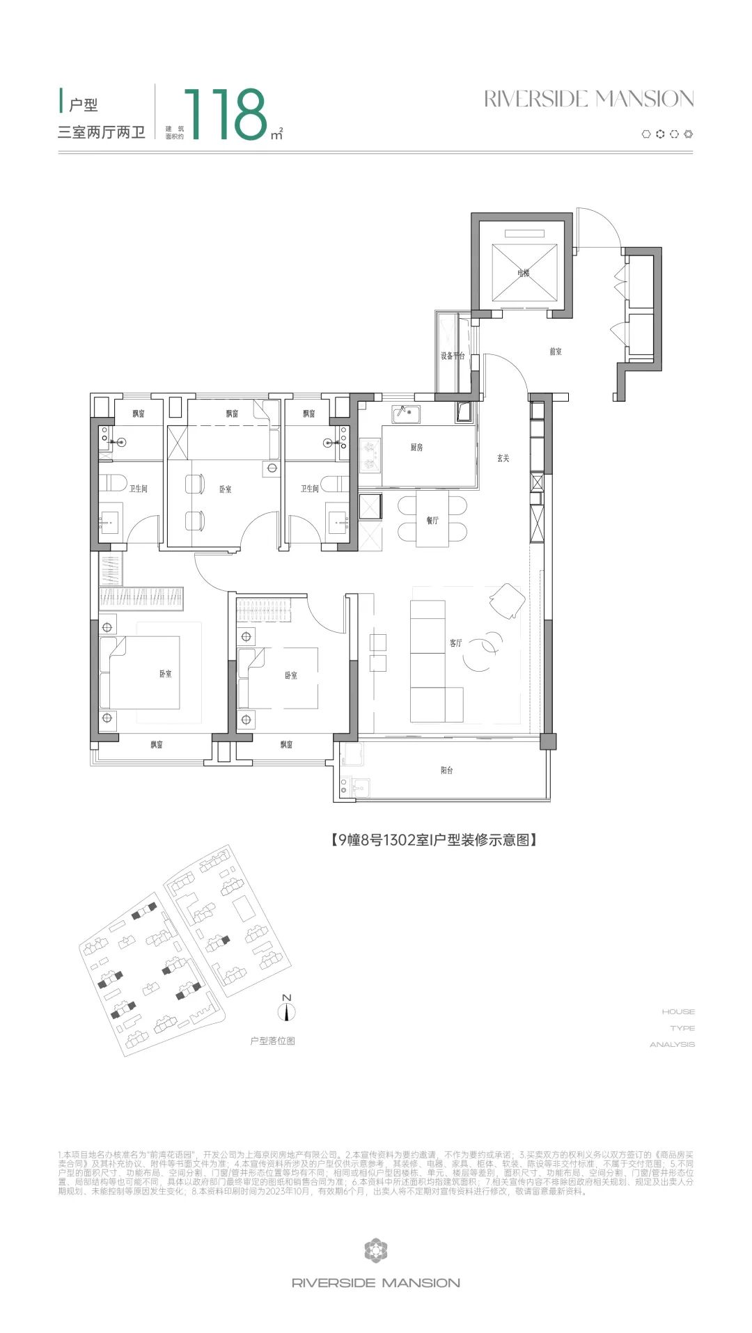
浦东川沙「华润观宸润府」实勘,建面约98-146㎡3-4房!
浦东三林滨江「前滩·百合园」三期,最后10套联排,预计六批次上会!



