前言

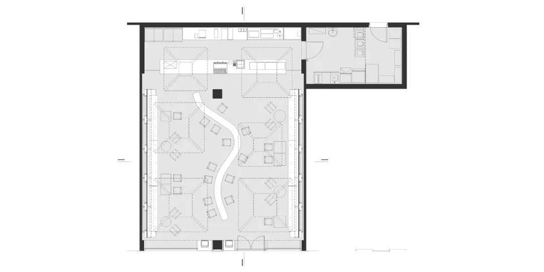
圣保罗东区的购物中心里有一家独具特色的咖啡馆,它以其别致的空间布局和独特的钢筋混凝土结构而著名。这家咖啡馆位于购物中心的中心位置,吸引着众多顾客前来品味咖啡的同时,也欣赏其独特的设计。


咖啡馆的空间布局非常巧妙,围绕着一个高而弯曲的桌子进行组织。这个桌子延伸到商店后面的柜台,供应着美味的咖啡。在桌子下方的倾斜面板上,配备了舒适的侧凳,与桌椅相结合,为游客们提供了舒适的用餐环境。此外,咖啡馆还设置了一个方便布置的侧附件,用于存储区。



在前往咖啡馆的路上,我们可以观察到支撑建筑的预制钢筋混凝土结构,这种结构由55x55厘米的柱子和Pi板组成,纵向肋骨呈双T形,宽度达到2.55米。为了展示这种结构的真实性,混凝土块被涂成黑色,而混凝土表面则被重新激活并暴露出来,增强了预制结构的纹理和几何形状。这种深色背景与大型倒金字塔形灯具和白色侧板形成鲜明对比,这种设计与预制板的材质相呼应。



这个设计解决方案不仅突出了咖啡馆的结构美感,还保留了品牌的身份。咖啡馆在其空间中主要使用白色元素,并将其巧妙地融入到整体设计中。这种结构与品牌的完美融合,使得咖啡馆独具特色,吸引了众多顾客前来品味美味的咖啡。





芬迪Fendi郑州丹尼斯大卫城全新概念店设计





