发电机轴承维护
一、轴承维护
轴承温度的高低来判断轴承的运行状况,重要的是轴承实际温度的变化。要观察轴承温度的变化情况和运行工况,及时记录。假如发现轴承温度上升且高于以前的值,必须迅速分析原因。如果是气温变化且离报警温度还有余量的情况下,可以继续运行,否则应在停机的情况下确定其原因。遇到轴承温度突然升高的情况,应该立即停机检查发电机、润滑系统、润滑脂量。
(1)手动轻微转动发电机转子,观察转子运转是否轻快且无异常声音,彻底检修时应对轴承进行专业检查,必要时换新轴承;
(2)目测注油管内有无堵塞情况,有则清除堵塞物;
(3)检查轴承润滑系统是否按设定程序为轴承加注润滑脂,具体润滑时间间隔和润滑量参见发电机润滑泵铭牌;
(4)去除轴承绝缘处灰尘。对于粘附性的污垢如润滑油脂应使用酒精浸渍过的抹布将其去除。
二、轴承绝缘电阻测量
在测量轴承绝缘电阻时要求将碳刷拔起,用 500 VDC 进行测量,测试时间要求持续 1min,绝缘电阻值≥1MΩ 为合格。若测量值过小,须将轴承加以清洁检查并在需要时重新进行绝缘。
三、轴承维护注意事项
在维护过程中,确保以下事项:
(1)在维护过程中,没有任何污垢、碎屑进入轴承;
(2)应根据正确的润滑脂、润滑量、润滑间隔时间来进行轴承润滑(可参照润滑泵铭牌);
(3)润滑脂可能刺激皮肤和导致眼睛发炎,严格遵守润滑脂厂商制定的所有安全措施。

联轴器知识
联轴器属于机械通用零部件范畴,用来连接不同机构中的两根轴(主动轴和从动轴)使之共同旋转以传递扭矩的零部件。在高速重载的动力传动中,有些联轴器还有缓冲、减振和提高轴系动态性能的作用。常用的联轴器有刚性联轴器、齿式联轴器、膜片联轴器。
一、刚性联轴器
刚性联轴器是一种扭转刚性的联轴器,即使承受负载时也无任何回转间隙,即便是有偏差产生负荷时,刚性联轴器还是刚性传递扭矩。如果系统中有任何偏差,都会导致轴、轴承或联轴器过早的损坏,也就是说其无法用在高速的环境下,因为它无法补偿由于高速运转产生高温而产生的轴间相对位移。
刚性联轴器:具有免维护,超强抗油以及耐腐蚀的优点。无补偿性能不能缓冲、减振;结构简单,制造方便,成本较低装拆和维护均较简便;可传递大转矩,需保证两轴具有较高的对中精度;适用于载荷平稳,高速或传动精度要求较高的传动轴系,见图1所示。
刚性联轴器
二、齿式联轴器
近年来鼓形齿式联轴器应用较为广泛,鼓形齿式联轴是在直齿齿轮联轴器的基础上开发的新型齿式联轴器;它是由齿厚呈腰鼓形的外齿轴套和与其相配的内齿圈组成的啮合付连接两轴的,适于重载和需要轴线位移补偿的两轴传动(见图2)。下面以GⅡCL型鼓形齿式联轴器为例简述:
1、鼓形齿式联轴器特点(与直齿式联轴器相比有以下特点)
1.1承载能力强。在相同的内齿套外径和联轴器最大外径下,鼓形齿式联轴器的承载能力平均比直齿式联轴器提高15-20%。
1.2角位移补偿量大。在相同的模数、齿数、齿宽下,鼓形齿比直齿允许的角位移大。当径向位移等于零时,直齿式联轴器的许用角位移为1o,而鼓形齿式联轴器的许用角位移为1o30',提高50%。
1.3鼓形齿面使内、外齿的接触条件得到改善,避免了在角位移条件下直齿齿端棱边挤压,应力集中的弊端,同时改善了齿面摩擦、磨损状况,降低了噪声,维修周期长。
1.4外齿套齿端呈喇叭形状,使内、外齿装拆十分方便。
1.5传动效率高达99.7%。
2、GⅡCL型鼓形齿式联轴器标准及特点
2.1 标准:GⅡCL型鼓形齿式联轴器外形及安装尺寸(JB/T8854.2-2001)。

齿式联轴器
2.2 特点:GⅡCL型鼓形齿式联轴器适用于联接水平两同轴线传动轴系,具有一定角向补偿两轴线相对偏移性能的鼓形齿式联轴器;GⅡCL型鼓形齿式联轴器具有结构紧凑,外形尺寸小、承载能力大、传动效率高、噪声低及维修周期长等优点,广泛应用于冶金、矿山、化工、石油、起重运输、通用机械等各类机械的轴系传动;ⅡCL型鼓形齿式联轴器工作环境温度-20~+80℃,传递公称转矩为0.4~4500KN·m。
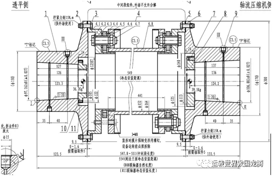
三、膜片联轴器
膜片联轴器能补偿主动机与从动机之间由于制造误差、安装误差、承载变形以及温升变化的影响等所引起的轴向、径向和角向偏移。膜片联轴器属金属弹性元件挠性联轴器,其依靠金属联轴器膜片来联接主、从动机传递扭矩,具有弹性减振、无噪声、不需润滑的优点,是当今替代齿式联轴器及一般联轴器的理想产品。
1、膜片联轴器的结构
膜片联轴器组成是由安装盘、中间段组件(中间轴)、螺栓自和锁螺母组成;其中中间段组件由转接盘、膜片、间隔轴、螺栓组建组成。
(运转世界大国龙腾 龙出东方 腾达天下 龙腾三类调心滚子轴承 刘兴邦CA CC E MB MA)
转窑托轮轴瓦发热原因分析与解决措施
01 背景介绍
某公司某生产线回转窑二档托轮7#轴瓦发热导致被迫减产,通过调整工艺操作,并采取开外排循环水、风扇吹风、淋冷润滑油等一系列降温措施后,设备恢复正常生产。为检查该托轮轴瓦是否在发热过程中产生损伤,利用错峰生产时间,邀请了托轮检修外包队伍对其进行检查,并对轴瓦进行了刮研处理。但开窑后托轮轴瓦又出现了高温发热现象,导致回转窑无法提至正常转速,且托轮轴瓦因温度过高(最高达90℃左右)采取了直接淋水的紧急降温措施,对托轮轴瓦损伤较大。此次设备故障不仅消耗了大量的人力物力,且严重影响了熟料的产量和质量。实际生产中,回转窑托轮轴瓦发热主要与其润滑状态、承受的载荷情况有关,下文将主要从这两个方面分析托轮轴瓦发热原因及相应的预防处理措施。
02 托轮轴瓦发热的主要原因分析
2.1 润滑状态不良
1.回转窑冷却循环水内杂质过多,导致冷却水管因堵塞使循环水流动不畅,润滑油降温效果不明显;内部循环水管破裂导致渗水漏水,造成润滑油发生乳化,因油质劣化使轴瓦温度升高。
2.托轮轴瓦润滑油失效需换油时未及时换油,导致润滑油粘度降低、油变质乳化等。
3.托轮轴密封不良导致渗油、漏油严重,使油位下降,或出现油勺脱落的情况,润滑不足导致托轮轴瓦温度上升。
4.托轮轴表面粗糙或轴拉丝严重(轴和轴瓦部分区域相当于点接触),不利于油膜的形成。
5.轴与轴瓦发生相对移动,轴跟轴瓦重新研磨,导致发热。
6.瓦口过小或刮研方法不对,在托轮轴和轴瓦之间未形成良好的楔形空间,无法形成有效油膜。
7.托轮轴瓦通过长时间的使用,瓦与轴的接触角度越变越大,同时瓦口与轴之间的接触间隙也越来越小,当其小到一定程度时,润滑油不能顺利地进入轴瓦底部,导致轴瓦出现高温发热现象。
2.2 承受的载荷不正常
1.各档托轮调整不当或窑内径向、环向温差过大等,导致窑实际各档中心标高与标准标高偏差过大,窑体中心线出现弯曲现象,从而使各档受力波动偏大,当超过原有的承载能力后,极易产生轴瓦发热现象。
2.轮带与垫板磨损间隙过大,导致轮带的变形椭圆度超过正常范围,或使轮带与托轮接触面发生改变,造成托轮两端的轴瓦出现受力不均的情况,引起托轮轴瓦高温发热。
3.托轮轴瓦侧面与止推盘间隙过小(正常值一般为3-5mm),造成轴瓦的止推盘与轴肩接触产生摩擦,导致轴瓦发热。
4.窑上下窜动速度过快,当液压挡轮上行的速度过慢且不稳定,而下行的速度过快时,则会在轴向产生向下的推力,此力也可使托轮轴瓦间出现相对挫动和摩擦,使托轮轴瓦端面受力过大,油膜破坏。
5.窑内耐火砖使用导热品种不一、窑皮厚度不均或脱落、喷煤管位置及火焰调整频繁等导致窑筒体外温差变化大,窑筒体的径向温度差过大,当筒体发生变形或外温高对托轮热辐射大时,造成托轮轴瓦高温发热。
6.窑基础下沉或地脚、顶丝松动造成托轮位置变化,受力不均极易造成轴瓦发热。
03 托轮轴瓦发热后的应急处理方案
当托轮轴瓦出现发热迹象时,现场设备管理人员应仔细分析原因,并根据轴瓦温升情况采取能迅速降温的有效措施,避免托轮轴和轴瓦烧坏与抱死情况的发生。托轮轴瓦发热后具体应急处理措施步骤参考如下:
(一)检查现场轴瓦温度与中控温度是否一致,确认现场轴瓦温度是否偏高。
(二)当温度达到50℃以上时用气管正对发热点进行冷却,并对托轮座架设降温风扇进行降温。
(三)检查托轮轴上的油膜和油勺里的油量,以油勺油量满杯为宜。
(四)检查油盘上的油是否流畅。
(五)检查发热点,若发热点来源于推力盘与托轮瓦端面间隙小而产生摩擦所致,及时检查窑是否处于下限位,如果是此原因就手动开启液压挡轮将窑向上顶。
(六)当温度达到55℃以上,开启外排循环水,同时观察托轮轴上的油膜情况,对出现油膜较差的高温点用小型尖嘴油壶加油。
(七)如若瓦温不高,油温较高(超过55℃),可适当开启压缩空气对托轮油进行冷却,温度下降到55℃以下停止用气。
(八)当发现托轮轴瓦发热超过65℃,且仍有上升趋势时,轴表面温度较高,可先降低窑速,不断加入凉的润滑油,直至托轮轴瓦温度恢复正常。
(九)观察轮带与托轮的接触情况,观察轴端止推盘与轴瓦侧面的接触情况,如若接触异常,且瓦温持续上升时,可以考虑对托轮进行微调(未找出引起托轮轴瓦发热的原因前,不要轻易调动托轮位置)。
04 托?轴瓦发热的主要预防与解决措施
托轮轴瓦发热后的应急处理措施能及时有效地降低轴瓦温度,使其短时间内恢复到正常瓦温。但如未针对发热原因采取有效的预防与解决措施,托轮轴瓦发热问题还会反复,甚至采用应急降温处理措施后也不能使瓦温恢复正常状态。因此针对分析的问题原因,还要求采取相应的预防处理措施。

膜片联轴器
2、特点:
2.1膜片联轴器是由几组膜片(不锈钢薄扳)用螺栓交错地与两半联轴器联接,每组膜片由数片叠集而成,膜片分为连杆式和不同形状的整片式。
2.2膜片联轴器靠膜片的弹性变形来补偿所联两轴的相对位移,是一种高性能的金属弹性元件挠性联轴器,不用润滑,结构较紧凑,强度高,使用寿命长,无旋转间隙,不受温度和油污影响,具有耐酸、耐碱、防腐蚀的特点。
2.3适用于高温、高速、有腐蚀介质工况环境的轴系传动,广泛用于各种机械装置的轴系传动,如风机、压缩机、液压机械、石油机械、冶金机械,经动平衡后应用于高速传动轴系已比较普遍。
2.4膜片联轴器与齿式联轴器相比,没有相对滑动,不需要润滑、密封,无噪声,基本不用维修,制造较方便,可部分代替齿式联轴器。在实际应用中一般采用接中间轴型,以提高两轴线偏移补偿性能。



