杭州生物科技谷展馆布展项目的公开招标公告
一、项目基本情况
项目编号:BWZBDL2023-235
项目名称:杭州生物科技谷展馆布展项目
预算金额(元):5250000.00
最高限价(元):5111209.00
采购需求:杭州生物科技谷展馆布展项目,主要内容:杭州生物科技谷展馆布展。具体以招标文件采购需求为准
二、采购需求
一、招标一览表
标项1:杭州生物科技谷展馆布展项目
序号 | 名称 | 数量 | 单位 | 预算(元) | 简要规格描述或基本情况介绍 | 最高限价(元) |
1 | 杭州生物科技谷展馆布展项目 | 1 | 批 | 5250000.00 | 详见招标需求 | 5111209.00 |
二、采购需求
1、技术需求
一、场馆概况
(一)项目地点
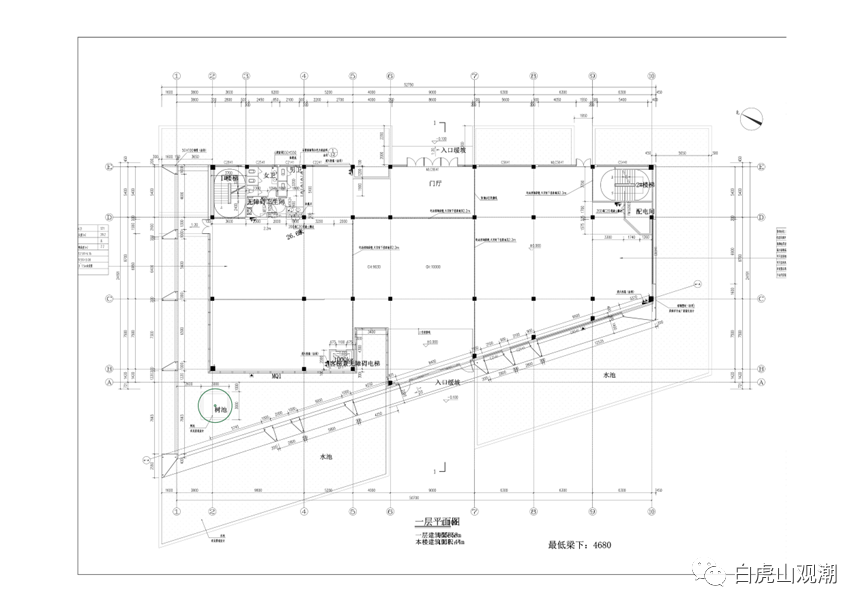
杭州市生物科技谷-G地块-GMP厂房项目配套用房2#楼内。
(二)场馆简介
杭州生物科技谷展厅总体定位是拟在建立和打造一个具备招商展示、人才服务、专业交流三大功能于一体的综合服务中心。
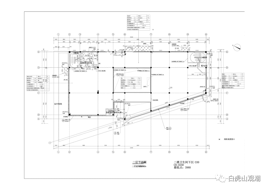
总建筑面积约1900平方米,共二层,主要承担生物科技谷产业展览、招商人员现场驻点办公、项目路演会议等功能。配套用房2#楼土建于2023年1月完成,拟实施该展馆布展项目,对该项目进行中心布展总体策划、功能和展区布局、展项内容、参观流线组织、展示方式等设计、施工。
二、内容要求
(一)设计的原则和要求
1、前瞻性布展设计
设计方案总体上要创新,从理念设计、功能设计到空间设计等皆具有创新性和前瞻性,坚持高质量、高水平,确保在展示主题、功能定位、视觉效果、内容展示、工程造价等方面达到优化均衡。
2、参观流线合理
结合现场实际情况,对展陈空间结构、展览内容进行分析研究,科学合理的划分各单元内容的平面布局和面积分配。在保证单个展区主题鲜明的同时,充分考虑各展区之间的相互关系,形成科学合理的参观路线。
3、亮点展示突出科技现代大气
项目设计应当实现装饰风格与展示内容的融合,风格需简约大气,装饰不可繁杂、喧宾夺主。突出生物科技流线特点。合理考虑展示各分区的比例,拉开表现内容的比重,突出展示重点,风格简约大气。
4、灵动空间易于迭代
展项要具备灵活性、开放性,预留通用接口易于升级,尽量减少永久式展项,同时应用新技术、新方法、新科技,为展厅的升级、更新预留条件和空间。避免重复施工,多次修整,真正做到创新、绿色、开放。
5、展现手段新颖互动性强
艺术表现方式和科技展现手段要力求开拓创新,展厅互动设计上要突出“新”和“特”。恰当运用多媒体展示和声光电技术手段,达到让创新成果鲜活展示的效果,创造人性化的交互体验,同时应避免过多重复使用某一表现形式。
6、智慧管理智能控制
展厅所有多媒体展项均采用统一的系统平台,通过Pad 设备进行控制及实时互动,完成诸如移动显示屏、选择互动模式多媒体交互、灯光控制等操作,兼顾团队参观的带领讲解、人员培训的操作掌握等场合下的便利性。
(二)展示内容及大纲
1、硬装按区域轴线装修面积计入,包含零星墙体拆除改造、照明系统、消防暖通改造、图文展板等。
2、数字化展陈系统包含展示硬件设备采购、多媒体内容定制开发、交互软件定制开发、网络机房建设及集中控制系统软件开发等。
3、在满足有关部门和规定的前提下,最大限度的利用建筑地形特征,注重
建筑原始结构,合理组织与安排出入口及展示空间。
区域 | 内容方向 |
一层 | 展览展示 |
二层 | 办公、接待 |
(三)设计区域
三、项目建设特性
(一)科学性与功效性
项目需遵循基础科学的建设目标,基于方案设计要求合理规划展厅布局建设及板块区域,确保参观的流畅性,突出重点,合理设计,同时在空间、道具、设备包装、灯光环境、音响环境等各方面应具有科技感和未来感风格。充分考虑使用过程中布局的合理性与功效性。
(二)灵活性与可切换性
1)展项可根据不同功能切换界面使用,能够根据不同的参观群体选择对应业务进行演示。
2)内容组合灵活,能够根据不同的展示主题灵活构建重点突出的展示方案,进行专项业务展示。
3)易于改建,能够在内容升级改造或临时性的服务(例如:临展或客户推介等活动)中,降低空间以及内容更换的成本。
(三)易用性与可管理性
提供的软件本身应具有良好的操作维护界面、详细的帮助信息,系统参数的维护与管理通过操作界面完成。平台应具有良好的管理手段,可管理安全、网络、服务器、操作系统、数据库及应用等,以及实现远程管理和控制。
(四)可体验性
展台的整体设计必须从用户的角度出发,充分考虑用户的体验感受。从参观路线、参观流程、空间环境、道具设计、体验方式等多方面均需突出亲切、友好的人性化特点。在空间和环境的设计上要考虑地域社会特征,并和周围环境及功能相协调。
(五)模块化与标准化
体验厅更多是给企业领导进行观念性、理论性以及战略性的概念的梳理需要快速的迭代,采用模块化迭代的展台代替物理性的展示,为将来扩展和运维提供快速的变化基础,同时展示构建标准化拼接与组装,内容建设上以一键切换实现来宾参观的个性化和专属化。


END


