支吊架作为设备、管道、电气等支撑结构,在机电安装工程中扮演着重要角色,直接关系到整个系统能否正常运行,能否确保人民生命财产安全的大事,同时也严重影响工程的整体观感。因此合理选用支架的型式、制作安装工艺有着非常重要的意义。

一
支吊架制作
基本规定:
1)管道支架的形式、材质、加工尺寸、精度及焊接质量应符合设计文件和有关施工验收规范的要求。
2)支架底板及吊架弹簧盒的工作面应平整。
3)管道支架焊缝应进行外观检查,焊缝应均匀完整,外观成型良好,不得有漏焊,欠焊,裂纹、咬边等缺陷。
4)制作合格的支架成品应及时进行防腐处理,防腐层应完整,厚度均匀。
5)管道支架应满足管道的稳定和安全,允许管道自由伸缩并符合安装高度。
制作工艺:
支架边缘应平整、光滑,严禁使用气焊进行切割。人员能够触及的地方的型钢支架,其边缘直角部分倒45°角或将尖角磨圆。




二
支吊架安裝
在布置管道时,在满足工艺要求的前提下,还应该考虑到管道的支承。宜考虑在以下场合设置支吊架:
1)靠近设备;
2)设在集中荷载附近;
3)设在弯管和大直径三通式分管附近;
4)适宜利用建筑物或构筑物的梁或柱子等设置支吊架生根部件的;
5)不妨碍管道与设备的检修。






推荐使用弹线法进行支吊架定位,红外线弹线仪可作为辅助手段。成排管道尽量采用共用支架,支吊架间距按照成排管道中管道支架间距最大值中最小的一个值来确定。


三
典型支架制作安装工艺操作要点
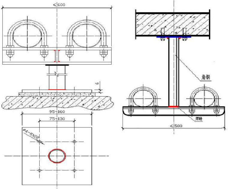
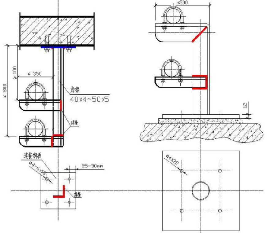
支架焊缝饱满,焊接牢固,孔距、孔径与U型管卡配套,安装位置准确,埋设平整牢固。横梁安装时每边立杆必须有两点固定,且上面一个固定点宜在大梁中心线之上。吸顶安装时倒吊钢板的厚度应大于型钢的厚度。“Π”型支架立杆与横担应采用45°角焊接连接。




1)空调水管“Π”型支架
空调水管“Π”型支架制作安装时,为防止产生冷桥,发生结露现象,空调水管必须采用木垫。木垫的规格必须和管道的相匹,管道和木垫结合严密。


2)成排管道“Π”型吊架
支吊架不钻孔成排管道“Π”型吊架做法:

3)大跨距“Π”型支架
“Π”型支架跨距较大时,支架的横担应加强,宜在支架的管中位置加设竖向加强肋板,增强支架的强度,确保系统的安全运行,加强肋板的宽度不应超出支架型钢的宽度,厚度宜为10mm以上。



4)水泵进出口“Π”型支架
水泵支吊架位置应靠近泵进出口处。泵的水平吸入管段宜采用可调支吊架或弹簧支吊架。


5)可能积水场所管道“Π”型支架
设在屋顶和有可能积水区域的支架应在其根部设置防水台,防水台高度宜为10~15cm,直接应将支架根部全部包裹住。屋顶支架螺栓明露的丝牙应用PVC护套,并涂满黄油。


“T”、“F”、“三角”型支架适用DN≤DN50管道,制作时横担与立杆必须可靠焊接,焊缝必须饱满,无漏焊虚焊,油漆均匀无漏涂。立杆和横担的末端应切45°角或磨圆。




在弯头处设立托架,对立管起到支持作用。根据弯头外形外形加工制作曲面支撑钢板,托架管中心应与支承板中心一致;将法兰安装在托管高度中间位置,法兰间加橡胶垫,法兰螺栓向下,外露长度为2~3丝且一致;托架顶部焊接曲面支承钢板,与弯头底部焊接牢固,防锈漆及灰色面漆涂刷均匀、无污染。



承重支架设置部位规定最低层设一个,管径小于等于DN200的,每隔5层一个,管径大于DN200的,每隔3层一个。空调冷水管立管承重支架为防止结露产生冷凝水,应垫防腐木垫。


1)弹簧支吊架
弹簧支吊架的施工和安装应与设计要求一致;弹簧定位装置在安装过程中应保持不动,直到整个管系安装完毕且试压完成后将定位装置取出,使弹簧正常工作。




2)管道减振支架
振动管道支架应采用减振支架,应注意以下要点:
宜采用卡箍型的支架,管道上不得支承其他管道;
支架间距应经过振动分析后确定;
宜设置独立基础,尽量避免生根在厂房的梁柱上;
当管内介质温度较高,产生热胀时,应满足柔性分析要求;
支架应尽量沿地面设置。





3)设备减振支架
计算减振器额定荷载时,除考虑设备自身的重量外,还应该系统运行时管路中流体的重量,并有一定裕量。减振器的类型应根据设计和工艺要求确定。





1)支架、吊架的安装位置不应妨碍喷头的喷水效果。
2)管道支架、吊架、与喷头之间的距离不宜小于300mm;与末端喷头之间的距离不宜大于750mm。
3)配水支管上每一直管段、相邻两喷头这间的设置的吊架均不宜少于1个;当喷头之间距离小于1.8m时,可隔段设置吊架,但吊架的间距不宜大于3.6m。
4)当管子的公称直径等于或大于50mm时,每段配水干管或配水管设置防晃支架不应少于1个;当管道改变方向时,应增设防晃支架);竖直安装的配水干管应在其始端和终端设防晃支架或采用管卡固定,其安装位置距地面或楼面的距离宜为1.5~1.8m。
5)沟槽管道立管支架管卡:当楼层高度不大于5m时,每层必须安装1个,当楼层高大5m时,每层不少于2个。当立管上无支管接出时,支架管卡安装高度宜距地面1.2~1.6m。
6)沟槽管道横管吊架托架:每一直线管段必须设置1个。直线管段上个吊架托架间的距离不得大于下表的规定。






GB50981-2014《建筑机电工程抗震设计规范》三个强条:
抗震设防烈度为6度及6度以上地区的建筑机电工程必须进行抗震设计;
防排烟风道、事故通风风道及相关设备应采用抗震支吊架;
设在建筑物屋顶上的共用天线应采取防止因地震导致设备或其他部件损坏后坠落伤人的安全防护措施——抗震支吊架。

GB50981-2014《建筑机电工程抗震设计规范》抗震支架的设置:

当管道在支承点处有轴向位移且需限制横向位移时,应设置导向支架。

1-管道;2-弧形板;3-曲面板;4-导向板;5-横担

U形、环形管道吊架主要适用≤DN100的非金属管道,通过调节螺母可以微调管道的标高。非金属管道与U形、环形管道吊架接触处用橡胶垫或缠绕膜隔开,衬垫宽度一致,洁净、整齐,与管道及支架接触严密。









