
生活中,我们每天都离不开开关插座,家里开关插座布局的合不合理,直接影响着我们每天的心情。

你有没有遇到过躺下准备睡觉了却要起床去关灯的情况?或者是硬装完毕,家具进场却发现挡住了插座;又或者插座不够用,家里到处是杂乱的插排。出现这种情况,就是在装修时没有做好开关插座的布局设计。

设计师在进行全屋机电布局设计时,应提前了解使用者的生活习惯,结合设计规范全方位进行设计,今天我们就来讲讲家庭空间开关插座应该如何布局。


文末附 全屋机电布局CAD图及开关插座图例
01
玄关


在玄关,首先就是在进门手边最方便的位置布置玄关灯开关。如果进门即客厅,一定得设置双控开关,进出门随手开关灯非常方便。


玄关插座至少预留两个五孔插座,方便安装感应灯和给手机充电。但现在经常做顶天立地、上下分体的玄关柜,可中间设置插座,还可以预留出使用烘鞋器等小电器的插座。如果想门口安装监控,那么也需要预留插座。



02
客餐厅

客厅的主灯可与玄关处做成双控,方便控制。客厅中电视背景墙上的插座和网络接口普遍高度是300mm左右,最好不露出,如果准备电视壁挂,高度在1-1.1m左右。


沙发两侧设置插座时可选择一个带有USB的,方便日常充电使用。同时考虑到日后可能有台灯等需求,设置足够的插座,高度普遍在300mm左右。但提前算好沙发长度很重要,避免插座被挡住。



除此以外,还有比如投影仪、加湿器、扫地机器人等等可能用到的电器,需要提前考虑,留出足够的插座和空间。

图源:散步的鸡蛋 / 小红书

客厅空调前期就要确定,毕竟立式空调和挂式空调插座高度不一样。另外,空调刚启动时,电流会非常大,必须配专用的16A带开关的三孔插座。


餐厅所需开关为吊灯双回路控制及装饰效果灯开关。
插座需要两个五孔带开关插座,热水器、咖啡机、吃火锅的电磁炉即插即用,再也不用大老远拉个插排才能煮火锅啦。

如果有餐边柜,可以在其中设置几个插座,将一些类似热水壶、咖啡机等小电器从厨房移出,方便使用的同时还能减轻厨房台面压力。


图源:土司在拍照 / 小红书
03
厨房

厨房隐藏插座较多,特别是做嵌入式冰箱、蒸箱烤箱,或是后期可能想加上垃圾处理器、小厨宝、净水器之类的电器,都需要提前在橱柜里留好插座。厨房建议选择带有开关的插座。

图源:装小蜜监理王志 / 知乎
燃气热水器、壁挂炉需要三孔插座,一般在窗户边。


现在各种厨房小家电流行,必须设置足够多的插座,用起来才不需要挪来挪去。小型常用电器,比如几乎每天都要用的电饭煲,可以设置带有独立开关的插座,不用经常拔插,方便安全。


除了玄关、客餐厅、厨房的开关插座之外,卧室,卫生间的开关插座布局也同样重要,在这里小编就不一一赘述了。开关插座最重要的还是按需设计,遵循人体工程学的要求,让使用者用起来方便。


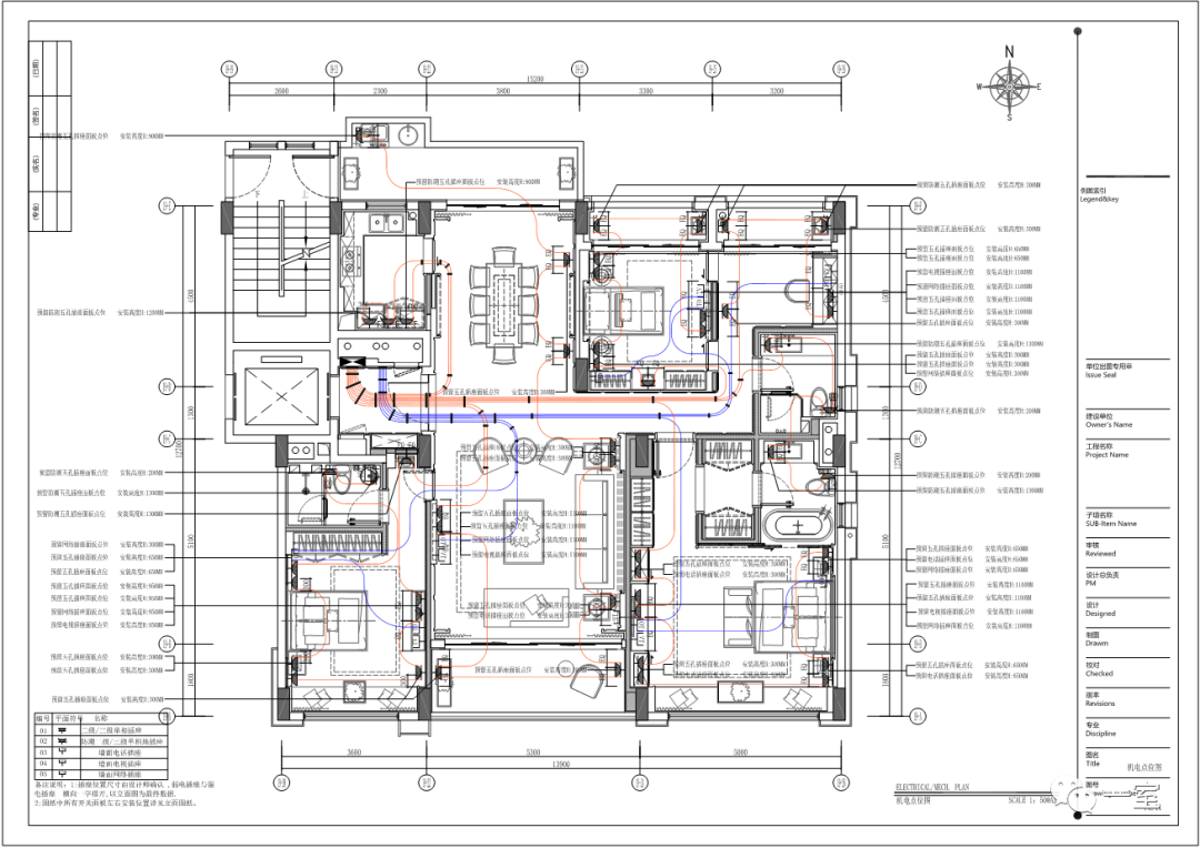
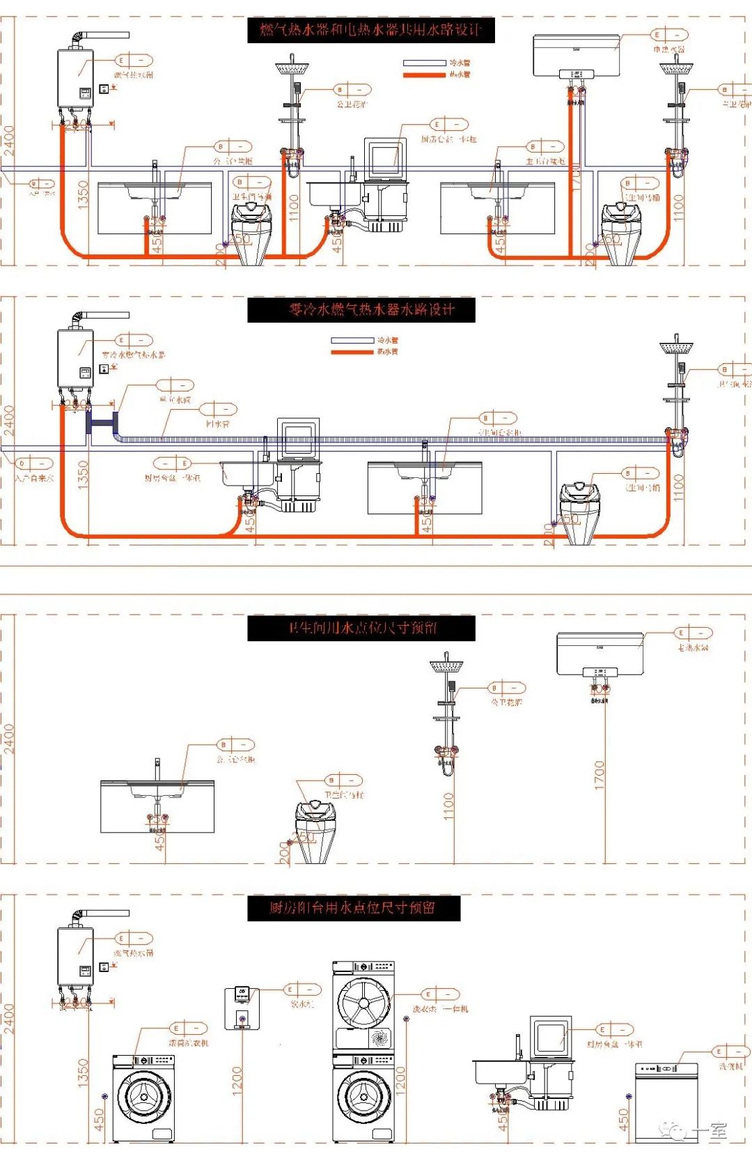
这里小编为你准备了全屋机电布局CAD图及开关插座图例,不仅告诉你家庭中各空间需要哪些开关插座,还有详细的高度,同时还给大家准备了开关插座灯具的图例,让你不再为开关插座的布局设计图而发愁。
全屋机电布局CAD图及开关插座图例
部分内容展示


全屋机电点位布局CAD图



全屋开关插座点位图



全屋水、净水系统点位图


开关、插座、灯具图例合集




▲以上仅为部分展示
全套资源 · 如何获取?
长按识别二维码极速获取

或:点击 “阅读原文” 快速获取




版权声明:我们尊重原创。文字美图素材,版权属于原作者。部分文章推送时因种种原因未能与原作者联系上,若涉及版权问题,敬请原作者联系我们,立即处理。



