
建筑设计的学习并非是一蹴而就的事情,而是一个不断积累、思考的过程。其中最直接的积累方式就是学习建筑大师的作品。
由【设计学堂】出品的案例分析中,我们将向大家分析知名建筑大师的作品。更有短视频向大家讲解每个案例的优点,对于低年级和考研的同学在案例的学习中都将起到一定的指导作用。
当然,可能还有优卜君未分析到位的地方,欢迎大家踊跃留言,我们一起讨论哦~
这是我们的第 06 期案例分析
鲅鱼圈万科品牌展示中心
SYA006
建筑师:直向建筑
地址:中国,辽宁,营口
项目年份:2012年

视频讲解
项目介绍
该项目是一个品牌展示中心,在这个项目中,建筑师试图解释两种关系,一是空间和风景的关系,二是公共和私属的关系。

建筑师在建筑的顶层设置了一个公共的观海平台,从地面进入这个平台的过程成为了空间体验的前奏。从一个较缓的坡道开始,穿过一片保留下来的银杏树林,进入一个切入建筑体量的路径,经过楼梯最终到达顶层。

平台朝向大海完全打开,联系参观者与大海。经过穿孔金属板的光斑随时间一栋,记录着太阳角度的变化。

平台对公众开放,上平台流线独立与建筑流线,增加平台的利用率,为周边提供一个良好的公共空间。
项目分析



△该项目一个品牌展示中心,建筑师在满足内部办公的需求上,营造了一个优质的公共空间。
同时将内外流线区分开,提高公共平台利用率,同时在公众流线上营造了一个空间序列。

△该项目的立面也是很好的学习案例,虚实变化丰富、明确。
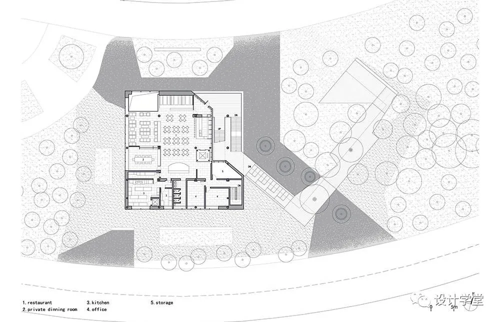
建筑图纸




视频讲解
— END —



