▲ 点击“K8设计网”,关注设计互动平台

一般在水电交底的时候
根据业主的需求
把图纸上的点位符号在现场落实
明确告知居住者插座的布局情况
如果水电交底没说清楚或者有一方理解的有偏差
施工后会发生拆了重新做返工的问题
耗时耗力费钱,极其的麻烦

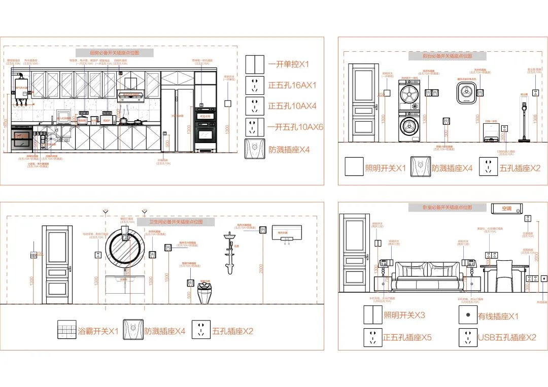
《全屋几点连线图及开关插座图例》

丨文件格式:DWG丨
资料目录

文件部分预览

















. END .
------------------
如何获取本套资料?
方法一:分享至朋友圈或者200人以上设计群后截图发给小编(保留20分钟以上截图,不得屏蔽任何人)。小编微信号:xzsj998 或 长按下面二维码识别添加截图获取。

方法二:如果不方便分享的话,可以直接扫码下方二维码购买(5元)



更 多 素 材 / 专 栏
免责声明:
以上图片及资料内容来源于网络,版权归原作者及其公司所有;
本资料仅供学习研究之用,不得用作于商业用途,若此素材侵犯到您的权益,请与我们联系删除;
部分文章推送时因种种原因未能与原作者联系上,若涉及版权问题,敬请原作者联系我们,立即处理。















