
今天在整理公众号往期精选推文的时候发现,关于石材幕墙的知识分享略少,所以今天跟大家分享的装饰知识就是关于石材幕墙的安装方式,供大家参考学习:
1、石材幕墙干挂方式
石材幕墙干挂方式主要有7种:
单肢短槽式、双肢短槽式、钢销式、通槽式干挂法、小单元式干挂法、背栓式、托板式。
几种幕墙形式中“短槽式”和“背栓式”最为常见。
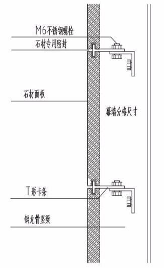
1)单肢短槽式干挂法


立剖面△

平剖面△
单肢短槽式是将相邻两块石材面板,共同固定在“T”形卡条上,“T”形卡条为不锈钢或铝合金,卡条再与骨架固定。
2)双肢短槽式干挂法

双肢短槽式干挂法是单肢短槽的改进做法,将相邻的两块石材面板共同固定在“干”形卡条上,“干”形卡条一般采用铝合金挤压成型,与骨架固定。
3)钢销式干挂法

钢销式干挂法又称插针法,是干挂石工艺中最早、最简洁的做法,钢销式又分两侧连接和四侧连接。
结构特点是相邻两块石材面板固定在同一支钢销上,钢销固定在连接板上,连接板再与骨架固定。
4)通槽式干挂法

通槽式挂法一般采用铝合金SE组合挂件(部分采用T型或蝶形挂件),在每块石板上下边开通长槽,槽深度小于 15mm,开槽宽度宜为 6mm,挂件厚度大于 4mm。
5)小单元式干挂法

立剖面△

平剖面△
小单元式干挂法是由金属副框,各种单块板材采用金属挂钩与立柱,横梁连接的可以拆装的建筑幕墙。
小单元式的干挂法工艺中的石材,是通过铝合金卡条与骨架相连,但相临的石材均是独立与骨架(铝合金主梁)相连。
6)背栓式


背栓式干挂法是将石材饰面板与龙骨结构进行连接,然后借助预埋件将龙骨结构固定在建筑结构上,同时借助底部拓孔技术,将背栓的挂件与石材的饰面板进行有效固定。

这种方式可以有效地避免两者连接处的开缝问题,并消弱石材饰面板对龙骨结构的反作用,很大程度上避免了石材局部的破坏。
7)托板式


连接形式——铝合金托板连接、粘接均在工厂完成,质量可靠。
安装结构——采用挂式结构,安装时可进行三维调整。采用弹性胶垫安装,可实现柔性连接,提高抗震性能。
2、不规则碎拼材料干挂实现方式
1)工艺做法

① 在原建筑结构上钻孔安装膨胀螺栓,然后将5角钢固定在墙面上。根据需求和力学计算确定其安装密度和深度形成钢骨架;

② 将 3~5mm 镀锌薄钢板冲压成蜂窝板,根据现场实际情况确定孔洞的大小和密度。一般根据不规则面层装饰材料的平均大小,来确定最小面积材料,至少应覆盖5个以上的空洞为宜,以确保不规则面层装饰材料的安装牢固度。;

③ 现场使用不锈钢钻尾螺丝,将镀锌蜂窝钢板固定在焊接好的钢骨架上,使用柔性结构胶涂抹在不规则面层装饰材料上。粘贴的位置需要对准用力压下,待部分柔性结构胶从镀锌蜂窝钢板的孔洞中溢出即可;

④ 不规则面层装饰材料安装完成后,待柔性结构胶风干凝固后,使用钻尾螺丝对部分不规则面层装饰材料进行二次加固,产生的表面孔洞使用调色水泥进行修补;

⑤ 使用参胶水泥经过调色后,对不规则面层装饰材料之间缝隙进行嵌缝处理。
2)工艺注意要点
① 安全考虑
考虑到幕墙材料自重大存在脱落的可能性,需要对柔性结构胶与钢板的附着力进行测试;
采用基层钢板打孔的方式来实现溢胶成勾法点挂不规则幕墙材料技术,确保饰面材料与钢板之间的附着力;
② 背面防剥落处理
采用多角度斜角切割开槽,使材料的背面形成凹槽,结构胶填满凹型槽时形成一个扭矩挂钩形式,来增加结构胶和不规则面层材料的粘结力。

③ 干挂结构材料深化设计调整
用物理锚栓的方式,将结构材料固定在不规则材料室内外幕墙干挂系统基层结构上;
考虑到室内外幕墙的高度超高、面积过大,单块面层装饰材料自重较大,多板块层层累加易造成面层破碎或剥离现象;
可以通过分层局部表面隐蔽锚栓的固定方式,将面层材料与基层钢板锚固,防止面层材料的破碎与下垂;
④ 防止孔洞氧化
考虑到薄钢板孔洞易腐蚀,可采用以下方式进行防护处理:

3)碎拼材料干挂方式的优势
① 解决各种不规则碎拼材料幕墙的安装困难;
② 安全性提高:超薄金属板做基层,减轻结构自重,减少对基层的影响,结合三重稳固技术,防止面层材料破碎下坠;
③ 经济效益提高:面材价格便宜,不容易耗损,重量轻,运费低廉,后期维护比天然石材简单。
有些石材幕墙非常容易脏,这是为什么呢?
3、为什么石材幕墙这么容易变脏?
1)避免设置错误的排水系统
在不少建筑实例中,我们常常会发现,同一栋建筑,在相同物质条件下,不同地方的污染程度往往也不同,若仔细观察,不难发现,有些情况下污染严重的位置,往往或多或少会存在一些积水的问题。
积水问题的由来:
① 设计了排水坡度,却设置了错误的排水朝向。
导致顶部积水向内排放,形成一定的积水。水流动时又带动积灰,使得灰尘附着在石材表面上,便形成水迹,久而久之,便出现了一边污染更严重的现象;

渗水的幕墙在外观和性能上都会受很大影响△
② 积水问题也可能由其后排水管设置不合理引发。
有些高端别墅为了追求其外立面整体性,往往将排水管设置在石材幕墙以内,违背了“形式服从功能”的原则,一旦出现排水管渗水则很难第一时间排查,且往往要等到积水渗到石材面板以外才发现。
建议措施:
这两种造成积水隐患的因素,是近几年建筑设计中比较容易为人所忽视的部分。由于长时间污水浸润,会对石材本身的强度、外观造成不可逆的损伤。
而且如排水管破裂的这样的问题,往往又很难第一时间排查,因此在实际操作中,我们应当尽力避免设置错误的排水系统,尽量避免这些积水隐患出现。
2)尽量选择合适的面材
石材有很多种,不同的石材产品,耐久性、耐腐蚀性、抗风化等性能都不同。
石材种类及特性
① 有些石材仅仅适合在室内使用,而不能胜任室外复杂多变的自然环境。若是用的久了,其性能、硬度等都会受到一定的影响;
② 另外,还有一些石材,如砂岩,表面孔隙较多,久而久之,便容易因为滋生霉菌而产生黑斑,甚至长出绿色苔藓,给护理工作带来很大的困扰。
建议措施:
在实际工作中,我们应该具体情况具体分析。通过仔细考察和分析建筑周边的气候条件、项目设计的实际需求等,尽量选择合适的石材来作为幕墙材料。

花岗岩是比较理想的室外石材幕墙材料△
安装之前还要注意对面材进行处理:
① 在选择完合适的石材面板后,需做六面浸泡防护处理,避免其外部受到其他污染源。要尽量保证防水措施施工到位,不可漏刷;
② 对于基面原先孔隙较大的、有裂缝、不平等缺陷的,也需要尽量将其修补抹平。
3)以正确的方式安装保温材料
不少石材幕墙的安装过程中,往往伴随着保温材料的填充。在以往不少实际操作案例中,工作人员一般使用的是保温棉。
保温棉的作用及错误安装的危害
① 大部分情况下,保温棉在运送至现场时其外表面均会包以一层铝箔,起到隔绝水分、保持干燥的作用。然而许多施工单位的工作人员不明白其用途,简单的认为其仅仅只是包装,在施工过程中将其撕毁的比比皆是;
但一旦出现梅雨季节,保温棉充分吸收水份后自重增加致使其从原来结构上塌落,致使保温材料无法起到有效的保温节能效果;

保温材料的填充是石材幕墙安装过程中不可或缺的一环△
② 保温棉塌落回导致底部废棉堆积,吸足了水的保温棉与石材面板、连接件紧贴,不仅容易造成氧化,还会导致水分从石材的毛细孔中深处,形成不均匀的水斑。
因此,在实际的操作过程中,我们也要注意以正确的方式来安装保温材料。
4)使用合格的密封胶与转接挂件
根据以往的经验,石材密封胶对石材面板的污染是最大的。
石材密封胶的污染与转接挂件的影响
① 由于其材质的特性,密封胶在对石材进行侵蚀的过程中,往往是从石材的边部向内部不断渗透的,久而久之,无论是物理清洗,还是化学清洗,都无法得到有效的清洁;
② 在建筑建成初期,劣质转接挂件对建筑的影响并不会很大,但随着使用的年限增长,金属表面镀锌层受到磨损,在水份的氧化作用下将形成氧化铁,而铁锈又容易通过连接部位渐渐往外渗透,从而导致石材面板出现锈痕;
建议措施:
① 在施工的过程中,我们应当尽量选择质量好的密封胶,并且在使用之前,需要对所选择的密封胶进行渗油实验。
只有无污染的密封胶,才能避免各种污质与油性物质渗入石材内部,形成污染;


劣质石材密封胶对面材的污染是不可逆的△
② 幕墙结构需采用不锈钢或者铝合金来连接,以往出于成本考虑,不锈钢通常运用得更为广泛一些。
在施工过程中,我们也应当严格把控转接挂件的质量,以避免该类事故的发生。



