
新筑时代和你一起学习的第2736天
新筑课堂——装饰行业知识在线学习平台
作者丨新筑君
添加微信:xinzhushidai 发送“新筑课堂”
领20G+项目施工资料礼包,加入专业装饰交流群
为了帮助大家规范在项目设计和施工过程中容易忽视的一些关键节点做法,消除质量隐患及通病预防,今天我们分享室内装饰六大分项关键工艺构造节点做法(顶/墙/地面与交接节点/卫浴/室内门窗六大分项共33个关键节点做法)供大家做技术交底与施工参考。

01.
顶面装饰构造节点精选
1、纸面石膏板顶面节点(暗藏灯条)
2、矿棉板顶面节点
3、铝方通顶面节点
4、金属单板顶面节点
5、GRG板顶面节点
6、顶面反向支撑节点
7、顶面伸缩缝节点
02.
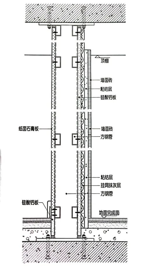
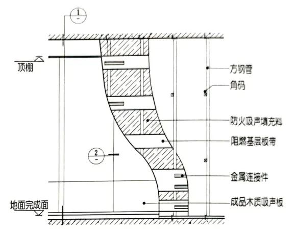
墙柱面装饰构造节点精选
1、轻钢龙骨隔墙节点(转角)
2、钢骨架隔墙节点
3、墙面砖干挂节点
4、石材干挂墙面节点(阴阳角)
5、木质吸声板墙面节点
6、金属复合板墙面节点
7、石材墙面伸缩缝节点
——除了以上墙面施工以外,新筑课程里还有很多关于墙面施工的课程,长按二维码识别学习:
03.
地面装饰构造节点精选
1、地砖地面节点
2、木地板节点
3、自流平地面节点
4、地暖地面节点
5、地面伸缩缝节点
——除了以上地面施工以外,新筑课程里还有很多关于地面施工的课程,长按二维码识别学习:
04.
墙/顶/地面交接构造节点精选
1、壁纸墙面与顶面交接点
2、石膏板顶面交接节点
3、金属顶面交接节点
4、墙面与地面交接节点
5、踢脚线节点
——除了以上材料收口施工以外,新筑课程里还有很多关于地面施工的课程,长按二维码识别学习:
05.
卫浴空间装饰构造节点精选
1、石材台面洗面盆节点(台下盆)
2、卫生间入口处墙面交接节点
3、淋浴隔断交接节点
4、浴缸节点
5、壁挂式坐便器节点
——除了以上施工工艺以外,新筑课程里还有很多关于施工的课程,长按二维码识别学习:
06.
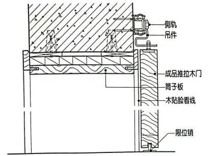
室内门窗装饰构造节点精选
1、双扇平开门及门套节点(实木镶板门)
2、平移门节点(明装)
3、消火栓暗门节点(石材干挂墙面)
4、电梯门套节点(不锈钢厚板)
图文部分源网络资料整理,侵权即删
如需转载请联系我们,并注明文章来源
如果你正在寻找一种
项目管理更简单
减轻麻烦的方法
请看过来

你也可以提前进入
集合了80000+专业装饰人的微信群
和大家一起交流
get你需要的装饰资源!

长按扫码 添加微信
备注:进群









































































































































