


凿除洞口四壁松动的石子、浮浆,清除表面的垃圾和灰尘,然后由里向外做成楔形,在外侧用模板支承,充分洒水湿润。再管子外壁和预留洞壁,刷一遍掺有108胶的水泥浆,调配1:2干硬性水泥砂浆,并掺入3 . 8 %的 防水粉,然后分两次塞满,再压实,对表面进行抽平、打毛。补好洞后,记得挂提示牌:"24小时内不得碰动"。
按地漏高度确定找坡坡度及方向,并在阴阳 角处抹成半径为100mm的圆弧。
在侧排水管、地漏固定补洞、找平层完成后,进行3到4天的养护,然后进行第一次蓄水试验,要满灌水试验24小时。确定没有渗漏后再进行下道工序。防水层施工完成后养护1-2天,然后进行第二次蓄水试验,要24小时盛水试验,经监理及甲方审核通过后进行下道工序施工。
基层清理 → 找平找坡层 → 防水层 → 闭水试验 → 防水保护层 → 饰面层 → 闭水试验。

(1)降板式卫生间
基层处理 → 找平找坡层 → 防水层 → 闭水试验 → 防水保护层 → 饰面层→闭水试验。

(2)沉箱式卫生间
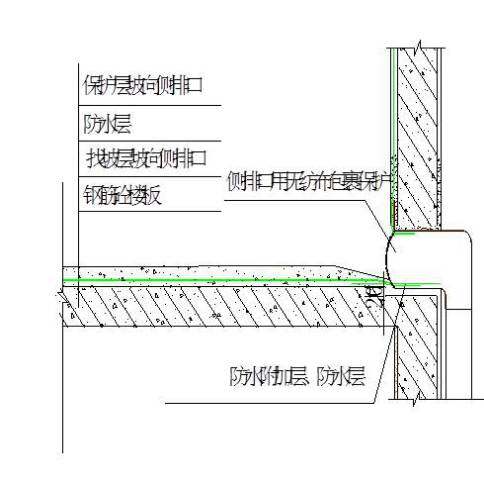
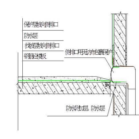
基层处理 → 侧排口、管周等部位封堵 → 找平找坡层 → 防水附加层 → 防水层 → 闭水试验 → 防水保护层 → 沉箱内管道安装 → 侧排口裹无纺布保护 → 室内立管周浇细石混凝土 → 陶粒混凝土层 → 找平找坡层 → 防水层 → 闭水试验 → 防水保护层 → 饰面层 → 闭水试验。


基层清理 → 找平找坡层 → 防水层 → 闭水试验 → 防水保护层 → 饰面层 → 闭水试验。

安装管道 → 支模 → 浇注混凝土 → 闭水试验 → 打密封膏 → 找平找坡层 → 防水附加层 → 防水层 → 闭水试验 → 防水保护层 → 饰面层 → 闭水试验。


安装地漏 → 支模 → 浇注混凝土 → 闭水试验 → 打密封膏 → 找平找坡层 → 防水附加层 → 防水层 → 闭水试验 → 防水保护层 → 饰面层 → 闭水试验。

检查洞口 → 基层处理 → 安装烟风道 → 堵塞孔洞 → 闭水试验 → 打密封膏 → 找平找坡 → 防水附加层 → 防水层 → 闭水试验 → 防水保护层 → 饰面层 → 闭水试验。


安装管道 → 封堵孔洞 → 闭水试验 → 打密封膏 → 浇筑反坎 → 施工管井墙 → 找平找坡层 → 防水附加层 → 防水层 → 闭水试验 → 防水保护层 → 饰面层 → 闭水试验。






办公地址:浙江杭州湾上虞经济技术开发区经十五路六号
公司座机:0575-8273 8787合作热线:13735321777企业官网:www.yuyist.com.cn经营理念:专业 · 用心 · 诚信 · 可靠



