












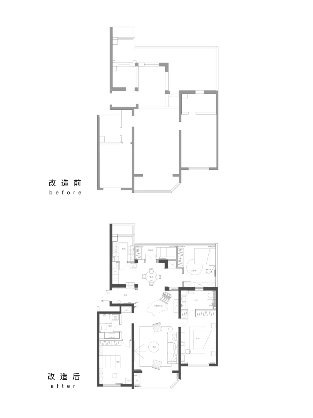
这套164平方米的老房子,是一处带花园露台的平层住宅。虽然面积不小,但真正高效利用的空间却十分有限。
?屋主一家即将迎来第二个孩子,升级为温馨的四口之家。他们希望这次改造,能在保障每位家庭成员生活品质的同时,也为孩子们留出充足的成长空间。
?原先的餐厨区非常局促,厨房仅容一人操作,餐厅也显得拥挤。为了扩大公共活动区域,并将空间让给更迫切的需求,设计上将厨房与原有储藏间打通,整合为一个集烹饪与家务于一体的多功能区域。
?同时,将部分露台纳入室内改造范围,额外增设出一间儿童房和保姆房。
?改造后,整个家的布局以餐桌为核心,形成流畅的回形动线,串联起各个功能区域。更多自然光被引入室内,空间豁然开朗,家的氛围也更凝聚、更温馨。
?与最初结构相比,改造后的住宅视野通透、动线明晰。尽管功能分区增多,却并未被切割成封闭的“小格子”,而是彼此串联、相互渗透,形成整体。
此次改造,我们更着眼于梳理空间的结构与功能之间的关系,希望在营造全家欢聚氛围的同时,也为每位家人保留一片可以安静独处的角落。
设计团队:@一序设计
#空间设计改造 #老房改造 #老房子改造 #旧房改造 #平层设计 #居住空间设计 #装修灵感库 #家居美学 #北京室内设计 #一序设计
?屋主一家即将迎来第二个孩子,升级为温馨的四口之家。他们希望这次改造,能在保障每位家庭成员生活品质的同时,也为孩子们留出充足的成长空间。
?原先的餐厨区非常局促,厨房仅容一人操作,餐厅也显得拥挤。为了扩大公共活动区域,并将空间让给更迫切的需求,设计上将厨房与原有储藏间打通,整合为一个集烹饪与家务于一体的多功能区域。
?同时,将部分露台纳入室内改造范围,额外增设出一间儿童房和保姆房。
?改造后,整个家的布局以餐桌为核心,形成流畅的回形动线,串联起各个功能区域。更多自然光被引入室内,空间豁然开朗,家的氛围也更凝聚、更温馨。
?与最初结构相比,改造后的住宅视野通透、动线明晰。尽管功能分区增多,却并未被切割成封闭的“小格子”,而是彼此串联、相互渗透,形成整体。
此次改造,我们更着眼于梳理空间的结构与功能之间的关系,希望在营造全家欢聚氛围的同时,也为每位家人保留一片可以安静独处的角落。
设计团队:@一序设计
#空间设计改造 #老房改造 #老房子改造 #旧房改造 #平层设计 #居住空间设计 #装修灵感库 #家居美学 #北京室内设计 #一序设计


