手机版
二维码
购物车
(
0
)
供应
求购
公司
团购
展会
资讯
招商
品牌
人才
知道
专题
图库
视频
下载
商圈
推广
热搜:
采购方式
甲带
滤芯
气动隔膜泵
减速机
减速机型号
带式称重给煤机
履带
无级变速机
链式给煤机
首页
供应
求购
公司
团购
展会
资讯
招商
品牌
人才
知道
专题
图库
视频
下载
商圈
首页
>
资讯
>
家居用品
轻改造爸妈的家?
日期:2025-11-08 18:18:21 来源:网络整理 作者:本站编辑
评论:0
轻改造爸妈的家?
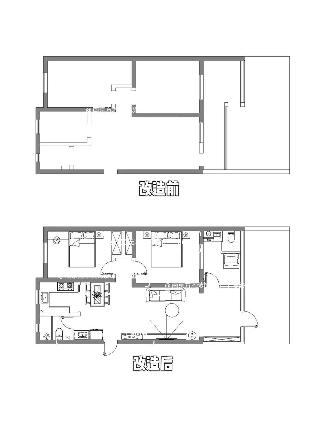
▫️户型为两房,女儿为老人装修的养老房,面积78㎡,业主要求,简洁整齐,希望有一个次净衣区,尽可能多点的收纳空间,动线划分合理。
▫️改造内容
去掉原有传统电视墙,做整排鞋帽柜背景墙一体柜,进门收纳整齐全解决
厨房门内移,给出餐厅空间,三联动门,U型橱柜,既可以增大厨房橱柜空间,又可以跟客厅阳台南北通透
阳台门连窗打通,不要移门,一体式客餐厅阳台,视觉通透,整体显大
阳台也被充分的利用起来,一边做洗衣空间,另一边做整面储物柜,增加收纳空间。
原创案例,感谢喜欢,更多改造案例将持续分享~~
#轻改造爸妈家
#记录吧就现在
#旧房改造
#装修前后对比
#老破小翻新改造
#老房改造翻新
打赏
更多
>
同类资讯
• 香港私楼装修|全屋定制完终于不
0
条
相关评论
推荐图文
推荐资讯
点击排行
网站首页
|
关于我们
|
联系方式
|
使用协议
|
版权隐私
|
网站地图
|
排名推广
|
广告服务
|
积分换礼
|
网站留言
|
RSS订阅
|
违规举报
|
皖ICP备20008326号-18
(c)2008-2022 免费发布网 All Rights Reserved