手机版
二维码
购物车
(
0
)
供应
求购
公司
团购
展会
资讯
招商
品牌
人才
知道
专题
图库
视频
下载
商圈
推广
热搜:
采购方式
甲带
滤芯
气动隔膜泵
减速机
减速机型号
带式称重给煤机
履带
无级变速机
链式给煤机
首页
供应
求购
公司
团购
展会
资讯
招商
品牌
人才
知道
专题
图库
视频
下载
商圈
首页
>
资讯
>
家居用品
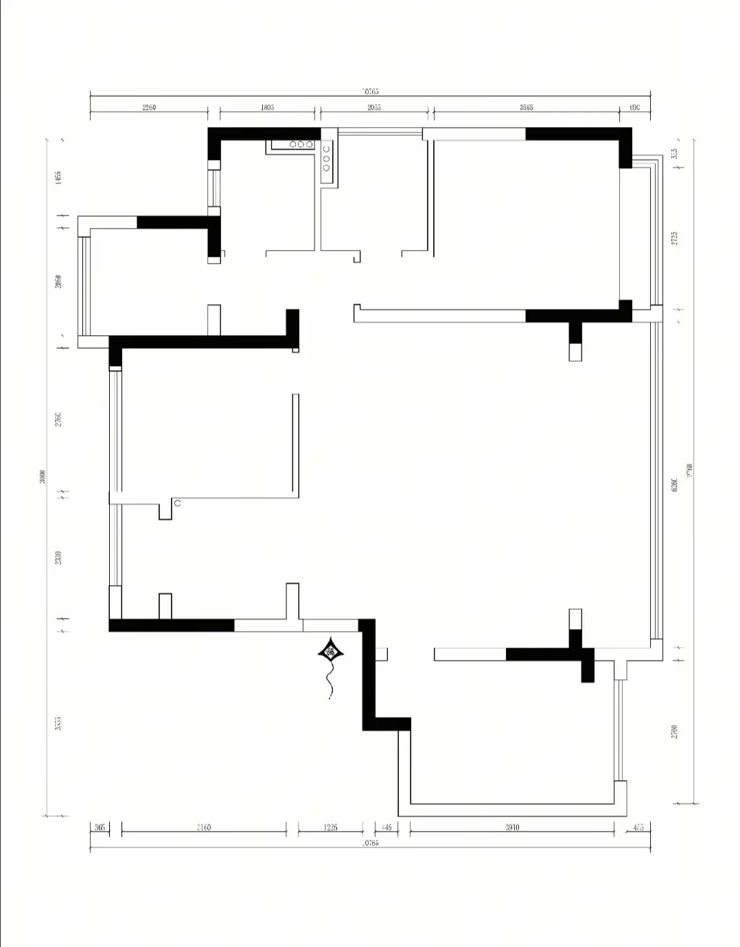
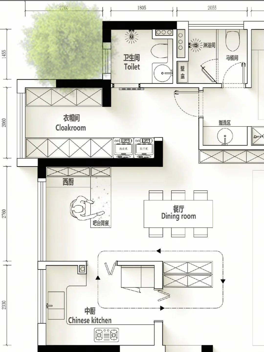
四室改两室,要的就是舒适❗❗❗
日期:2025-11-08 17:34:01 来源:网络整理 作者:本站编辑
评论:0
四室改两室,要的就是舒适❗❗❗
原户型三室两卫!
客户三口之家,基本上没有其他人过夜?️
需要多收纳,最好能有个衣帽间
厨房太小,没有餐厅,客厅不好摆放
设计改造之后:
保留主卧和南次卧,保证私密性
相互不吵闹
两个北卧室一个改餐厅,一个改衣帽间增加收纳,衣帽间做个可床可柜的多功能柜和隐藏推拉门
厨房餐厅一体设计,环绕动线,中西厨结合,满足各种需求
客厅增加书房功能
入户玄关冰箱一体设计
#空间布局规划
#户型优化设计
#设计方案
#空间设计改造
#户型改造
#居住空间设计
#户型优化布局
打赏
更多
>
同类资讯
• 香港私楼装修|全屋定制完终于不
0
条
相关评论
推荐图文
推荐资讯
点击排行
网站首页
|
关于我们
|
联系方式
|
使用协议
|
版权隐私
|
网站地图
|
排名推广
|
广告服务
|
积分换礼
|
网站留言
|
RSS订阅
|
违规举报
|
皖ICP备20008326号-18
(c)2008-2022 免费发布网 All Rights Reserved