手机版
二维码
购物车
(
0
)
供应
求购
公司
团购
展会
资讯
招商
品牌
人才
知道
专题
图库
视频
下载
商圈
推广
热搜:
采购方式
甲带
滤芯
气动隔膜泵
减速机
减速机型号
带式称重给煤机
履带
无级变速机
链式给煤机
首页
供应
求购
公司
团购
展会
资讯
招商
品牌
人才
知道
专题
图库
视频
下载
商圈
首页
>
资讯
>
家居用品
99%的人忽略的布局秘诀!让空间放大3倍!
日期:2025-11-08 17:23:11 来源:网络整理 作者:本站编辑
评论:0
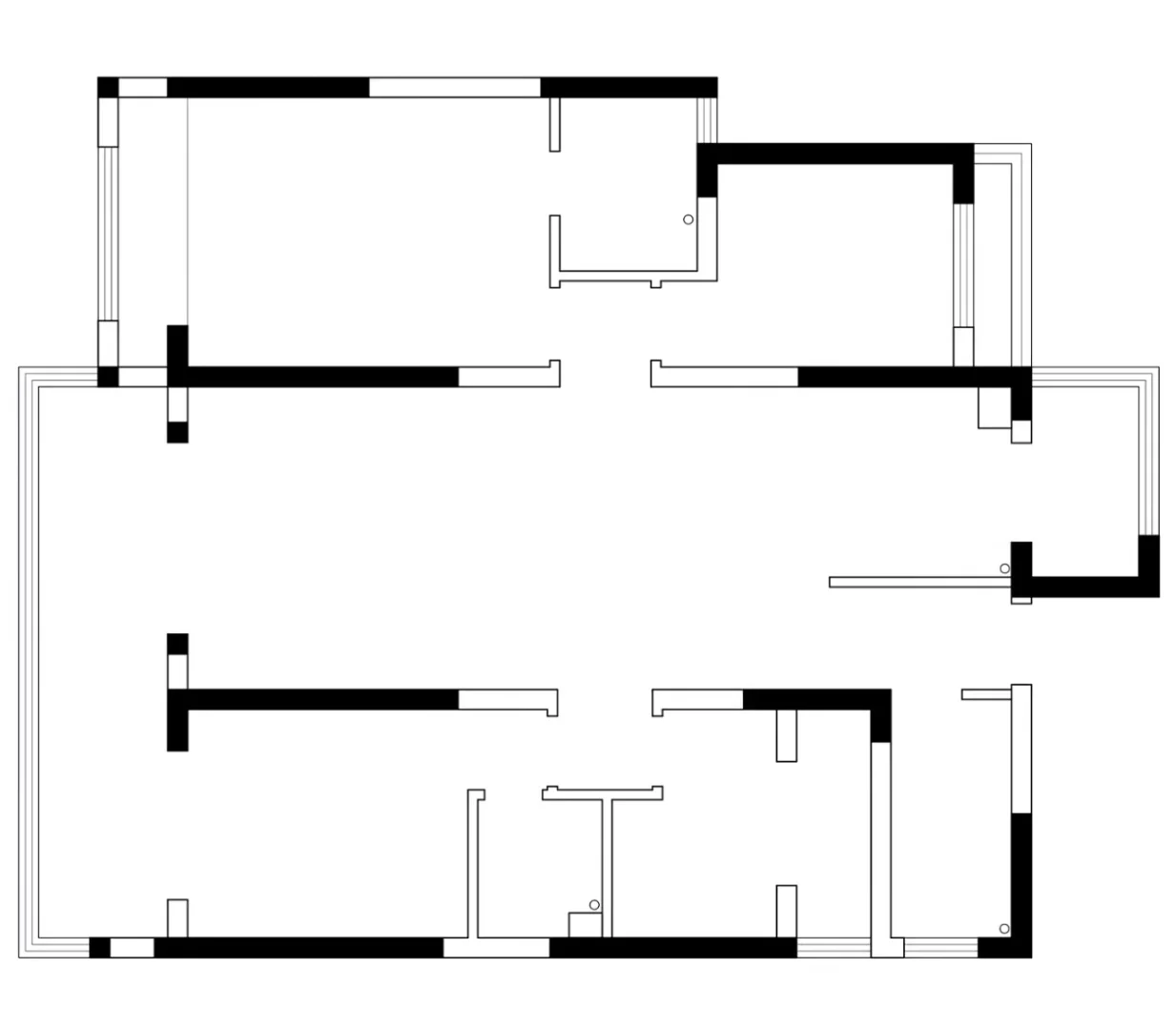
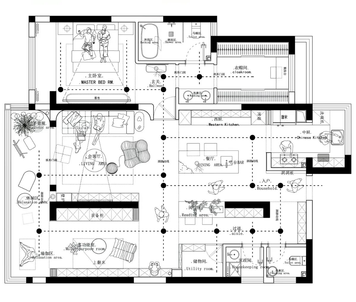
99%的人忽略的布局秘诀!让空间放大3倍!
「户型再小,也能住出豪宅感!」
今天分享一套刚完工的168㎡户型改造方案✨
原始户型问题:
❌ 客厅狭小,采光差
❌ 动线混乱,储物不足
❌ 次卧利用率极低
? 我的改造思路:
1️⃣ 砸掉非承重墙 → 开放式LDK布局,瞬间通透!
2️⃣ 主次卧合并 → 打造带衣帽间的“套房式主卧”
3️⃣ 动线分明,功能互通,互动。
? 小户型必看细节:
✔️ 用玻璃隔断代替实墙,引光入室
✔️ 家具尺寸精准到厘米,榨干每1㎡
✔️ 动线规划“回字形”,家务效率提升50%
? 你以为的“缺陷户型”,其实只是缺个好设计!
#平面规划方案
#设计
#设计装修
#室内设计
#简约
#大气
#精致生活
打赏
更多
>
同类资讯
• 香港私楼装修|全屋定制完终于不
0
条
相关评论
推荐图文
推荐资讯
点击排行
网站首页
|
关于我们
|
联系方式
|
使用协议
|
版权隐私
|
网站地图
|
排名推广
|
广告服务
|
积分换礼
|
网站留言
|
RSS订阅
|
违规举报
|
皖ICP备20008326号-18
(c)2008-2022 免费发布网 All Rights Reserved