









-
Location / Chengdu
Design / @FunHouse方室设计
Area /三利宅院 567㎡+159㎡(花园)
-
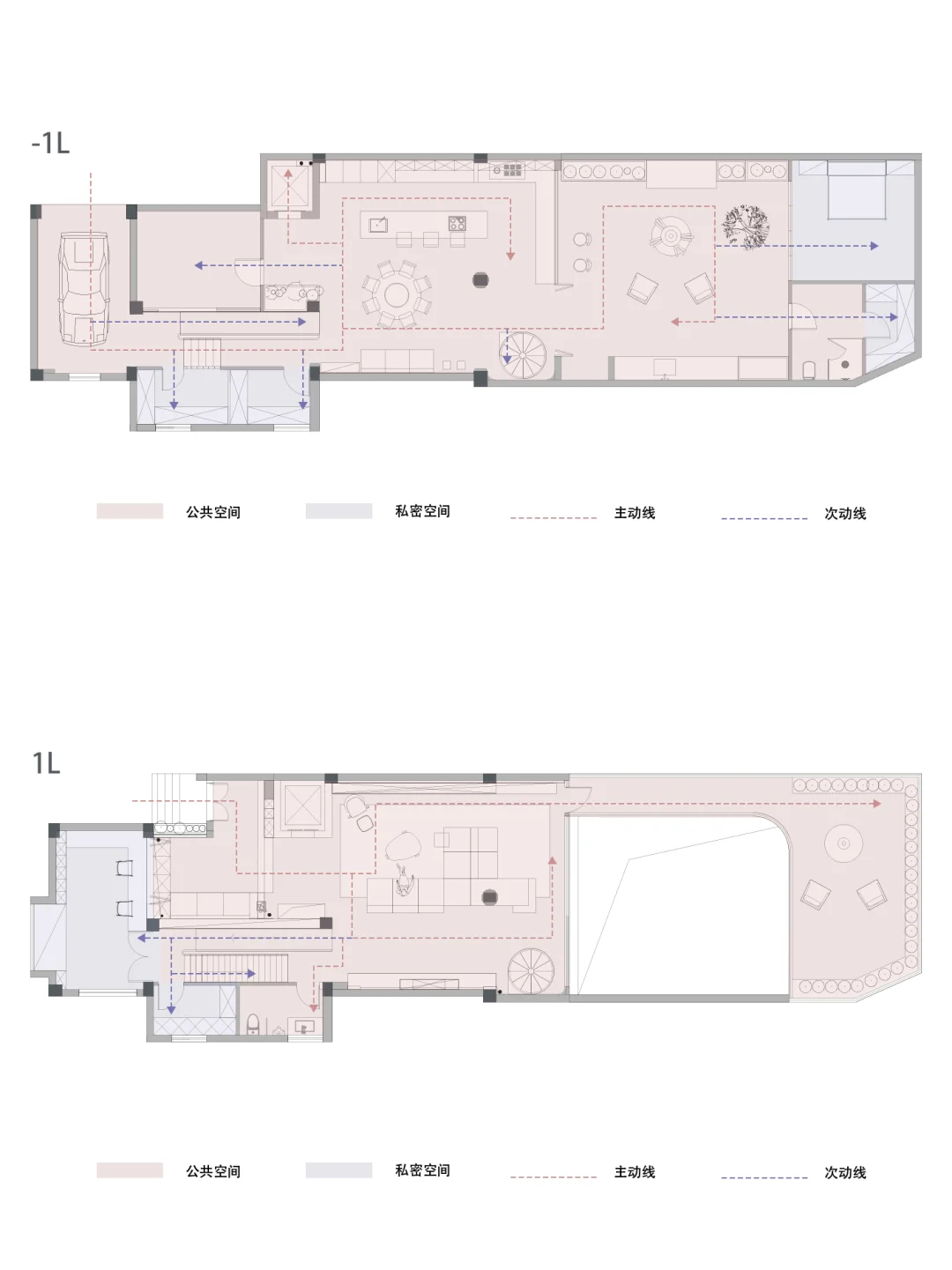
传统动线像无形的墙,把家拆成孤立的角落 —— 老人在客厅看电视,年轻人在厨房备餐,孩子在阳台玩耍,想搭句话都要绕路。洄游动线以「环形路径」重构空间,串联起客厅、厨房、餐厅、阳台,四室同堂的家人无需折返,转身就能看见彼此,互动随时发生。
-
一楼客厅以开放格局为基础,洄游动线沿客厅边缘自然延伸,既不占用核心活动区,又能顺畅衔接其他空间。搭配可灵活调整的 360° 可坐模块沙发,用洄游动线串联起电视、沙发、壁炉、阳台,开放式的空间让家人的互动随时可见。
-
负一楼专属餐厨区,利用洄游动线将厨房和餐厅串联在一起,特意在动线侧边摆放一张小沙发。妈妈在厨房切菜备餐时,老人可顺着洄游路径走到沙发坐下帮忙择菜,不用绕路就能递上食材;孩子趴在桌边分享学校趣事,起身沿动线跑两步就能到厨房拿水果。做饭不再是一个人的忙碌,洄游动线让备餐过程始终与家人保持近距离,协作与唠家常两不误。
#我在小红书搞装修 #室内设计 #装修 #空间规划设计 #装修设计 #室内装修 #家装设计 #家装 #换个角度看我家 #家是我的能量场
Location / Chengdu
Design / @FunHouse方室设计
Area /三利宅院 567㎡+159㎡(花园)
-
传统动线像无形的墙,把家拆成孤立的角落 —— 老人在客厅看电视,年轻人在厨房备餐,孩子在阳台玩耍,想搭句话都要绕路。洄游动线以「环形路径」重构空间,串联起客厅、厨房、餐厅、阳台,四室同堂的家人无需折返,转身就能看见彼此,互动随时发生。
-
一楼客厅以开放格局为基础,洄游动线沿客厅边缘自然延伸,既不占用核心活动区,又能顺畅衔接其他空间。搭配可灵活调整的 360° 可坐模块沙发,用洄游动线串联起电视、沙发、壁炉、阳台,开放式的空间让家人的互动随时可见。
-
负一楼专属餐厨区,利用洄游动线将厨房和餐厅串联在一起,特意在动线侧边摆放一张小沙发。妈妈在厨房切菜备餐时,老人可顺着洄游路径走到沙发坐下帮忙择菜,不用绕路就能递上食材;孩子趴在桌边分享学校趣事,起身沿动线跑两步就能到厨房拿水果。做饭不再是一个人的忙碌,洄游动线让备餐过程始终与家人保持近距离,协作与唠家常两不误。
#我在小红书搞装修 #室内设计 #装修 #空间规划设计 #装修设计 #室内装修 #家装设计 #家装 #换个角度看我家 #家是我的能量场


