







刷了几百个衣柜,终于抄到了这个分段式免拉手衣柜!小户型救星,12㎡主卧也能颜值收纳两不误!
·
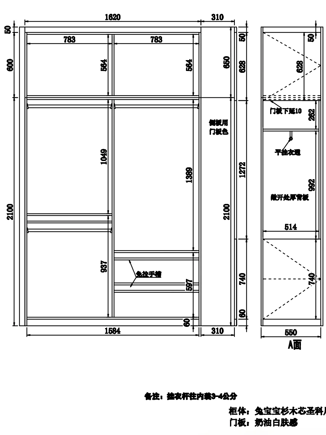
✨被问爆的细节整理好啦,快码住?
▫️材质
柜门:欧松板(稳定防变形)
柜体:实木芯板(结实耐用)
▫️颜色
柜门:奶油白肤感(温柔治愈)
柜体:原木色调(自然清新)
▫️环保等级
ENF级(甲醛释放量超低,选E0级以上更安心)
▫️价格
按投影面积计算:760/平
▫️制作方式
全屋定制(非木工现场打,细节更精致)
▫️见光板
有!和柜门同色,整体感超强
·
?小户型做衣柜记住这几点:
✔️分段设计+免拉手,视觉简洁空间显大
✔️浅色系搭配,温馨不压抑
✔️选环保材料,住着才安心
·
正在装修的宝子们可以参考哟~希望你们也能装出理想中的衣柜!?
#衣柜内部格局 #衣柜 #衣柜布局 #柜门与柜体搭配 #衣柜设计 #无拉手设计 #你家柜子长这样
·
✨被问爆的细节整理好啦,快码住?
▫️材质
柜门:欧松板(稳定防变形)
柜体:实木芯板(结实耐用)
▫️颜色
柜门:奶油白肤感(温柔治愈)
柜体:原木色调(自然清新)
▫️环保等级
ENF级(甲醛释放量超低,选E0级以上更安心)
▫️价格
按投影面积计算:760/平
▫️制作方式
全屋定制(非木工现场打,细节更精致)
▫️见光板
有!和柜门同色,整体感超强
·
?小户型做衣柜记住这几点:
✔️分段设计+免拉手,视觉简洁空间显大
✔️浅色系搭配,温馨不压抑
✔️选环保材料,住着才安心
·
正在装修的宝子们可以参考哟~希望你们也能装出理想中的衣柜!?
#衣柜内部格局 #衣柜 #衣柜布局 #柜门与柜体搭配 #衣柜设计 #无拉手设计 #你家柜子长这样


