

















? 建筑概念设计赏析与评论?067
?【案例】利和兴移动智能终端自动化设备生产及研发中心项目(一期)(设计单位:华南理工大学建筑设计研究院 )
⭐【设计理念】
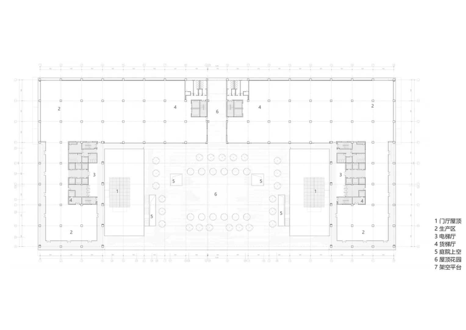
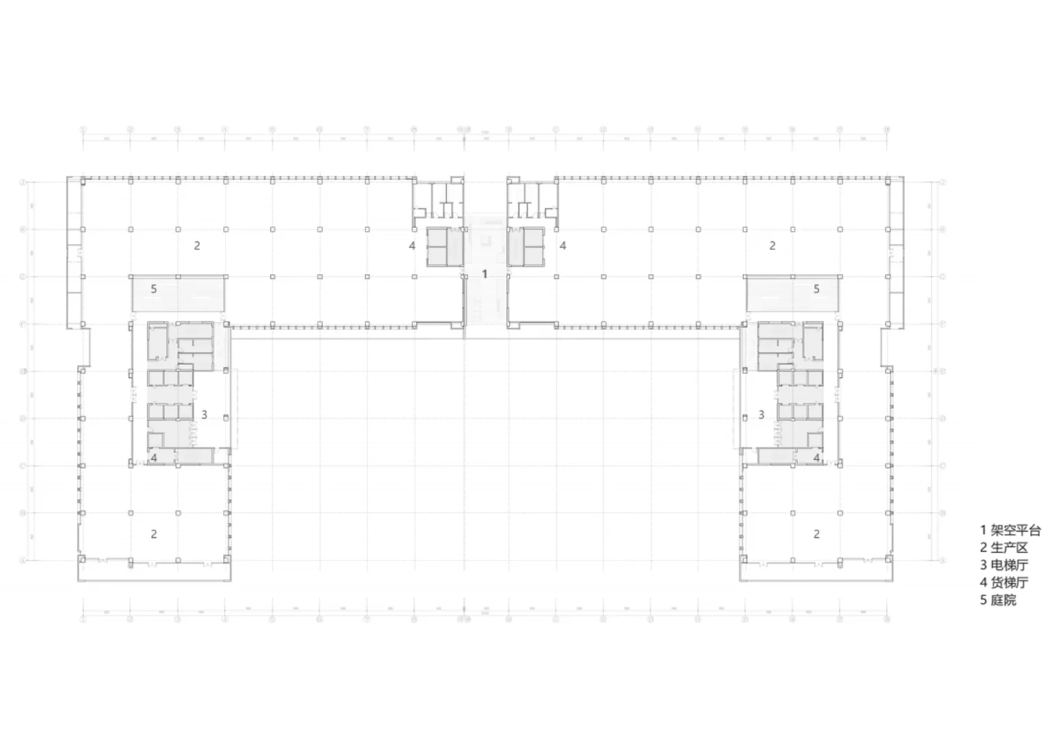
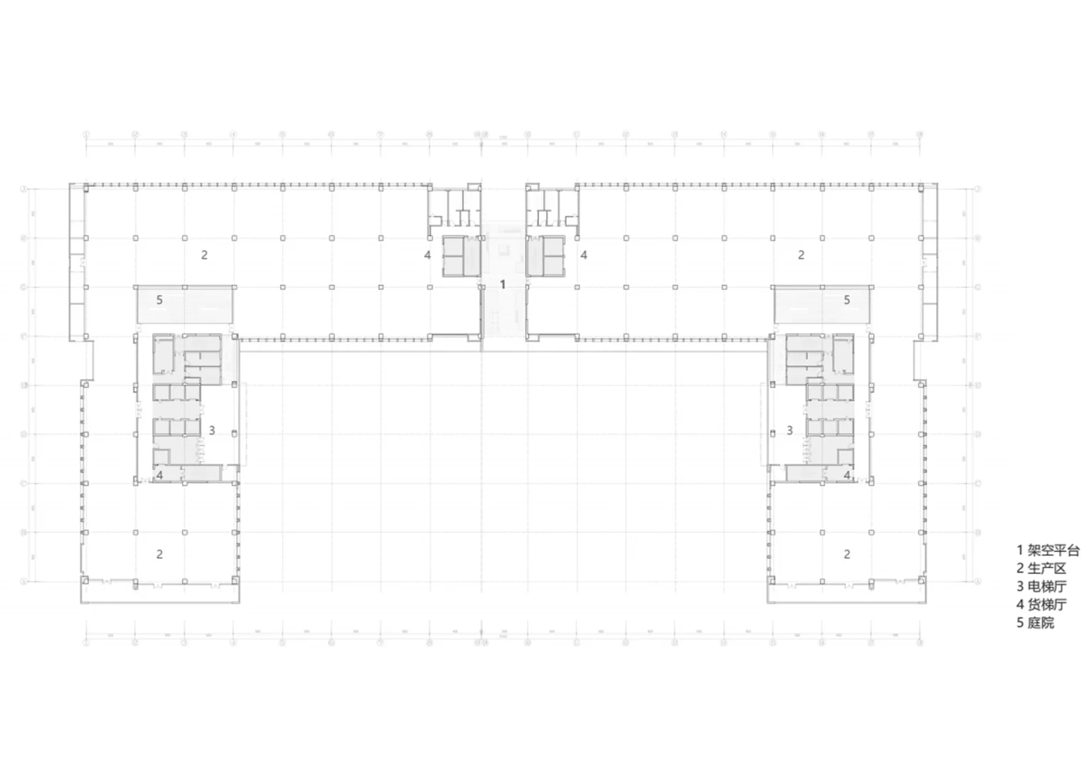
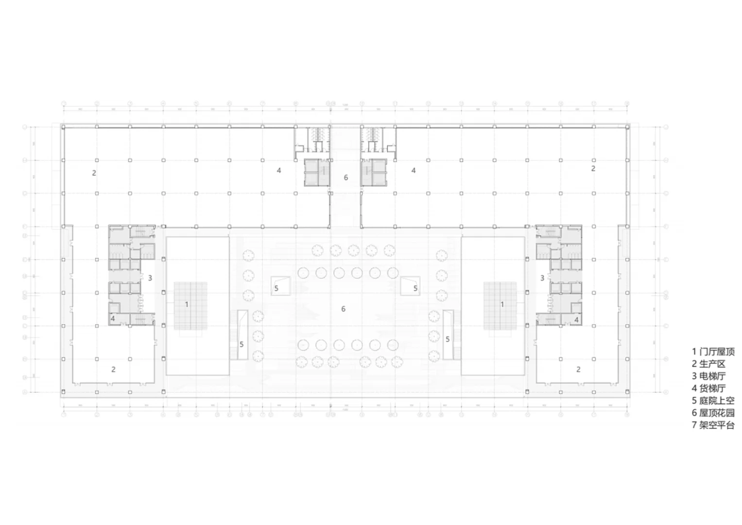
? 基地位于广东省江门市江海区高新区,西临南山路,南临龙湖路,北侧与西侧均为工业用地,南侧为江门幼儿师范高等专科学校,东侧为居住区,东北角为龙溪湖公园。规划用地面积44649㎡,建设用地面积33378㎡,其中一期厂房建筑总面积约45017㎡,高 30.3m,地上6层,地下局部1层。
? 项目旨在打破行列式厂房的传统布局,从工人群体的心理需求出发,结合工艺要求,通过庭院、屋顶花园、空中花园营造高效、健康、舒适的生产环境,并运用灰空间、冷巷、 遮阳构件、立体绿化等多种被动式节能措施,回应岭南地域气候特征,形成多样建筑空间,彰显人文生态价值,是对岭南地域特色新工业建筑模式的一种积极尝试。
? 项目从人文关怀的企业管理理念出发,在入口处塑造了“园林-门廊-庭院-玻璃门厅”的空间序列,利用四种不同的空间形式,实现入口空间的起承转合,为企业和工人提供了亲近自然、集中交流、展示宣传的空间。这些富含诗意的岭南园林空间可以同时满足现代生产活动中打卡、消毒、安全管控等厂房管理需求,让员工在穿过入口空间时感受到关心和欢迎的仪式感,让访客感受到企业的文化价值和创新精神。
⭐【备注】:在此仅作为交流,如涉及作品内容、版权和其它问题,请及时与我们联系,我们将在第一时间删除,感恩您的理解包容。
#建筑设计色彩 #建筑案例 #建筑分析图 #摄影薯的灵感库 #建筑人干点啥不好非要去画图 #公共建筑 #空间设计 #摄影老师请回答 #新型工业厂房
?【案例】利和兴移动智能终端自动化设备生产及研发中心项目(一期)(设计单位:华南理工大学建筑设计研究院 )
⭐【设计理念】
? 基地位于广东省江门市江海区高新区,西临南山路,南临龙湖路,北侧与西侧均为工业用地,南侧为江门幼儿师范高等专科学校,东侧为居住区,东北角为龙溪湖公园。规划用地面积44649㎡,建设用地面积33378㎡,其中一期厂房建筑总面积约45017㎡,高 30.3m,地上6层,地下局部1层。
? 项目旨在打破行列式厂房的传统布局,从工人群体的心理需求出发,结合工艺要求,通过庭院、屋顶花园、空中花园营造高效、健康、舒适的生产环境,并运用灰空间、冷巷、 遮阳构件、立体绿化等多种被动式节能措施,回应岭南地域气候特征,形成多样建筑空间,彰显人文生态价值,是对岭南地域特色新工业建筑模式的一种积极尝试。
? 项目从人文关怀的企业管理理念出发,在入口处塑造了“园林-门廊-庭院-玻璃门厅”的空间序列,利用四种不同的空间形式,实现入口空间的起承转合,为企业和工人提供了亲近自然、集中交流、展示宣传的空间。这些富含诗意的岭南园林空间可以同时满足现代生产活动中打卡、消毒、安全管控等厂房管理需求,让员工在穿过入口空间时感受到关心和欢迎的仪式感,让访客感受到企业的文化价值和创新精神。
⭐【备注】:在此仅作为交流,如涉及作品内容、版权和其它问题,请及时与我们联系,我们将在第一时间删除,感恩您的理解包容。
#建筑设计色彩 #建筑案例 #建筑分析图 #摄影薯的灵感库 #建筑人干点啥不好非要去画图 #公共建筑 #空间设计 #摄影老师请回答 #新型工业厂房


