
今天让我们接着学习建筑识图必备基础知识吧
定位轴线
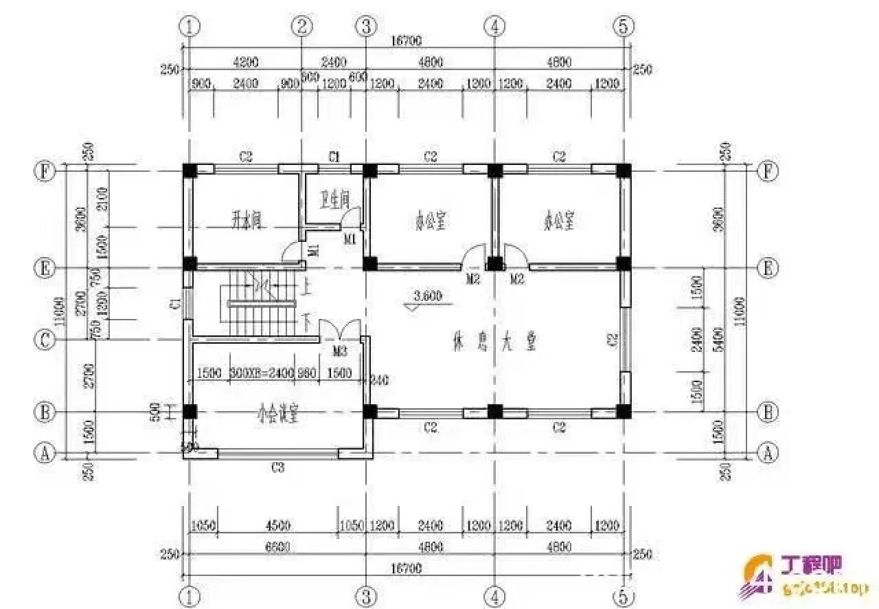
一、为施工定位放线及查阅图纸,在绘制建筑施工图时将墙、柱等承重构件的中心线作为定位轴线。
二、定位轴线用细点画线绘制并编号,编号应注写在轴线端部的圆内。
1.圆用细实线绘制,直径为8~10mm
2.圆的圆心应在定位轴线的延长线上或延长线的折线上。
三、平面图上定位轴线的编号,应标注在图样的下方与左侧。
1.横向编号应用阿拉伯数字,从左至右顺序编写;
2.竖向编号应用大写阿丁字母,从下至上顺序编写
3.为了避免与数字混淆,竖向编号不得用I、O、Z。
四、附加轴线的编号以分数形式表示。
1.两根轴线之间的附加轴线,以分母表示前一根轴线的编号,分子表示附近轴线的编号
2.1号或A号轴线之前的附加轴线,分母以01或0A表示。
尺寸标注
尺寸标注是图纸中的重要内容,必须准确、详尽、清晰,以确定建筑物及其各部分的大小。
尺寸的组成:
尺寸是由尺寸界限、尺寸线、尺寸起止符号、尺寸数字4部分组成
(一)尺寸界线
尺寸界线用细实线绘制,与被注长度方向垂直,一端距图样轮廓线不小于2mm,另一端超出尺寸线2~3mm,图样轮廓线也可用作尺寸界线。
(二)尺寸线
尺寸线用细实线绘制,与被注长度方向平行,图样本身任何图线均不得用作尺寸线。
(三)尺寸起止符号
尺寸起止符号用与尺寸界线成顺时针45度的中粗斜短线绘制,长度为2~3mm。
半径,直径、角度、弧长的尺寸起止符号用箭头表示
(四)尺寸数字
图样上的尺寸,应以尺寸数字为准,不得从图上直接量取
.尺寸数字注写的位置,应注写在靠近尺寸线的上方中部。若注写位置不够,最外边的尺寸数字可注写在尺寸界线外侧,中间相领的尺寸数字可错开注写。
#工程造价小白 #广联达建模 #建筑基础识图
定位轴线
一、为施工定位放线及查阅图纸,在绘制建筑施工图时将墙、柱等承重构件的中心线作为定位轴线。
二、定位轴线用细点画线绘制并编号,编号应注写在轴线端部的圆内。
1.圆用细实线绘制,直径为8~10mm
2.圆的圆心应在定位轴线的延长线上或延长线的折线上。
三、平面图上定位轴线的编号,应标注在图样的下方与左侧。
1.横向编号应用阿拉伯数字,从左至右顺序编写;
2.竖向编号应用大写阿丁字母,从下至上顺序编写
3.为了避免与数字混淆,竖向编号不得用I、O、Z。
四、附加轴线的编号以分数形式表示。
1.两根轴线之间的附加轴线,以分母表示前一根轴线的编号,分子表示附近轴线的编号
2.1号或A号轴线之前的附加轴线,分母以01或0A表示。
尺寸标注
尺寸标注是图纸中的重要内容,必须准确、详尽、清晰,以确定建筑物及其各部分的大小。
尺寸的组成:
尺寸是由尺寸界限、尺寸线、尺寸起止符号、尺寸数字4部分组成
(一)尺寸界线
尺寸界线用细实线绘制,与被注长度方向垂直,一端距图样轮廓线不小于2mm,另一端超出尺寸线2~3mm,图样轮廓线也可用作尺寸界线。
(二)尺寸线
尺寸线用细实线绘制,与被注长度方向平行,图样本身任何图线均不得用作尺寸线。
(三)尺寸起止符号
尺寸起止符号用与尺寸界线成顺时针45度的中粗斜短线绘制,长度为2~3mm。
半径,直径、角度、弧长的尺寸起止符号用箭头表示
(四)尺寸数字
图样上的尺寸,应以尺寸数字为准,不得从图上直接量取
.尺寸数字注写的位置,应注写在靠近尺寸线的上方中部。若注写位置不够,最外边的尺寸数字可注写在尺寸界线外侧,中间相领的尺寸数字可错开注写。
#工程造价小白 #广联达建模 #建筑基础识图


