









项目简介
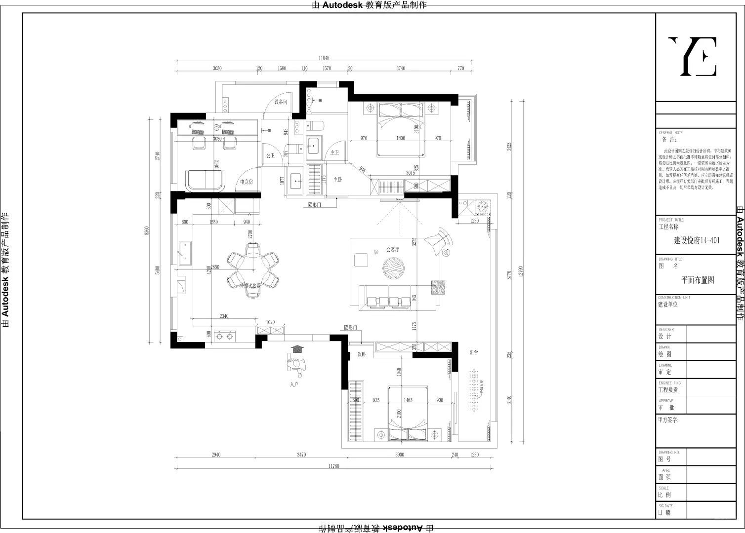
项目地址:建设悦府 项目面积:140平方
项目风格:现代风 设计师:一行空间
我们包含的施工项目如下:
1.砌墙部分:以设计方案为准包含全房的新建墙体,卫生间红砖包管,砌壁龛,墙垛修补。
2.水电部分:全房水电全改 ,强电走顶、弱电走地、大弧弯工艺,水电材料:电线千岛湖永通 水管日丰瓷芯抗菌管(六分管)
3.下水管包管:所有的下水管(含顶部的横管)一层阻尼片一层隔音棉包管。
4.木工部分:全房石膏板双眼皮吊顶(边吊),厨房石膏板吊顶,木工材料:石膏板可耐福顶诺,欧松板北新木业木先锋芒,龙骨黄金轻钢龙骨
5.防水部分:立邦涂料+高分子防水 俩卫一厨一阳台一设备平台
6.泥工贴砖部分:全房地面瓷砖铺贴,卫生间厨房设备平台墙面瓷砖铺贴(均不限瓷砖规格)
泥工材料:32.5标号水泥,粗沙,立邦胶泥,立邦AB胶。
7.油漆部分:腻子一底俩面 全房墙面挂网,顺平工艺,油漆一底俩面 墙面面漆滚涂
油漆材料:立邦腻子 立邦全能抗碱底漆 竹炭净味抗菌五合一。
8.全房开荒保洁,额外赠送一次精保洁
#义乌装修设计 #装修日记 #义乌半包 #义乌靠谱装修 #用心做装修 #义乌装修 #设计装修#建设悦府 #装修设计 #义乌半包装修
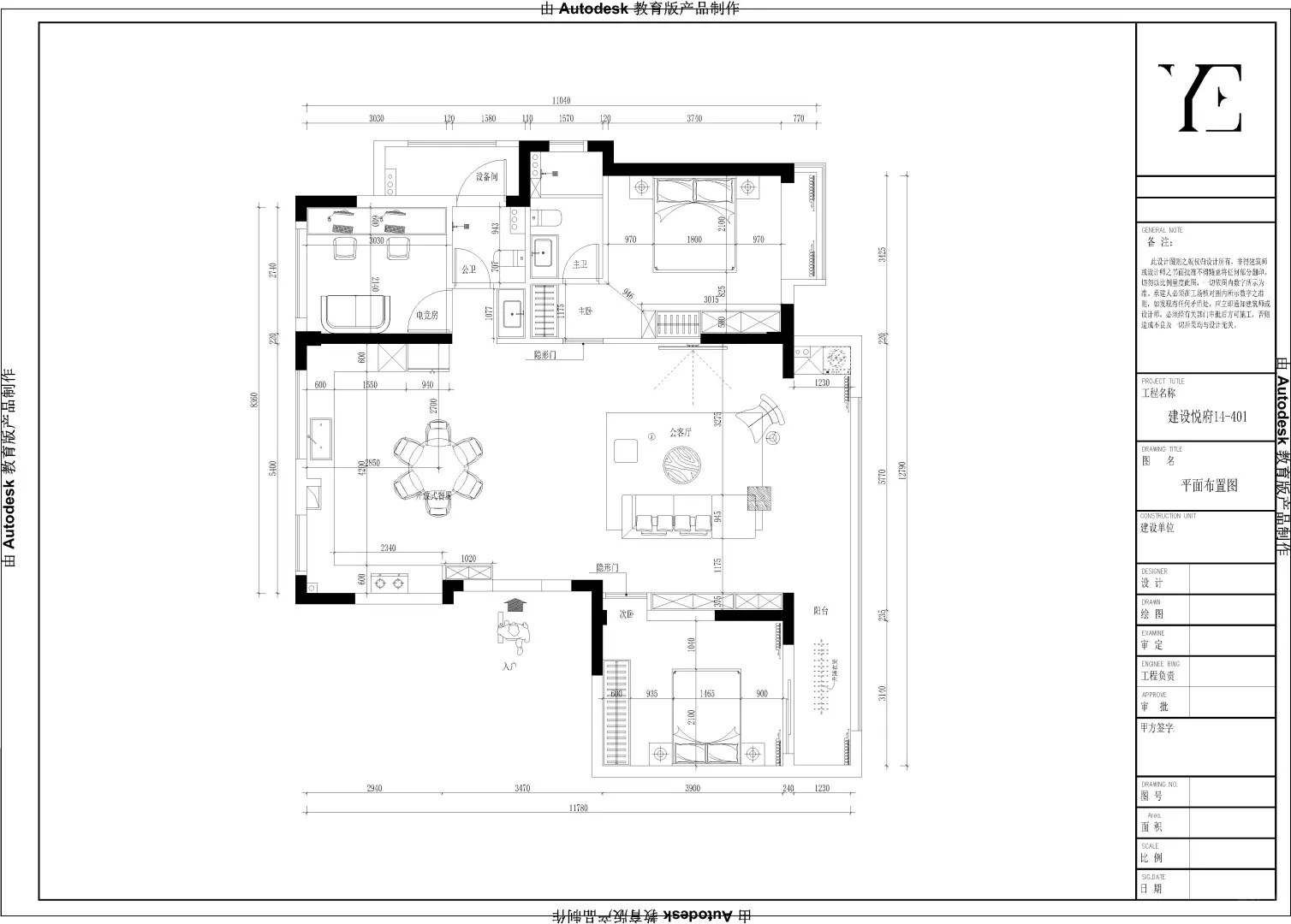
项目地址:建设悦府 项目面积:140平方
项目风格:现代风 设计师:一行空间
我们包含的施工项目如下:
1.砌墙部分:以设计方案为准包含全房的新建墙体,卫生间红砖包管,砌壁龛,墙垛修补。
2.水电部分:全房水电全改 ,强电走顶、弱电走地、大弧弯工艺,水电材料:电线千岛湖永通 水管日丰瓷芯抗菌管(六分管)
3.下水管包管:所有的下水管(含顶部的横管)一层阻尼片一层隔音棉包管。
4.木工部分:全房石膏板双眼皮吊顶(边吊),厨房石膏板吊顶,木工材料:石膏板可耐福顶诺,欧松板北新木业木先锋芒,龙骨黄金轻钢龙骨
5.防水部分:立邦涂料+高分子防水 俩卫一厨一阳台一设备平台
6.泥工贴砖部分:全房地面瓷砖铺贴,卫生间厨房设备平台墙面瓷砖铺贴(均不限瓷砖规格)
泥工材料:32.5标号水泥,粗沙,立邦胶泥,立邦AB胶。
7.油漆部分:腻子一底俩面 全房墙面挂网,顺平工艺,油漆一底俩面 墙面面漆滚涂
油漆材料:立邦腻子 立邦全能抗碱底漆 竹炭净味抗菌五合一。
8.全房开荒保洁,额外赠送一次精保洁
#义乌装修设计 #装修日记 #义乌半包 #义乌靠谱装修 #用心做装修 #义乌装修 #设计装修#建设悦府 #装修设计 #义乌半包装修


