







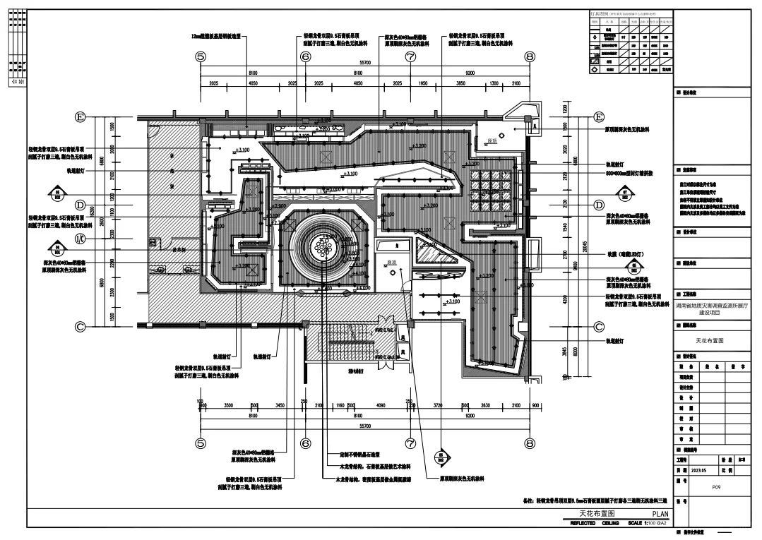
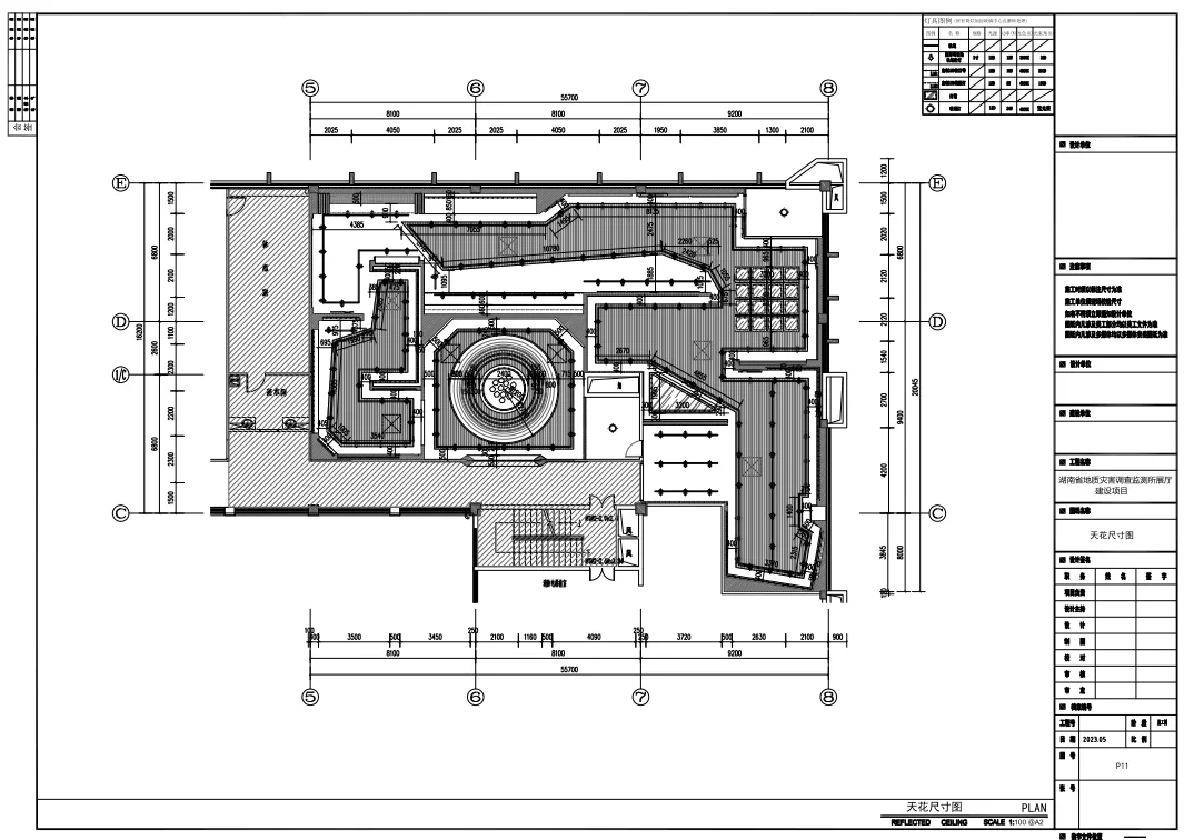
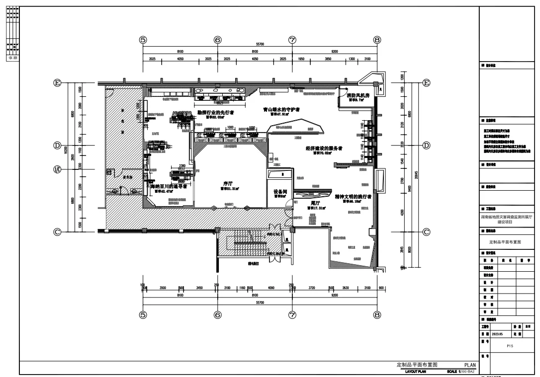
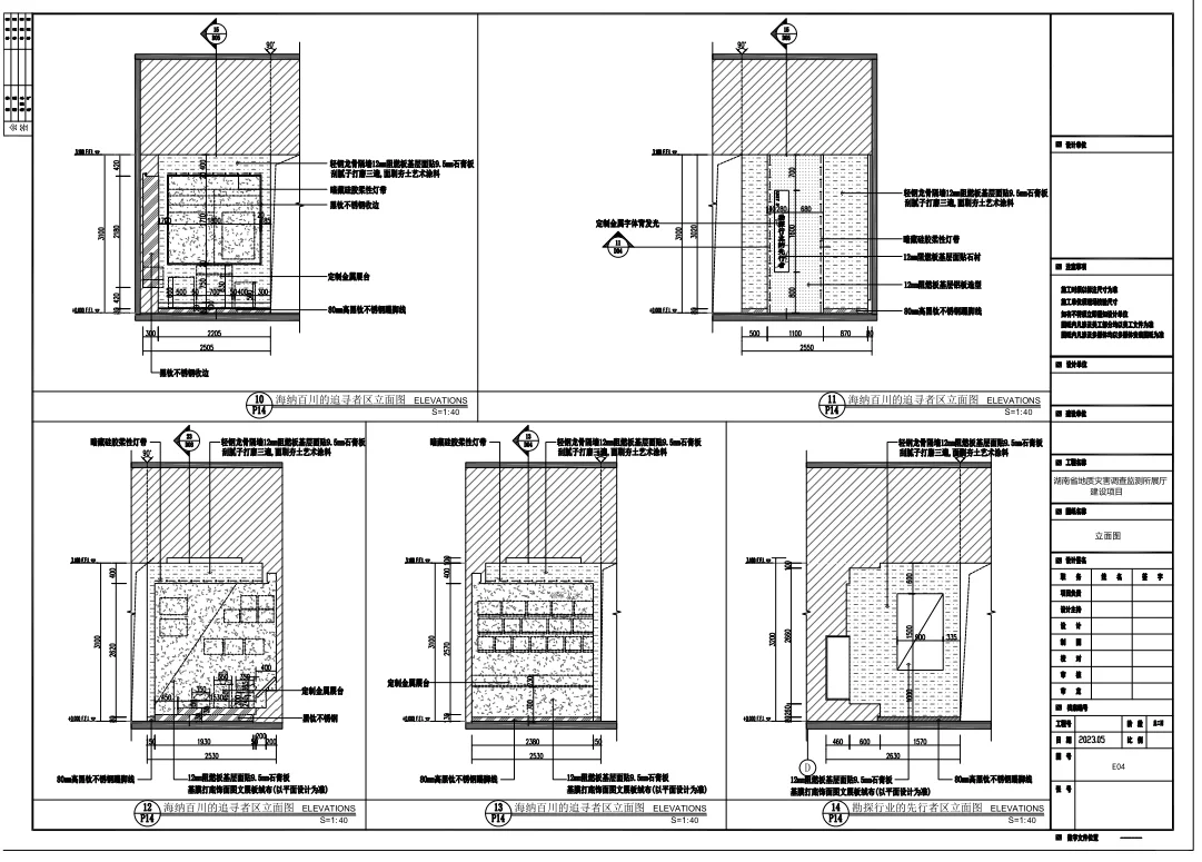
cad施工图好不好,就看这5个关键点?
作为多年施工图深化设计师+多年精装技术负责人,?如何判断怎样的CAD施工图纸是专业的,能真正解决问题呢?我认为专业的cad施工图纸不只是“图纸”,更是项目团队共同的语言和准则。
从专业角度,一套能打的cad施工图纸,核心是五点:
?1. 完整性 ≠ 图纸数量多
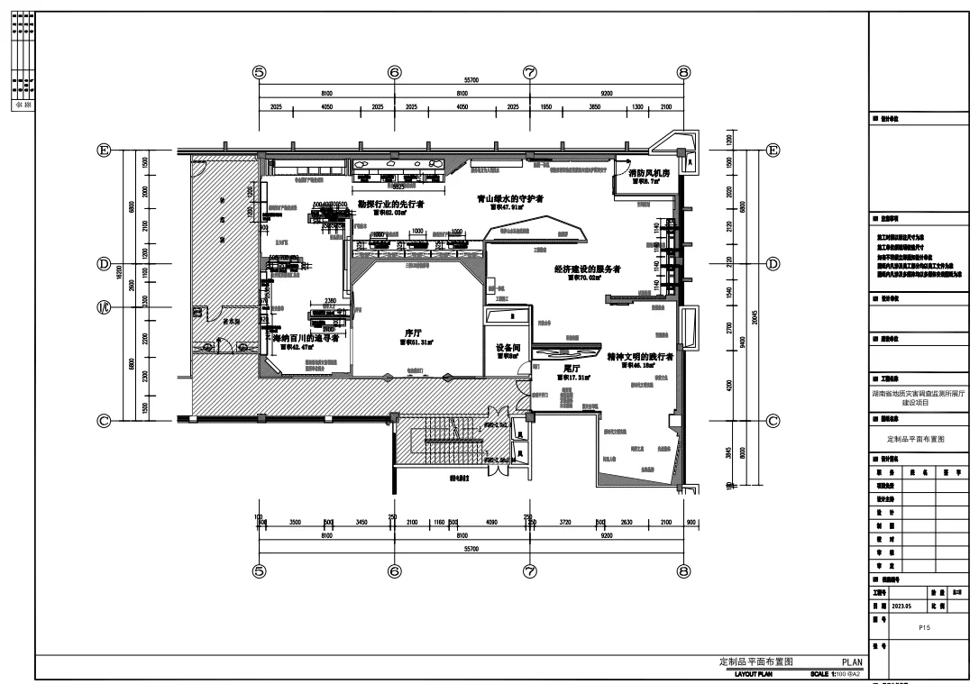
· 专业要求:涵盖结构、暖通、给排水、电气全专业,且图例、说明、索引必须清晰一致。
· 解决什么问题:杜绝因“缺图、漏图”导致的现场停工、等待和误工,保障工期。
?2. 准确性
· 专业要求:所有尺寸、标高、规格必须精准,且各避免专业图纸信息冲突。
· 解决什么问题:避免施工到一半发现“装不上”或“打架”,从根本上减少返工和浪费。
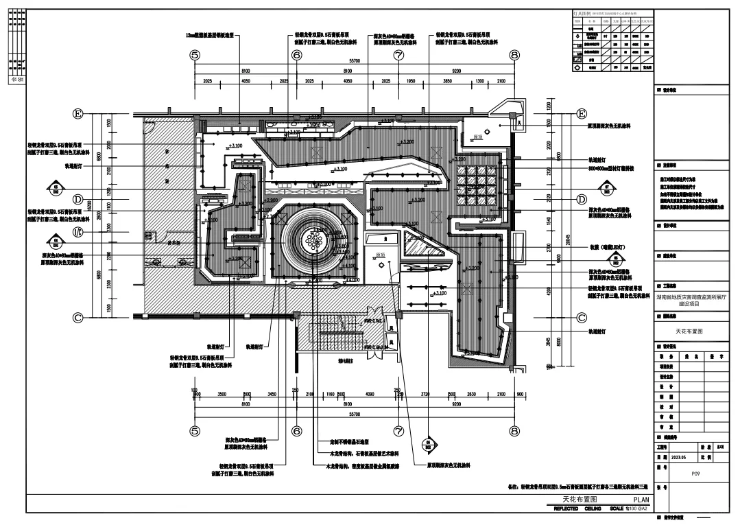
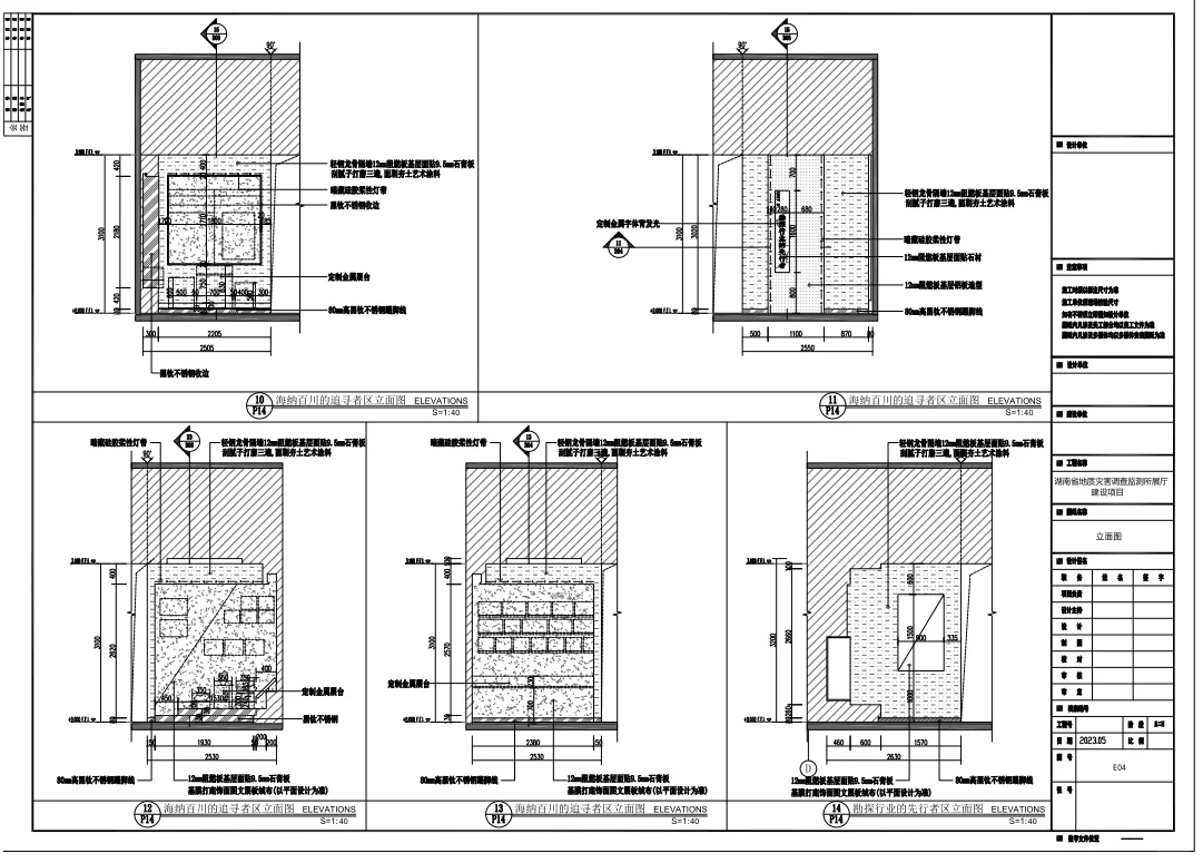
?3. 深度√完成度
· 专业要求:关键节点(如收口、交接)必须提供 1:1 或 1:5 大样图,明确工艺层次和关系。
· 解决什么问题:确保设计效果完美落地,避免依赖工人“凭经验发挥”,实现“所画即所得”。
?4. 可实施性高于一切
· 专业要求:cad深化图纸标注和做法必须符合施工逻辑和工艺水平,让工人能看懂、会操作。
· 解决什么问题:大幅减少现场技术答疑,提升施工效率,保证工程质量和安全。
?5.不要为了深化而深化
一句话总结:
好的
好的CAD施工图深化图纸,是让甲方能控制成本与效果,让施工方能高效作业的共同基准。
——
专业施工图深化设计代画 | 专注解决问题难点
? 全国业务可接,欢迎来图沟通,免费提供专业建议与报价。
#浪漫生活的记录者 #cad代画 #cad施工图深化 #餐厅施工图设计 #施工图深化团队 #展厅施工图深化 #设计与施工 #施工图节点大样 #展厅设计#cad制图
作为多年施工图深化设计师+多年精装技术负责人,?如何判断怎样的CAD施工图纸是专业的,能真正解决问题呢?我认为专业的cad施工图纸不只是“图纸”,更是项目团队共同的语言和准则。
从专业角度,一套能打的cad施工图纸,核心是五点:
?1. 完整性 ≠ 图纸数量多
· 专业要求:涵盖结构、暖通、给排水、电气全专业,且图例、说明、索引必须清晰一致。
· 解决什么问题:杜绝因“缺图、漏图”导致的现场停工、等待和误工,保障工期。
?2. 准确性
· 专业要求:所有尺寸、标高、规格必须精准,且各避免专业图纸信息冲突。
· 解决什么问题:避免施工到一半发现“装不上”或“打架”,从根本上减少返工和浪费。
?3. 深度√完成度
· 专业要求:关键节点(如收口、交接)必须提供 1:1 或 1:5 大样图,明确工艺层次和关系。
· 解决什么问题:确保设计效果完美落地,避免依赖工人“凭经验发挥”,实现“所画即所得”。
?4. 可实施性高于一切
· 专业要求:cad深化图纸标注和做法必须符合施工逻辑和工艺水平,让工人能看懂、会操作。
· 解决什么问题:大幅减少现场技术答疑,提升施工效率,保证工程质量和安全。
?5.不要为了深化而深化
一句话总结:
好的
好的CAD施工图深化图纸,是让甲方能控制成本与效果,让施工方能高效作业的共同基准。
——
专业施工图深化设计代画 | 专注解决问题难点
? 全国业务可接,欢迎来图沟通,免费提供专业建议与报价。
#浪漫生活的记录者 #cad代画 #cad施工图深化 #餐厅施工图设计 #施工图深化团队 #展厅施工图深化 #设计与施工 #施工图节点大样 #展厅设计#cad制图


