





家人们谁懂啊!跑了3家封窗店,报价直接给我整懵了!
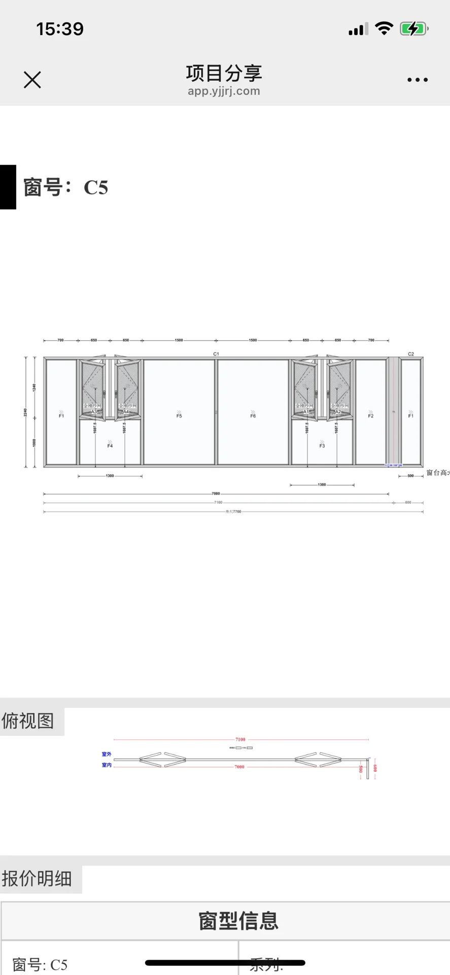
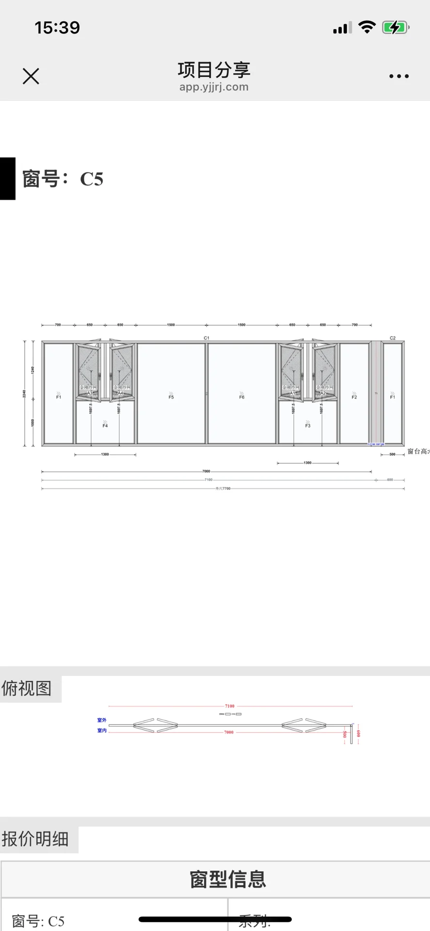
同个阳台晾出38.9、36.74、35.8三个尺寸,2.0mm型材+中空玻璃:信义超白波、腔体4腔体5、加厚3个大玻璃,开扇10个,防盗格10,好博五金、沃特五金
• 第一家报2.1w,面积38.9、5腔体、2.0加厚3大玻璃
• 第二家报1.95w,面积36.74腔体4、2.0加厚3大玻璃
• 第三家报1.9w,面积35.8腔体4、1.8型材加厚1玻璃
现在完全不敢定!怕贵了当冤大头,又怕便宜的踩坑(毕竟五金、玻璃水太深)求装过的姐妹报个实价!
一你家多大阳台?
(选的什么配置(型材/玻璃/五金)?
子最后花了多少钱?
急需参考!别让我在装修预算里再踩坑了!人
#封窗价格 #装修预算 #台封窗 #装修小白求助 #窗帘报价系统
同个阳台晾出38.9、36.74、35.8三个尺寸,2.0mm型材+中空玻璃:信义超白波、腔体4腔体5、加厚3个大玻璃,开扇10个,防盗格10,好博五金、沃特五金
• 第一家报2.1w,面积38.9、5腔体、2.0加厚3大玻璃
• 第二家报1.95w,面积36.74腔体4、2.0加厚3大玻璃
• 第三家报1.9w,面积35.8腔体4、1.8型材加厚1玻璃
现在完全不敢定!怕贵了当冤大头,又怕便宜的踩坑(毕竟五金、玻璃水太深)求装过的姐妹报个实价!
一你家多大阳台?
(选的什么配置(型材/玻璃/五金)?
子最后花了多少钱?
急需参考!别让我在装修预算里再踩坑了!人
#封窗价格 #装修预算 #台封窗 #装修小白求助 #窗帘报价系统


