










汽车维修车间全维度设计方案:安全·高效·环保的作业空间构建汽车维修车间的设计,是功能逻辑与场景需求的精准耦合。从车辆进出的动线规划到设备布局的人机工学,从尾气处理的环保标准到电路系统的安全冗余,每一处细节都决定着维修效率与作业体验。本方案以“安全为基、效率为核、环保为界”,构建适配现代汽车维修场景的全维度设计体系。
一、空间规划:让每一寸面积服务于维修流程
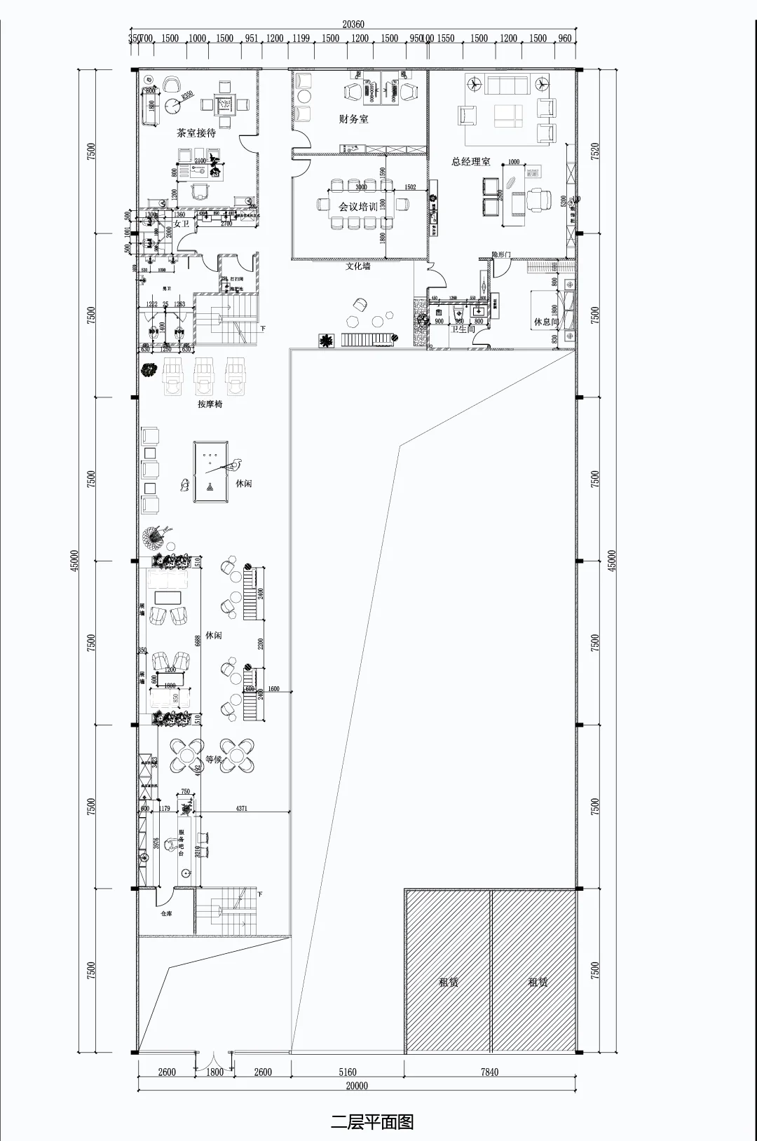
1. 功能分区的科学切割
• 核心作业区:按维修类型划分为机修工位(4m×7m/工位,地面承重≥30kN/m²)、钣金校正区(配备5t行车轨道,净空高度≥5m)、喷漆房(独立封闭空间,与其他区域防火间距≥10m,采用防爆墙体+泄爆口设计),各区域以实体隔墙分隔,避免交叉污染。
• 辅助功能区:配件库(设置3层货架,预留叉车通道≥2.5m)、工具存放间(配备智能工具柜与通风系统)、客户休息区
2. 动线设计的无交叉原则
• 车辆动线:入口→预检区→维修工位→洗车区→出口,形成单向循环,主通道宽度≥4m,转弯半径≥6m(适配大型车辆)。
• 人员动线:设置独立步行通道(宽度≥1.2m),与车辆动线平行且物理隔离,通过斑马线与警示标识强化分界。
• 物料动线:配件库紧邻机修区
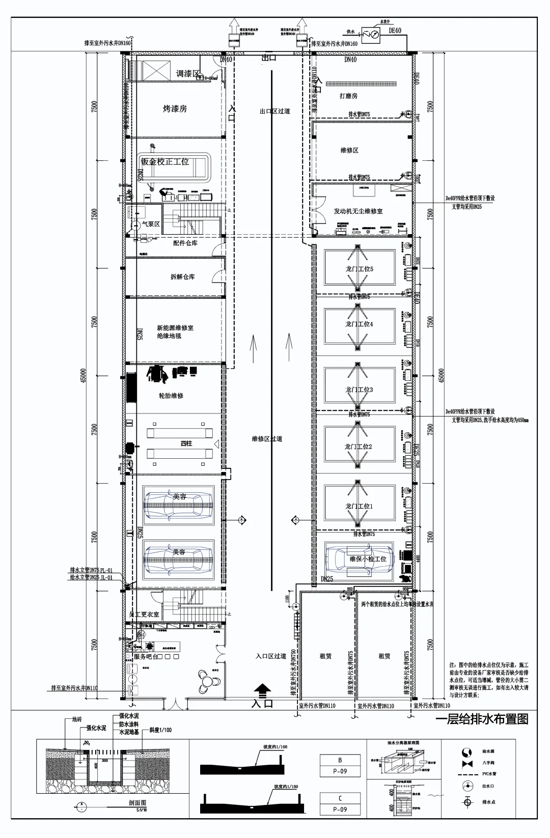
1. 维修设备的布局逻辑
• 举升机:每2个机修工位配置1台双柱举升机(承重≥3.5t),周边预留≥0.8m操作空间,顶部设置防坠落预警装置。
• 检测线:独立区域布置四轮定位仪(地面平整度误差≤2mm)、底盘测功机(与地面齐平安装,边缘做防滑处理),检测区照度≥500lux。
• 喷漆设备:喷漆房内设置防爆照明(IP67防护等级)、送风排风系统(换气次数≥25次/h),配套废水收集槽(坡度1.5%,防腐材质)。
2. 辅助设施的人性化设计
• 工具悬挂系统:工位上方安装可移动滑轨,配备风炮、扳手等常用工具的悬挂支架,取用高度控制在1.5-1.8m。
汽车维修车间的设计,从来不是设备与空间的简单堆砌,而是对维修流程、人员安全、环保要求的深度解构与重组。
#汽车维修 #汽车厂房维修 #汽车维修店设计 #汽车维修店面设计 #汽车维修店面 #钢结构汽车维修设计 #汽车维修店 #汽车维修设计改造
一、空间规划:让每一寸面积服务于维修流程
1. 功能分区的科学切割
• 核心作业区:按维修类型划分为机修工位(4m×7m/工位,地面承重≥30kN/m²)、钣金校正区(配备5t行车轨道,净空高度≥5m)、喷漆房(独立封闭空间,与其他区域防火间距≥10m,采用防爆墙体+泄爆口设计),各区域以实体隔墙分隔,避免交叉污染。
• 辅助功能区:配件库(设置3层货架,预留叉车通道≥2.5m)、工具存放间(配备智能工具柜与通风系统)、客户休息区
2. 动线设计的无交叉原则
• 车辆动线:入口→预检区→维修工位→洗车区→出口,形成单向循环,主通道宽度≥4m,转弯半径≥6m(适配大型车辆)。
• 人员动线:设置独立步行通道(宽度≥1.2m),与车辆动线平行且物理隔离,通过斑马线与警示标识强化分界。
• 物料动线:配件库紧邻机修区
1. 维修设备的布局逻辑
• 举升机:每2个机修工位配置1台双柱举升机(承重≥3.5t),周边预留≥0.8m操作空间,顶部设置防坠落预警装置。
• 检测线:独立区域布置四轮定位仪(地面平整度误差≤2mm)、底盘测功机(与地面齐平安装,边缘做防滑处理),检测区照度≥500lux。
• 喷漆设备:喷漆房内设置防爆照明(IP67防护等级)、送风排风系统(换气次数≥25次/h),配套废水收集槽(坡度1.5%,防腐材质)。
2. 辅助设施的人性化设计
• 工具悬挂系统:工位上方安装可移动滑轨,配备风炮、扳手等常用工具的悬挂支架,取用高度控制在1.5-1.8m。
汽车维修车间的设计,从来不是设备与空间的简单堆砌,而是对维修流程、人员安全、环保要求的深度解构与重组。
#汽车维修 #汽车厂房维修 #汽车维修店设计 #汽车维修店面设计 #汽车维修店面 #钢结构汽车维修设计 #汽车维修店 #汽车维修设计改造


