




地产人自己设计的玄关屏风玻璃
之前被很多小伙伴问我一些安装&材质问题
我家的实际层高约2.8m,风格是现代极简风
玄关屏风采用极简风的长虹玻璃
设计跟安装细节指南一篇讲完?
1️⃣ 长虹玻璃 vs 水波纹,怎么选?
长虹玻璃:竖条纹理,适合极简、现代风,有“拉伸层高”的视觉效果。
水波纹:像水滴荡漾,适合法式、复古风,光影效果特别艺术。
简单说,追求简约选长虹,想要情调选水波纹!
2️⃣ 玻璃怎么选?怎么固定?
我家用的是8mm超白玻,一定要强调“超白”,普通玻璃会发绿!这块玻璃大概花了400元。
固定方式是用黑钛不锈钢嵌条做边框,最后打上黑色密封胶收边,这样才能又稳又好看。
3️⃣ 屏风找谁做?
追求效果:交给全屋定制。让他们看效果图,等玻璃到了同日安装,能和玄关柜颜色统一,细节完美,但价格稍高。
追求性价比:找手艺好的木工师傅。固定一样牢固,就是收边细节和色差要看运气。
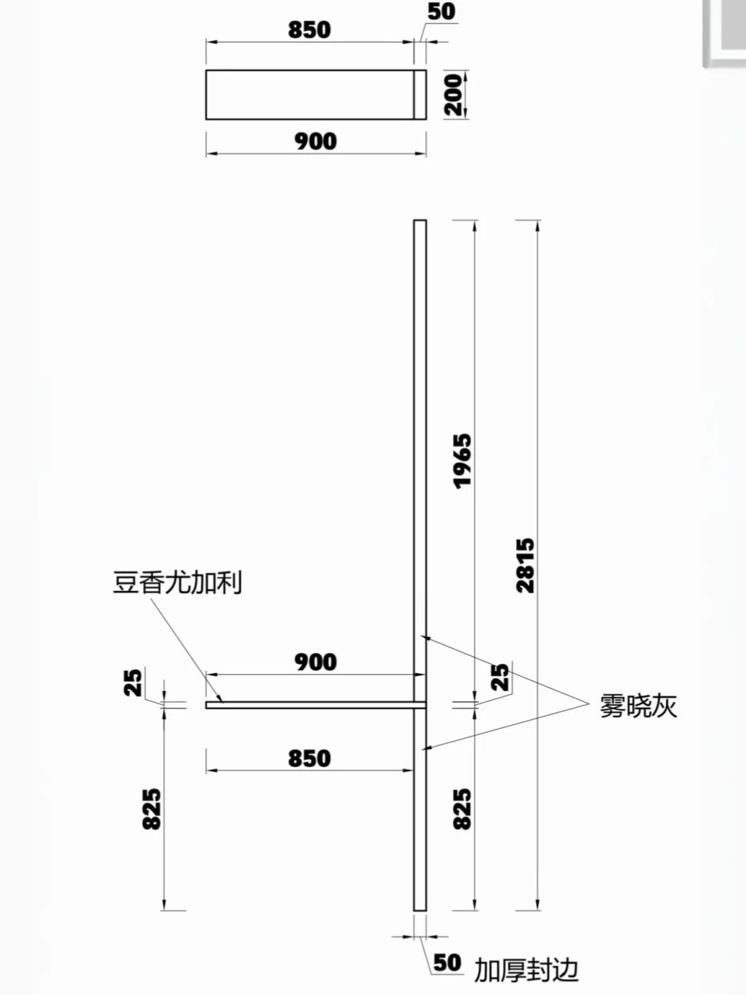
4️⃣ 尺寸图来了!
就知道你们会问!宠粉的我直接放在图里了,需要抄作业的请自取~?
5️⃣ 玻璃能进电梯吗?
这是个关键问题!我家屏风高2815mm,电梯根本进不去,最后是师傅们走楼梯抬上楼的。
大家还有其他问题吗?老规矩,评论区有问必答!?
#我在小红书搞装修 #入户门隔断 #玻璃门 #玄关柜 #屏风隔断 #屏风玻璃 #屏风设计 #屏风 #极简屏风 #适我的家居住提案
之前被很多小伙伴问我一些安装&材质问题
我家的实际层高约2.8m,风格是现代极简风
玄关屏风采用极简风的长虹玻璃
设计跟安装细节指南一篇讲完?
1️⃣ 长虹玻璃 vs 水波纹,怎么选?
长虹玻璃:竖条纹理,适合极简、现代风,有“拉伸层高”的视觉效果。
水波纹:像水滴荡漾,适合法式、复古风,光影效果特别艺术。
简单说,追求简约选长虹,想要情调选水波纹!
2️⃣ 玻璃怎么选?怎么固定?
我家用的是8mm超白玻,一定要强调“超白”,普通玻璃会发绿!这块玻璃大概花了400元。
固定方式是用黑钛不锈钢嵌条做边框,最后打上黑色密封胶收边,这样才能又稳又好看。
3️⃣ 屏风找谁做?
追求效果:交给全屋定制。让他们看效果图,等玻璃到了同日安装,能和玄关柜颜色统一,细节完美,但价格稍高。
追求性价比:找手艺好的木工师傅。固定一样牢固,就是收边细节和色差要看运气。
4️⃣ 尺寸图来了!
就知道你们会问!宠粉的我直接放在图里了,需要抄作业的请自取~?
5️⃣ 玻璃能进电梯吗?
这是个关键问题!我家屏风高2815mm,电梯根本进不去,最后是师傅们走楼梯抬上楼的。
大家还有其他问题吗?老规矩,评论区有问必答!?
#我在小红书搞装修 #入户门隔断 #玻璃门 #玄关柜 #屏风隔断 #屏风玻璃 #屏风设计 #屏风 #极简屏风 #适我的家居住提案


