推广 热搜: 采购方式  甲带  滤芯  气动隔膜泵  带式称重给煤机  减速机型号  减速机  链式给煤机  履带  无级变速机 

光华东六路(光华南一路-光华南二路)

   日期:2025-10-30 18:09:54     来源:网络整理    作者:本站编辑    评论:0    
光华东六路(光华南一路-光华南二路)

光华东六路(光华南一路-光华南二路)

光华东六路(光华南一路-光华南二路)

光华东六路(光华南一路-光华南二路)

光华东六路(光华南一路-光华南二路)

光华东六路(光华南一路-光华南二路)

光华东六路(光华南一路-光华南二路)

光华东六路(光华南一路-光华南二路)

光华东六路(光华南一路-光华南二路)

光华东六路(光华南一路-光华南二路)

光华东六路(光华南一路-光华南二路)

光华东六路(光华南一路-光华南二路)

光华东六路(光华南一路-光华南二路)

光华东六路(光华南一路-光华南二路)

光华东六路(光华南一路-光华南二路)

光华东六路(光华南一路-光华南二路)

光华东六路(光华南一路-光华南二路)

光华东六路(光华南一路-光华南二路)

光华东六路(光华南一路-光华南二路)
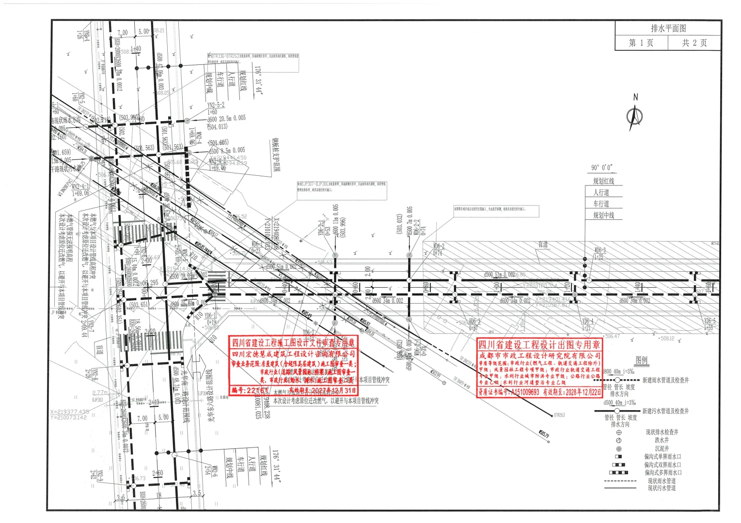
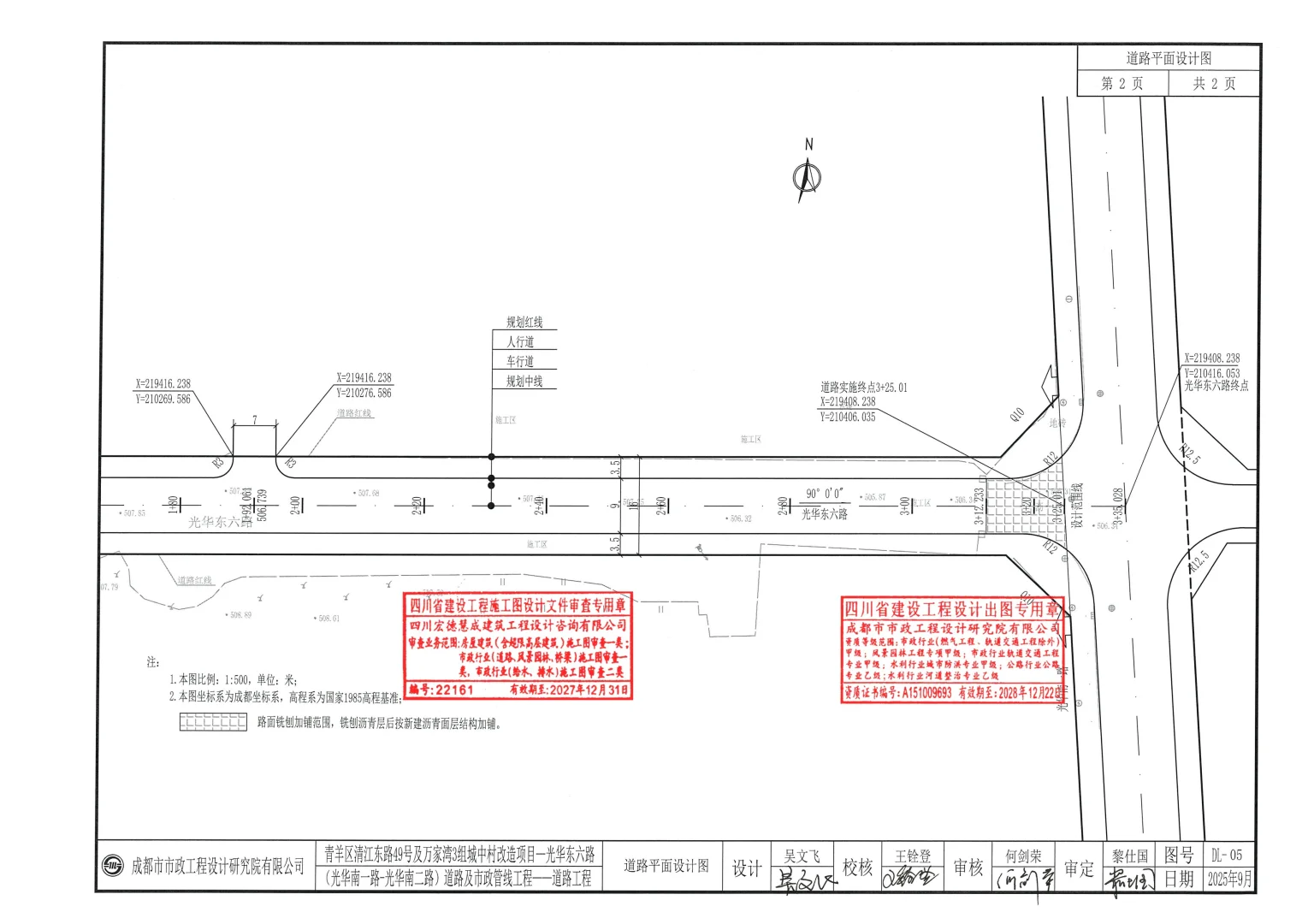
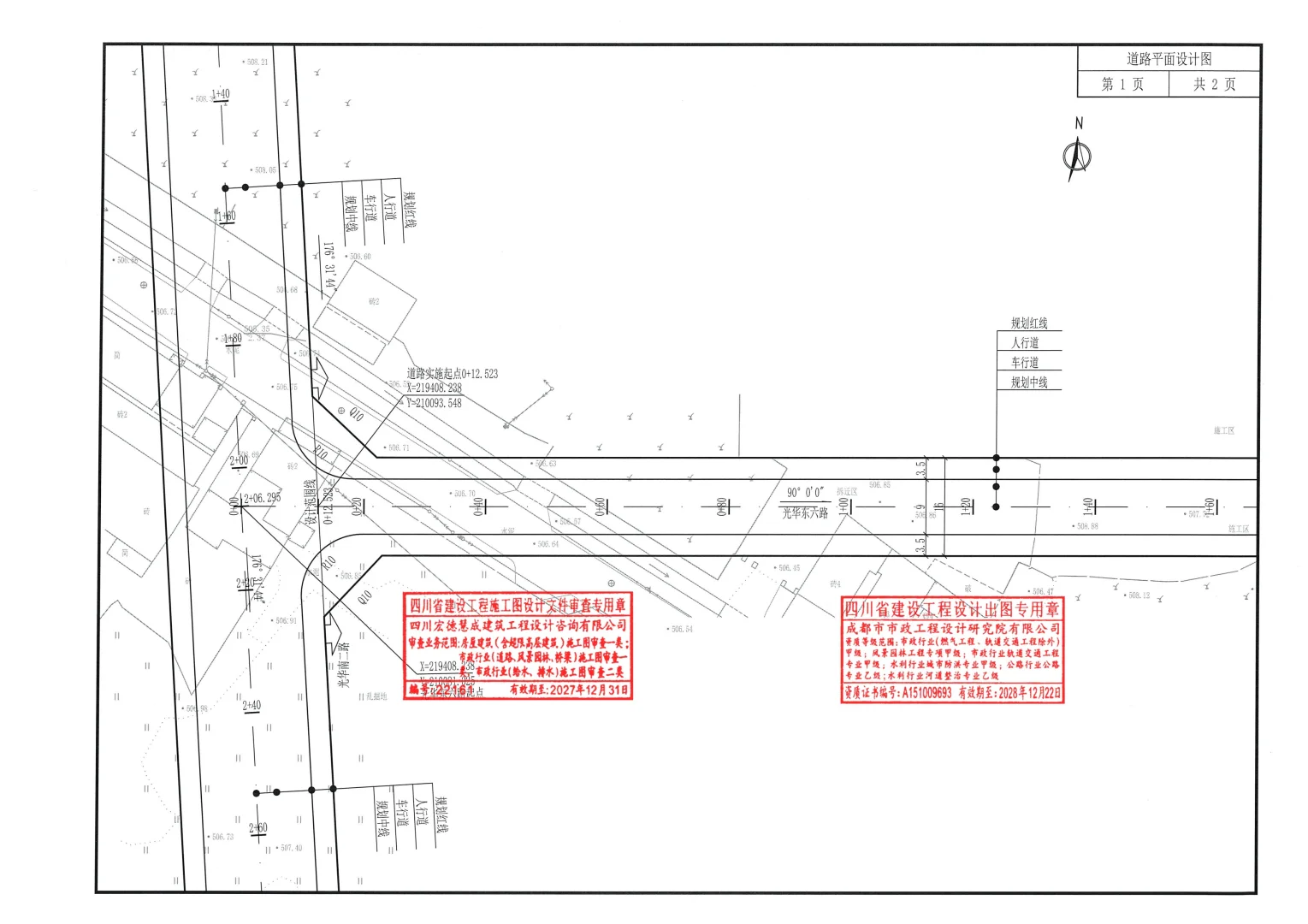
位于:成都市青羊区蔡桥街道万家湾社区,西起待建的光华南二路,东至光华南一路。
项目:青羊区光华东六路规划红线宽度16米,道路长度约335.028米(K0+000~K0+335.028)实施长度为292.49米(K0+23.01~K0+315.50)。
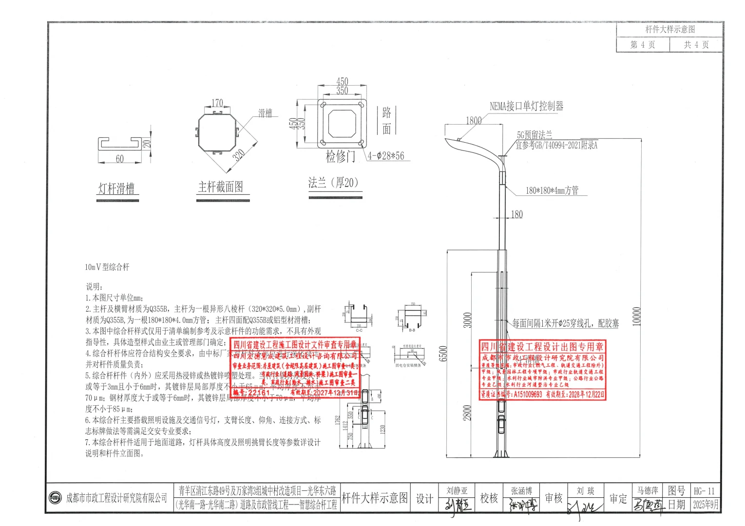
主要建设内容包括道路工程、给排水工程、照明工程、电力工程、交通工程、涵洞工程、桥梁修复工程、绿化景观工程及附属工程等。
[2025年9月30日开始施工招标]
工期:2025年11月-2026年10月
#万家湾 #培风 #悦湖
 
打赏
 
更多>同类资讯
0相关评论

推荐图文
推荐资讯
点击排行
网站首页  |  关于我们  |  联系方式  |  使用协议  |  版权隐私  |  网站地图  |  排名推广  |  广告服务  |  积分换礼  |  网站留言  |  RSS订阅  |  违规举报  |  皖ICP备20008326号-18
Powered By DESTOON