






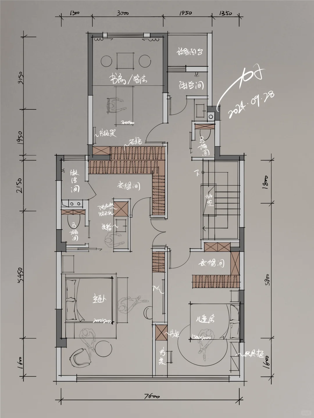
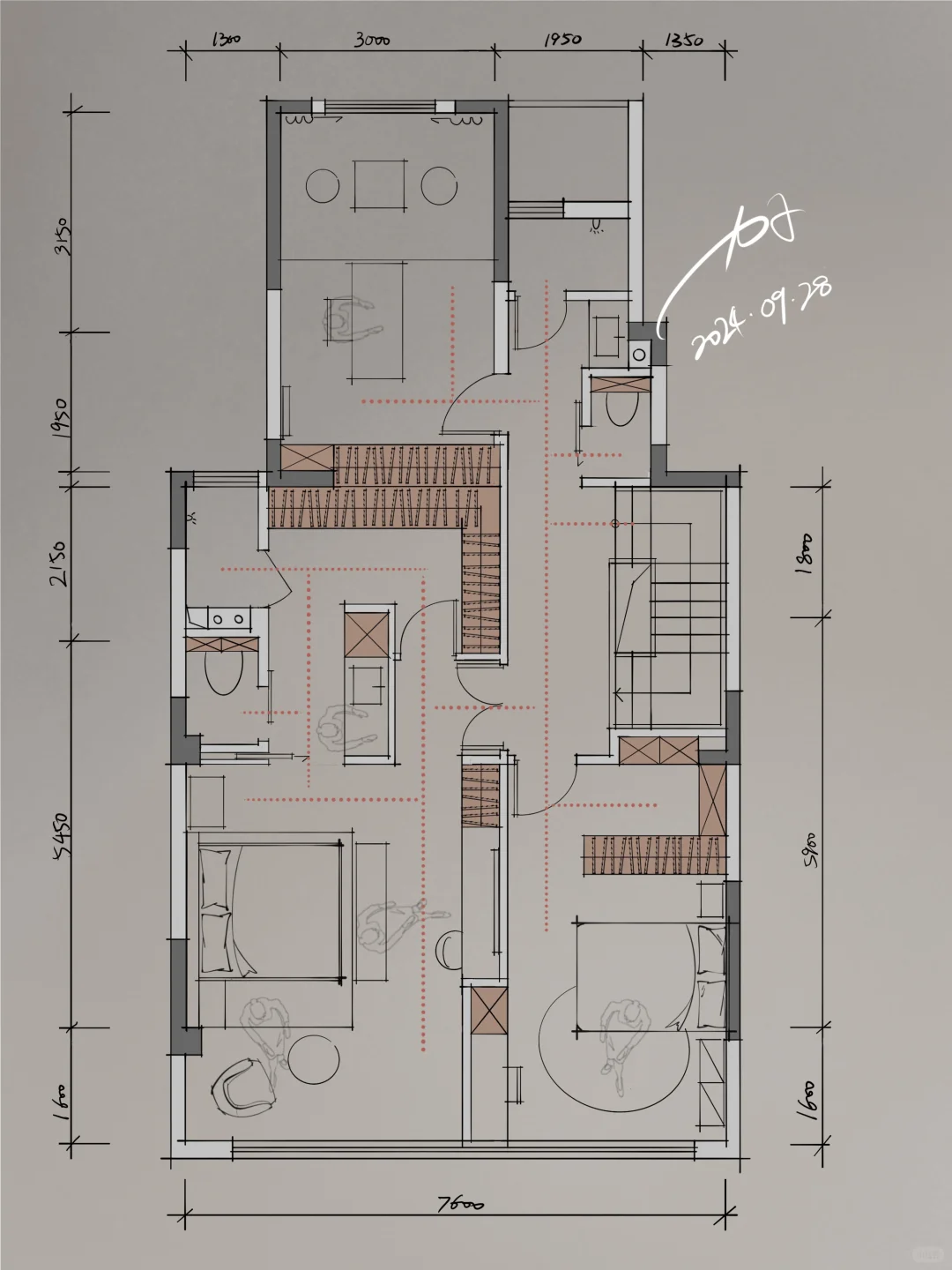
●面积:195㎡
●常住人口:夫妻+女孩+长辈
●设计亮点:
①楼梯改从靠客厅一侧上楼,不仅让楼梯和玄关更宽敞,同时还能保留原有储藏室,将楼梯下方空间充分利用;
②超大#LDK 客厨餐一体化,让家庭成员可以在不同功能区之间互动,中厨→西厨→餐厅不同功能区之间使用动线流畅;
③楼梯改从靠客厅一侧上楼,同时可以放大客厅空间,楼梯踏步延伸的位置既可以放置主人兴趣爱好相关装饰装置,台阶放置坐垫亦可以当卡座使用,扩充客厅座位,在家办超大派对也绰绰有余;
④楼梯位置调整同时可以增大卧室的空间,上楼往右侧为书房/客房+三分离客卫,往左侧为主卧和儿童房,动线简单空间充分利用;
⑤超大主卧套间,三分离卫生间+洗衣机+衣帽间一体,以洗手台为中心的洄游动线,方便到各个功能区,同时还可以睡眠区与功能区隔开,夜间使用空调更节能;
⑥充分利用主卧与儿童房之间的\"S\"墙,一半给到主卧做电视柜和化妆桌,一半给到儿童房嵌入书桌+书架,让主卧与儿童房活动空间更大;
⑦书房与客房结合,与主卧衣帽间之间用两个衣柜隔开,不仅隔音效果更加,还节省了一面墙的面积;
⑧书房靠窗做地台,平时作为书房品茶/洽谈的空间,客人借宿秒变1.5m双人床;
@室内设计|力子
#800库 #户型优化 #三分离卫生间 #别墅设计 #上海独立设计师 #楼梯设计 #衣帽间 #洗衣房 #家居环境优化
●常住人口:夫妻+女孩+长辈
●设计亮点:
①楼梯改从靠客厅一侧上楼,不仅让楼梯和玄关更宽敞,同时还能保留原有储藏室,将楼梯下方空间充分利用;
②超大#LDK 客厨餐一体化,让家庭成员可以在不同功能区之间互动,中厨→西厨→餐厅不同功能区之间使用动线流畅;
③楼梯改从靠客厅一侧上楼,同时可以放大客厅空间,楼梯踏步延伸的位置既可以放置主人兴趣爱好相关装饰装置,台阶放置坐垫亦可以当卡座使用,扩充客厅座位,在家办超大派对也绰绰有余;
④楼梯位置调整同时可以增大卧室的空间,上楼往右侧为书房/客房+三分离客卫,往左侧为主卧和儿童房,动线简单空间充分利用;
⑤超大主卧套间,三分离卫生间+洗衣机+衣帽间一体,以洗手台为中心的洄游动线,方便到各个功能区,同时还可以睡眠区与功能区隔开,夜间使用空调更节能;
⑥充分利用主卧与儿童房之间的\"S\"墙,一半给到主卧做电视柜和化妆桌,一半给到儿童房嵌入书桌+书架,让主卧与儿童房活动空间更大;
⑦书房与客房结合,与主卧衣帽间之间用两个衣柜隔开,不仅隔音效果更加,还节省了一面墙的面积;
⑧书房靠窗做地台,平时作为书房品茶/洽谈的空间,客人借宿秒变1.5m双人床;
@室内设计|力子
#800库 #户型优化 #三分离卫生间 #别墅设计 #上海独立设计师 #楼梯设计 #衣帽间 #洗衣房 #家居环境优化


