


适老化住宅平面图
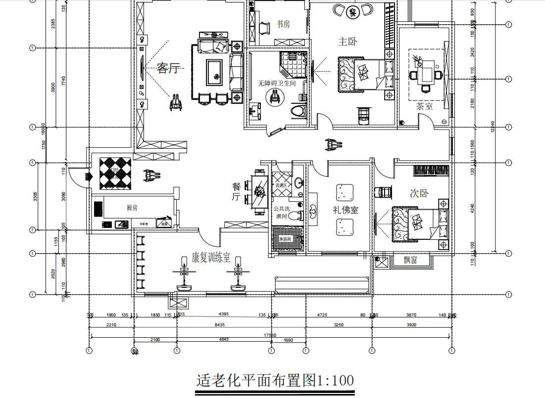
• 空间布局:整体布局较为紧凑且功能分区明确,涵盖了客厅、餐厅、厨房、主卧、次卧、书房、茶室、礼佛室、康复训练室等多个功能空间,能满足老年人多样化的生活场景需求。
• 无障碍设计:设有无障碍卫生间,内部空间宽敞,方便轮椅进出和回转,还配备了相应的无障碍设施,如扶手等,保障老人使用卫生间时的安全。
• 生活便利性:厨房与餐厅相邻,方便老人备餐和用餐;康复训练室的设置为老人提供了室内锻炼的空间,有助于保持身体健康;茶室和礼佛室则满足了老人精神文化层面的需求。
• 安全细节:在各区域如走廊、卫生间等设置扶手,地面采用防滑材料等,减少老人摔倒风险。
• 动静分区:卧室等休息区域与客厅、康复训练室等活动区域有一定分隔,保证老人休息时不受过多干扰。
#适老化设计 #老年人设计 #无障碍设计
• 空间布局:整体布局较为紧凑且功能分区明确,涵盖了客厅、餐厅、厨房、主卧、次卧、书房、茶室、礼佛室、康复训练室等多个功能空间,能满足老年人多样化的生活场景需求。
• 无障碍设计:设有无障碍卫生间,内部空间宽敞,方便轮椅进出和回转,还配备了相应的无障碍设施,如扶手等,保障老人使用卫生间时的安全。
• 生活便利性:厨房与餐厅相邻,方便老人备餐和用餐;康复训练室的设置为老人提供了室内锻炼的空间,有助于保持身体健康;茶室和礼佛室则满足了老人精神文化层面的需求。
• 安全细节:在各区域如走廊、卫生间等设置扶手,地面采用防滑材料等,减少老人摔倒风险。
• 动静分区:卧室等休息区域与客厅、康复训练室等活动区域有一定分隔,保证老人休息时不受过多干扰。
#适老化设计 #老年人设计 #无障碍设计


