




它采用经典A字三角造型,线条简洁利落,是现代建筑对传统木屋形态的创新演绎。黑色金属屋顶与暖色调木质立面形成强烈视觉对比,既具工业风的冷峻质感,又有原木的温馨温度。大面积三角落地窗是设计亮点,将雪景、树林等自然景观无界引入室内,白天让阳光满室,夜晚则能揽星河入怀,实现建筑与环境的诗意对话。【?民宿设计新姿势,移动生活新选择?】你是否曾向往着一颗不羁的心,去寻找那片属于自己的森林小屋?
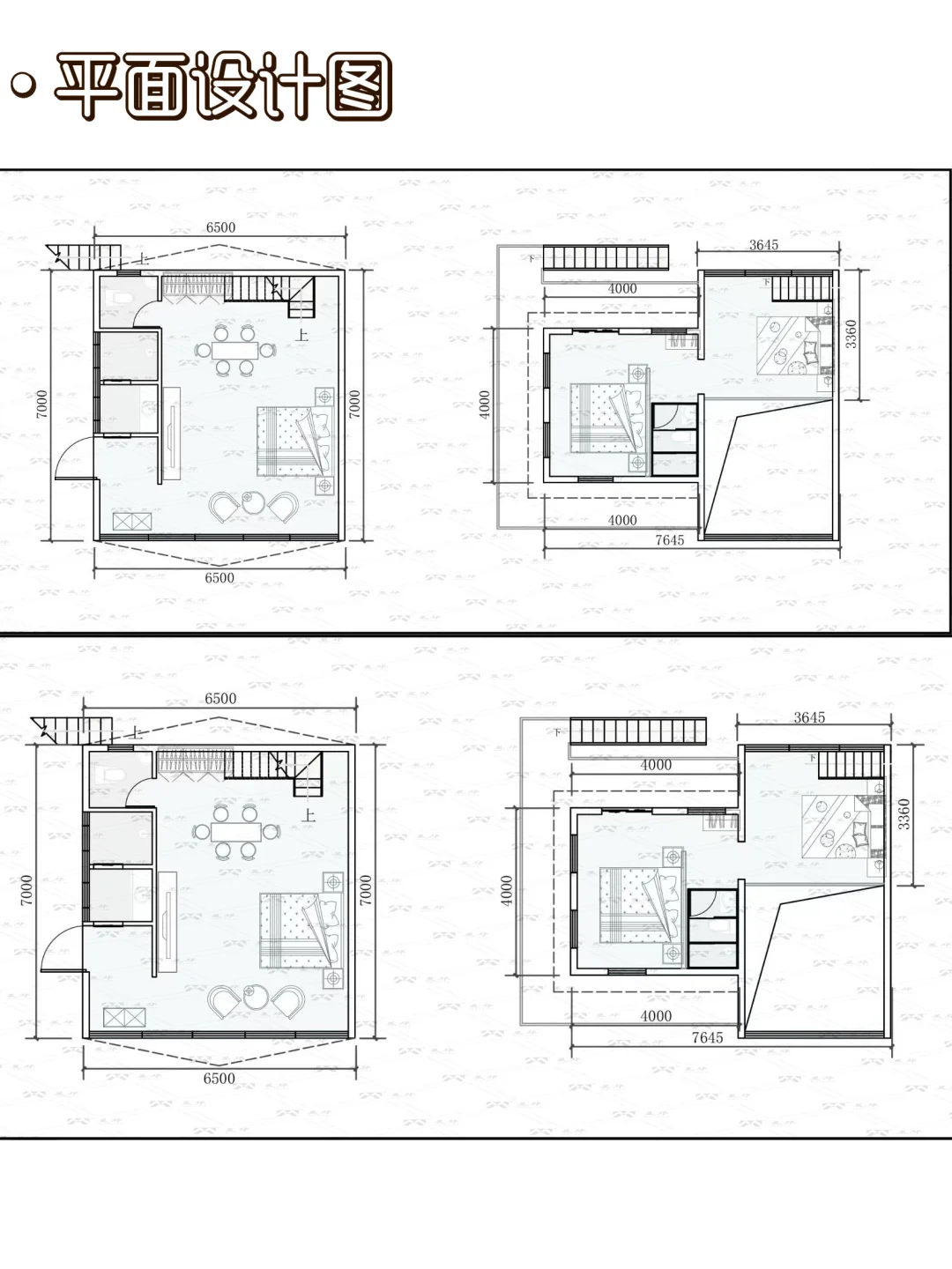
功能优势:适配气候与空间利用
• 气候适应性强:三角结构在 snowy 地区极具实用性,倾斜屋顶能快速排雪,避免积雪压顶;金属屋顶的防水、抗风性能也为建筑筑牢防护。
• 空间层次灵动:内部可利用三角屋顶打造阁楼或挑高区域,拓展储物、休闲空间,让小体量建筑也能拥有丰富的功能分区。
场景体验:沉浸式自然栖居
无论是作为度假木屋,还是小众民宿,它都能让居者沉浸式感受自然。冬日在露台围炉观雪,圣诞时让雪松与暖灯共筑氛围;平日则可透过巨幕玻璃,看四季树影在墙面流转——在这里,建筑不再是“容器”,而是人与风景共生的“媒介”。
简言之,这处三角屋是“设计感、实用性、自然感”的三重叠加,既满足对独特建筑的审美追求,又能提供舒适且充满诗意的居住体验。#集装箱民宿 #可移动住宅 #装配式建筑 #集成房屋 #民宿推荐 无论是蓝天白云下,还是绿树成荫处,A型系列民宿都能为你打造出一个让你舒适自在的“家”。
功能优势:适配气候与空间利用
• 气候适应性强:三角结构在 snowy 地区极具实用性,倾斜屋顶能快速排雪,避免积雪压顶;金属屋顶的防水、抗风性能也为建筑筑牢防护。
• 空间层次灵动:内部可利用三角屋顶打造阁楼或挑高区域,拓展储物、休闲空间,让小体量建筑也能拥有丰富的功能分区。
场景体验:沉浸式自然栖居
无论是作为度假木屋,还是小众民宿,它都能让居者沉浸式感受自然。冬日在露台围炉观雪,圣诞时让雪松与暖灯共筑氛围;平日则可透过巨幕玻璃,看四季树影在墙面流转——在这里,建筑不再是“容器”,而是人与风景共生的“媒介”。
简言之,这处三角屋是“设计感、实用性、自然感”的三重叠加,既满足对独特建筑的审美追求,又能提供舒适且充满诗意的居住体验。#集装箱民宿 #可移动住宅 #装配式建筑 #集成房屋 #民宿推荐 无论是蓝天白云下,还是绿树成荫处,A型系列民宿都能为你打造出一个让你舒适自在的“家”。


