手机版
二维码
购物车
(
0
)
供应
求购
公司
团购
展会
资讯
招商
品牌
人才
知道
专题
图库
视频
下载
商圈
推广
热搜:
采购方式
滤芯
甲带
气动隔膜泵
减速机
减速机型号
带式称重给煤机
履带
无级变速机
链式给煤机
首页
供应
求购
公司
团购
展会
资讯
招商
品牌
人才
知道
专题
图库
视频
下载
商圈
首页
>
资讯
>
展会资讯
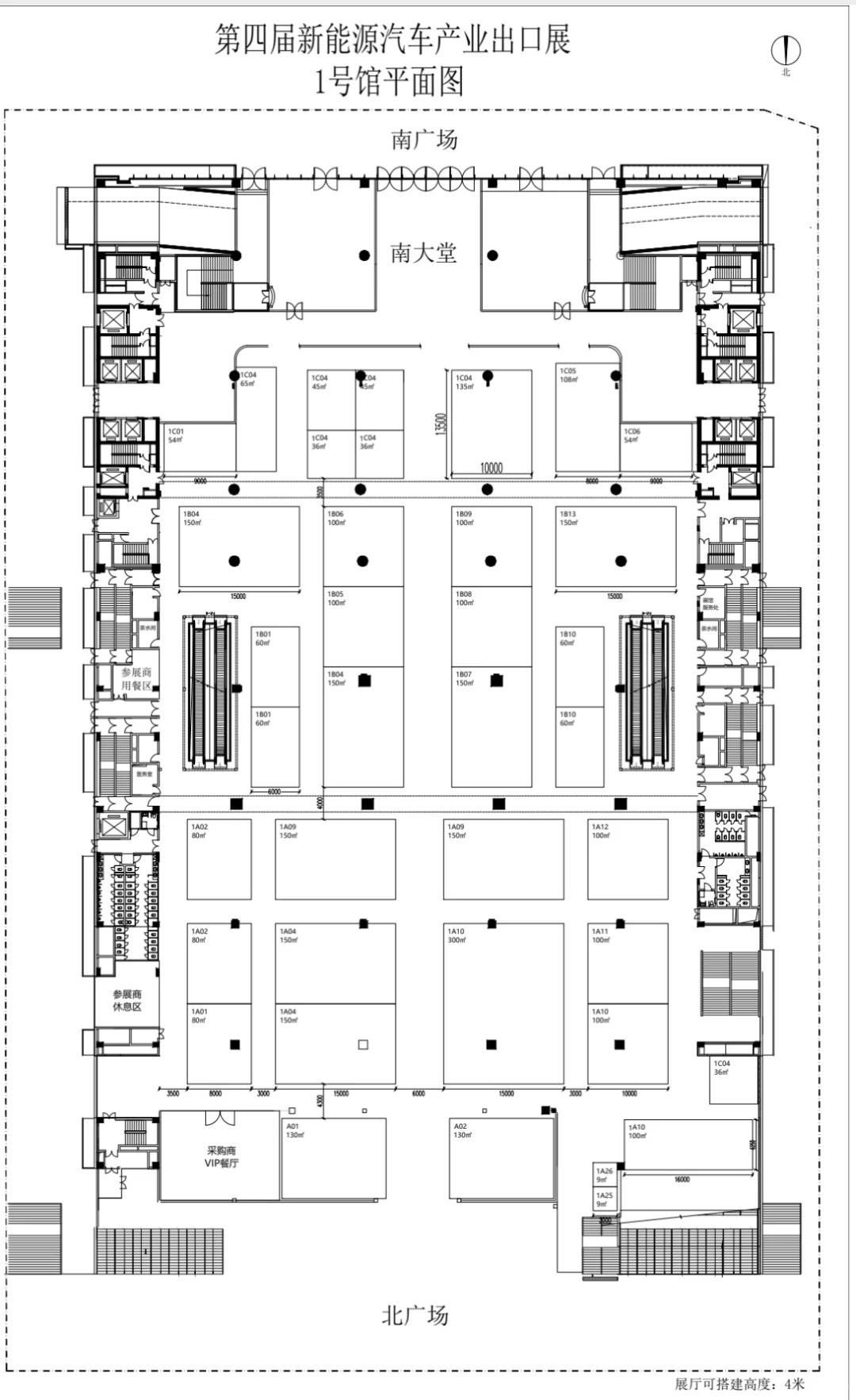
2025年第4届新能源汽车产业出口展览会
日期:2025-03-17 08:22:03 来源:网络整理 作者:本站编辑 浏览:
26
评论:0
2025年第4届新能源汽车产业出口展览会
2025年第4届新能源汽车产业出口展览会\n搭建优质新能源汽车贸易出口平台,前沿的技术展示、专业论坛研讨、贸易促进活动、全媒体宣传。展位图如图所示。
打赏
更多
>
同类资讯
• 展台设计搭建 | 2025年11月上海展
• 境外活动没头绪?新世界会展一
• 5年的销售经验:告诉你,对待客户
• 职场沟通|如何快速与多方约定
• 职场小白也能轻松拿捏领导时间
• 裸辞日常丨i人勇闯上海百货展空
• 采购必知知识点,先mark!
• 专业分享|会展行业中最容易被
• 青岛美博会缺个搭子~
• 2025伊朗下半年展会信息
0
条
相关评论
推荐图文
推荐资讯
点击排行
131
1
被CCBEC的规模惊到!跨境人的宝藏展会?
119
2
2025第138届广交会(第一期)展区平面图
113
3
无人机展会一站式资料
108
4
美睫人年度狂欢!青岛平度这场展会直接封神
98
5
2025年山西(太原)能源产业博览会我们来咯
98
6
倒计时5天!北京珠宝展源头价开抢,放心冲
94
7
重新睡。
89
8
美院毕业展
87
9
一天一条产业链:半导体产业链
网站首页
|
关于我们
|
联系方式
|
使用协议
|
版权隐私
|
网站地图
|
排名推广
|
广告服务
|
积分换礼
|
网站留言
|
RSS订阅
|
违规举报
|
皖ICP备20008326号-18
(c)2008-2022 免费发布网 All Rights Reserved