电工:这才是改水电标准尺寸,你家的伪设计收好,别丢人现眼
新房装修,水电改造通常会遇到尺寸设置的问题,有经验的老电工会根据房屋情况和业主生活习惯进行改造,业主入住后对今后的生活习惯不会造成太大影响,而经验稍次的电工,恐怕装修时多数是照本宣科,缺少灵活性,所以入住也就麻烦不断!
今天小编给大家带来老电工设计的国标尺寸高度,新房装修照这改造方案做,绝对漂亮还实用!
新房电路布置



注意:不同的回路在使用电线截面尺寸的时候,也是不同的!比如:
(1)如下图,1.5mm2的电线安全载流量为13A,断路器规格C10,如果在使用中超过这个,那就会自动跳转,这减少了后期在使用中被烧坏的可能,安全承载功率2200w,满足普通灯具需要。
(2)选择电器时,千万要注意其电功率,如果在你的想象中,大功率比较多的话,那你就得注意要到供电局申请调整改造,如果不行的话,那在后期我们使用过程中,千万要注意大功率不要同时使用!

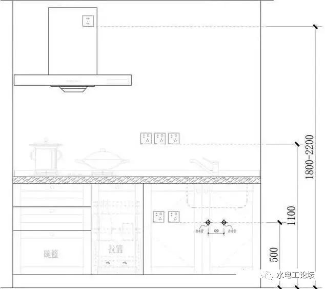
全屋水路布置
出水口预设高度
洗漱台:如果水龙头不是墙出的话,那出水口一般离地面净尺寸在500-55mm左右;如果式墙出水龙头的户啊,那出水口要在离地面距离净尺寸900-95mm!
在设计热水器的时候,一定要注意左热右冷的原则!

洗菜池:出水口距地面净尺寸的一般在400-50mm左右,设置冷热出水口,也要遵循左热右冷。预留净水机出水口一个。

拖把池:这个高度一般离地面净尺寸的高度在750-800慢慢mm,设置冷出水口。
洗衣机:出水口一般离地面净尺寸1200mm,设置冷进出水口。
电热水器:一般离地面净尺寸进出水口1700mm,设置冷热进出水口,冷热水管应左热右冷。

燃气热水器:一般离地面净尺寸进出水口1300mm,设置冷热进出水口,冷热水管应左热右冷。
淋浴龙头混水器:一般离地面净尺寸出水口1100mm,冷热出水口左右管距145-150mm。设置冷热出水口,冷热水管应左热右冷。
坐厕:一般离地面净尺寸出水口200mm,设置冷自来水出水口及中水出水口。

如果你家有中水管道的话,一定要预留中水水口接入马桶,然后将自来水的水口接入洁身器,千万要注意不要接反了!
以上图片来源网络



