
关注送原版
点击名片关注机电天下公众号,回复:总结。得到本文原版资料!
来源:网络整理,如有侵权请联系删除

1、设备间设备、管线综合布置
1.材料:电子版设计图纸、图纸会审纪要、设备技术参数资料。
2.工具:计算机、CAD软件或三维设计软件。
3.工序:安装电子版原设计图→ 各专业图纸叠加 → 找出管线碰撞点 → 调整管线空间位置消除碰撞 → 确定支架形式 → 绘制综合布置图 → 设计单位确认 → 施工。
4.工艺方法:
(1)在设备、管线参数确定后,设备间机电工程施工前完成深化设计;设备间安装工程施工前,经业主向原设计单位索要各专业电子版设计图纸,在计算机上安装CAD软件及电子版设计图纸。
(2)利用CAD或三维深化设计软件对安装各专业图纸进行叠加,找出管线、设备碰撞位置。
(3)对于碰撞的管线、设备,调整时应遵循下列原则:
①确定设备和设备相连的管、配件尺寸及管线进出口位置;
②排布达到设备的进出口,设备基础的中心线或外边沿、设备中心线或边沿、立管中心线、支架、仪表、阀门操作手柄等标高、朝向一致;
③管线宜靠近墙、梁集中合理布设。
(4)形成的深化图,提交原设计单位确认后实施;
(5)安装各专业统一按照深化设计图规定的空间位置进行设备间施工(距离弯头500mm范围内应设置支吊架)。
5.控制要点:成行成线、维护方便、按照综合管线布置图施工。
6.质量要求:设备、管线排列整齐,成行成排,部件标高、朝向一致。
7.做法详图:

8.实例图:

2、电气竖井
1.材料:电子版设计图纸、图纸会审纪要。
2.工具:钢卷尺、红外放线仪、计算机、CAD软件或三维设计软件
3.工序:核对预留孔洞→ 计算机排版 → 调整设备位置、标高 → 绘制布置图 → 根部处理 → 施工。
4.工艺方法:
(1)根据设计图纸、桥架容量及尺寸、配电箱尺寸,核对竖井管线设备位置及孔洞预留尺寸、位置,利用CAD或三维深化设计软件布置电井内设施;
(2)排布应遵循下列原则:
①强弱电分开,且相对集中;
② 配电箱应沿墙整齐排列,同范围箱体下沿标高一致。单独箱体安装时,箱体高度600mm以内,底边距地1.5m;箱体高度600~800mm,底边距地1.2m;箱体高度800~1000mm,底边距地1.0m;箱体高度1000~1200mm,底边距地0.8m;箱体高度1200mm以上落地安装;预留空间满足安全距离及检修空间要求;
③支架形式应统一,固定牢靠;
④电井内水平接地支线应敷设到所有管线设备就近位置,与设备连接可靠;
⑤电井应设门槛,桥架、插接母线在地面或穿楼板地面处有不低于50mm的挡水台,桥架、插接母线穿楼板处应做20~30mm防火封堵,顶部设置防火托板,加装饰圈。
5.控制要点:接地可靠、标识清晰、封堵严密。
6.质量要求:电气设备管线布局合理、安装牢固可靠。
7.做法详图:

8.实例图:

3、管井
1.材料:电子版设计图纸、图纸会审纪要。
2.工具:CAD制图软件、三维制图软件。
3.工序:尺寸量测→ 计算机排版 → 确定支架形式 → 绘制布置图 → 施工。
4.工艺方法:
(1)管井安装施工前,根据设计图纸量测管井实际尺寸,用计算机排版。
(2)排布应遵循下列原则:
①沿墙整齐排列,以管道保温最终外形尺寸为依据,保持管道间距均匀;距墙距离以管道外缘为准,但应考虑空调冷冻水管道支架处绝热垫木的尺寸。
②优先采用共用支架;
③同规格管道支架形式、标高应统一;
(3)管道穿楼板根部应设套管或护墩,套管与管道之间应做防火封堵,顶部齐平光滑,设装饰圈;
(4)管道油漆应完整、均匀、光亮,保冷层牢固平顺严密,标识应清晰醒目;
5.控制要点:沿墙排布、整齐、合理、空间利用。
6.质量要求:管道排列整齐,标示齐全准确,支架标高一致。套管下设牢固、严密,标高一致,环缝均匀,封堵规范,表面密实平整,根部处理细腻。
7.做法详图:

8.实例图:

4、“U”型卡环、管夹
1.材料:成品“U”型卡环、扁钢、塑料软管、螺栓、圆头螺帽。
2.工具:扳手、电焊机、油漆刷。
3.工序:安装卡环→ 锁紧螺母 → 安装圆头螺帽。
4.工艺方法:选择与管径匹配的卡环,卡环安装固定螺栓孔应保证管道顺直且居卡环中间,卡环与管道应接触紧密。圆钢卡环与不锈钢管、铜管连接固定时,卡环应套塑料保护软管,管道与支架间接触面应垫与角钢同宽的隔离橡胶垫。扁钢卡环应与木托同宽,与螺杆应满焊连接;在与支架连接处应垂直,扁钢端部与支架宜留有5~8mm收缩余量,卡环端部外露支架的螺栓宜采用圆头螺帽收头,油漆涂刷应均匀。
5.控制要点:卡环规格、卡环的垂直度、保护软管。
6.质量要求:卡环保持垂直,卡环末端安装圆头螺帽,扁钢宽度同木托宽度。
7.做法详图:

8.实例图:



5、工厂化C型钢支架
1.材料:镀锌C型钢、六角螺栓、镀锌连接件(平面、转角、三维、Z型、U型、马鞍型)、固定件、单/双头板、膨胀螺栓。
2.工具:冲击钻、扳手、力矩扳手、钢卷尺、水平尺、红外线仪等。
3.工序:管线排布→ 确定支架形式 → 工厂化加工 → 现场安装。
4.工艺方法:
(1)结合图纸和现场实际确定管线排布走向、间距、标高等。
(2)根据支架承载管线的数量、规格、自重、介质、动静荷载效应等计算,确定支架的规格和形式。
(3)委托厂家根据确定规格和形式进行加工。
(4)在建筑基层上用膨胀螺栓固定单/双头板,在C型钢内卡紧弹簧螺母,将支撑立柱与单/双头板固定,立柱与横担采用连接件(平面、转角、三维、Z型、U型、马鞍型)、弹簧螺母、六角螺栓固定,用力矩扳手核查紧固力。
5.控制要点:管线排布、支架荷载计算,支架选型及安装。
6.质量要求:支架安装牢固,成排支架应排列成线、标高一致。
7.做法详图:

8.实例图:

6、管道
1.材料:自喷漆或不干胶纸。
2.工具:剪刀、裁纸刀、钢板尺。
3.工序:图样设计→ 模板制作或图样制作 → 位置确定及清理 → 喷涂或粘贴。
4.工艺方法:
(1) 标识部位应选在宜观察部位。应设置在便于操作、观察的直线段上,避开管件等部位,成排管道标识应整齐一致。
(2)垂直管道宜标识在朝向通道侧管道轴线中心,成排管道以满足标识高度的直线段最短管道为基准,依次一致标识。
(3)水平管道轴线距地小于1.5m时,标识在管道正上方;在1.5m~2.0m时,标识在正视侧面;大于2.0m时,标识在正下方或侧面。
(4)标识内容应反映系统名称及编号、介质流向;标识形式包括颜色、色环、文字、箭头。
(5)标识所采用的颜色应根据管道面色确定,依照表3.1-1。

(6)采用色环标识时,请参照有关标准GB7231-2003标准的有关规定执行。
(7)文字统一采用黑体加粗字,管径在80mm~150mm时,文字大小为50mm~60mm宽;管径大于150mm时,文字大小为80mm~100mm宽。箭头与文字间、文字与文字间间距不大于1个文字宽度,成排管道标识字体大小应一致。
(8)单根管道文字置于箭尾;成排水平管道介质流向不一致时,介质流向标识统一放在文字左侧;垂直成排管道介质流向不一致时,介质流向标识统一放在文字上方。竖向文字方向应自上而下,水平文字方向应自左向右。
(9)箭头大小及形式见表3.1-2和图3.1-1。

(10)喷漆或粘贴前管道表面应清理干净、干燥。采用自喷漆时,喷涂应防止污染,周围应保护到位。
5.控制要点:标识颜色、大小、位置。
6.质量要求:喷涂或粘贴要牢固、清晰,喷涂无流坠,粘贴无翘边。
7.做法详图

8.实例图:


7.设备
1.材料:背胶纸、PVC板、尼龙扎带。
2.工具:剪刀、裁纸刀、钢板尺。
3.工序:标识图样设计 → 模版或图样制作 → 确定标识部位及表面清理 → 挂贴。
4.工艺方法:
(1)泵、主阀门、换热器、冷冻机组、空调机组、风机等均应采用贴(挂)牌标识。
(3)牌应采用背胶纸打印后粘贴在厚3~4mm的PVC板上。字体采用宽30mm的红色黑体加粗。
5.控制要点:标识内容、尺寸。
6.质量要求:标识牌挂(贴)牢固、内容完整。
7.做法详图:

8.实例图:

8、管道弯头保温层保护壳
1.材料:不锈钢板(镀锌钢板、彩钢板或铝板)、不锈钢自攻螺丝(镀锌自攻螺丝或抽芯铆钉)。
2.工具:剪刀、橡皮锤、直尺、咬口机、卷圆机、铆钉枪、螺丝刀、手电钻、划规。
3.工序:尺寸量测→ 放样 → 加工制作 → 安装。
4.工艺方法:测量保温面层直径及弧长,从距弧线端向外10~15mm处计算虾弯长度。根据管径不同,确定虾弯组成节数,按表4.6-1选用。

按照虾弯内弧总长度,平均分配,确定每个虾弯组成节的尺寸进行下料。安装时,每个虾弯从上到下或从左到右咬口方向应一致,虾弯要过渡自然、圆滑平顺,咬口严密无折皱,接缝应放在正视不明显位置,成排虾弯接缝方向一致,每个虾弯组拼节在接缝处不少于两个铆固点。
5.控制要点:虾弯组拼节数、咬口、接缝。
6.质量要求:虾弯过渡平滑、接缝咬口严密无折皱。
7.做法详图:

8.实例图:


1、管道穿楼板
1.材料:钢管、PVC管、钢套管、阻火圈、塑料装饰圈、油麻、防火胶泥、木楔、密封胶、油漆。
2.工具:钢卷尺、水平尺、榔头、捻凿、切割机、油漆刷。
3.工序:套管制作与安装→ 防火泥封堵 → 吊洞 → 安装装饰圈 → 刷漆。
4.工艺方法:先按管道规格及所穿楼板的厚度切割套管(套管比立管大1~2个管号, 套管间隙10~20mm为宜,套管高出装饰面层20~30mm,多水房间时应为50mm),套管规格应考虑管道保温或保冷层厚度,使保温或保冷层在套管内不间断,套管安装前内外刷防锈漆,按所需数量套入管道,调直固定好立管,用木楔把套管临时固定于洞口,用捻凿把油麻填塞于套管间隙的2/3处(多水房间时,钢套管应焊防水翼板。)调整套管与管道的同心度,套管与板底平齐,套管与管道之间的缝隙用石棉绳封堵严密。补洞砼浇筑完成后其余间隙填塞石棉绳,套管顶部打密封胶密封,密封胶要求与套管上部平齐,胶缝要求均匀,套管底部安装饰圈,板面上外露套管刷黑色或灰色油漆, 管道为PVC管,设计有阻火圈时,底部应加阻火圈。
5.控制要点:同心度、填塞、安装高度。
6.质量要求:套管间隙均匀,出地面高度,普通房间为20mm,多水房间为50mm,屋面套管为250mm。
7.做法详图:

8.实例图:

2、设备地脚螺栓防水防腐保护
1.材料:UPVC管、黄油。
2.工具:钢卷尺、手锯。
3.工序:测量尺寸→ 套管制作安装 → 填塞黄油。
4.工艺方法:对室外和多水房间安装的设备地脚螺栓,根据设备地脚螺母大小及螺栓外露长度,确定套管的直径及高度,成排或同一区域内螺栓外露长度应一致,以确保套管高度一致且覆盖螺栓顶面5mm。套管直径与螺母直径匹配,套管安装后用黄油填塞套管与螺栓之间的间隙,上口与套管平齐。
5.控制要点:套管直径、高度。
6.质量要点:套管规格与螺栓匹配且同一区域内直径、高度、色泽一致,黄油密封严密,表面平齐。
7.做法详图:

8.实例图:


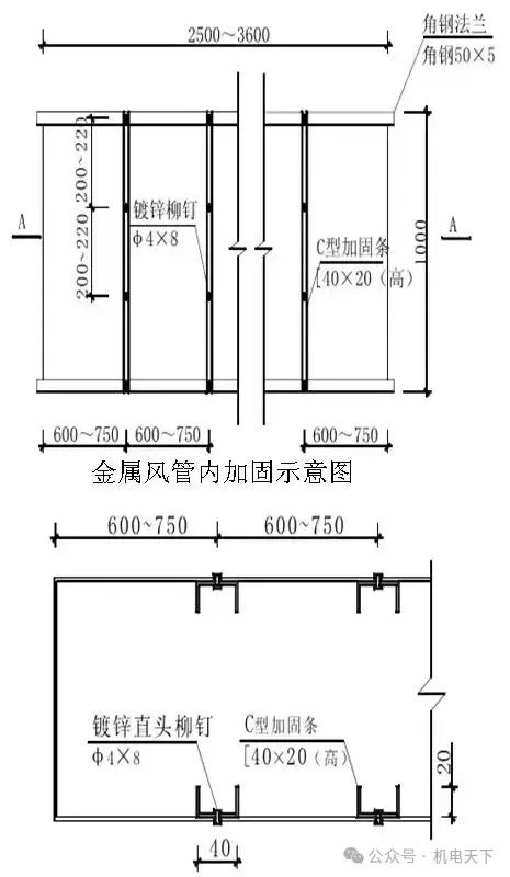
1、风管加固(不适用洁净系统)
大口径(b≥2500mm)镀锌钢板风管加固
1.材料:1.2mm厚镀锌钢板、ф4×8镀锌铆钉。
2.工具:剪板机、折方机、手电钻、榔头、垫铁。
3.工序:制作C型条 →画线 → 打眼 → 铆接 → 法兰安装。
4.工艺方法:利用1.2mm厚的镀锌钢板制作C型条,沿风管宽度方向将C型条按600~750mm间距铆接。铆钉按200~220mm间距铆接在风管内侧。加固完成后安装风管两端法兰。
5.控制要点:C型条加工顺直平整、铆接平整牢固。
6.质量要求:铆接平整且牢固,铆点间距宜为200-220mm且均匀分布,加固条间距宜为600-750mm且均匀分布。
7.做法详图

8.实例图:

2、玻璃纤维风管加固
1.材料:镀锌螺帽、Ø16KBG管、镀锌通丝螺杆、碟片。
2.工具:砂轮切割机、手电钻。
3.工序:定位打眼→ 加工安装KBG管 →固定。
4.工艺方法:矩形风管长边大于630mm时,顺长边方向中间应进行空间高度加固,按间距300~600mm在风管上确定加固KBG管的位置,加固点宜居中或均匀对称分布,上下孔应垂直对应。
KBG管加工长度为风管高度减两个碟片厚度,将KBG管及内侧两端碟片置于螺栓孔对应位置后,穿通丝螺杆,外侧加碟片及螺帽固定,并用圆头螺帽收头。
5.控制要点:KBG管长度、通丝螺杆长度、风管表面平整度。
6.质量要求:加固点成排成线间距均匀,风管表面无变形,加固杆固定牢靠。
7.做法详图:

8.实例图:

3、风管与风机软连接1.材料:三防布、跨接线、镀锌螺栓、镀锌铁皮条、风管法兰。
2.工具:钢卷尺、水平尺、手枪钻。
3.工序:定位弹线→法兰及软接制作 → 软接连接 →接地跨接 。
4.工艺方法:确定风管与风机之间的距离和同心性,距离要求150~200㎜,风管、风机同心同径;制作软接两端法兰,中低压系统法兰螺栓孔间距120~150㎜,高压及净化系统孔距80~100㎜,软接长度为法兰间距加20~30㎜伸缩量,用铆钉将软接均匀平整的固定在法兰上,铆钉位置和法兰螺栓位置对应,风机法兰与风管法兰螺栓孔对应,螺栓朝向与介质流向一致,螺栓外露长度为2~3扣丝。屋面与防暴场所采用不小于4mm2的黄绿双色铜芯软线压接铜鼻子接地跨接。成排风机中心线应在一条线上。
5.控制要点:同心度、法兰及软接加工。
6.质量要求:风机、风管应同心,软接平顺,松紧适宜接口严密。
7.做法详图:

8.实例图:



永久VIP专享

扫码加入永久VIP
9T机电资料库·无限更新
协助下载·精英人脉
1. 机电天下招募永久会员,168次机电技术课程+352系列机电技术精品资料库+后续无限更新!
12. 名企市政基础设施工程分部分项标准化构造实施指南(机电篇)
22. 机电工程质量创优总结课件(概念、专业范围、质量策划)
43. 非常完整的机电安装施工方案word版 可编辑可修改!
49. 机电设备专业质量通病防治大全解PPT版 可下载可编辑!
57. 机电安装工程十一项技术介绍及应用范围PPT 可下载!
机电天下
建筑机电技术人交流、学习乐园

机电天下平台(网址:www.mepbbs.com),聚集天下建筑机电行业之精英、汇聚天下建筑机电行业之精华!创建于2015 年 5月18 日。机电天下媒体矩阵主要由机电天下网站、机电天下公众号、机电天下学院、机电天下头条号等十余个知名平台自媒体组成,为建筑行业领域内的机电设计师、顾问、施工安装工程管理人员、设备材料厂商、开发商等提供信息服务、互联网精准营销服务、专业资料服务、技术培训服务等。
阅读原文,一键下载5T机电技术精品资料库


