
之前我们给大家分享过《17类吊顶节点工艺说明》包括17类吊顶节点的三维示意图、节点图以及工艺说明,同理,今天我们来盘点一下17类墙面部分的节点工艺,包括石材、木饰面、镜面、不锈钢、马赛克等,内容较多,建议收藏。
01. 石材与木饰面
www.shejidedao.com丨联系VX:dop024 回复“公众号”加群


工艺说明:
a.施工工序
准备工作--现场放线--材料加工--基层处理--轻钢龙骨隔墙制作--木饰面基础固定--石材专用AB胶--铺贴石材--成品木饰面安装--完成面处理。
b.用料分析
1)选用指定加工石材20mm倒角20*5mm;
2)定制成品木饰面基础材料多层板;
3)用石材专AB胶铺贴;
4)木饰面基础需做三防处理;
5)石材需做六面防护。
c.完成面处理
1) 保证石材与木饰面拼接缝完整石材做抛光处理;
2)用专用保护膜做成品保护。

02. 墙砖与木饰面


工艺说明:
a.施工工序
准备工作--现场放线--材料加工--基层处理--木饰面基础固定--墙砖干挂结构框架固定--干挂墙砖--成品木饰面安装--完成面处理。
b.用料分析
1)选用指定墙砖;
2)定制成品木饰面、基础材料木龙骨;
3)用墙砖专用胶干挂;
4)木饰面与墙砖接口用实木线条收口。
c.完成面处理
1)保证墙砖与木饰面拼接缝完整墙砖做擦缝处理;
2)用专用保护膜做成品保护.

03. 木饰面与玻璃


工艺说明:
a.施工工序
准备工作--现场放线--材料加工--基层处理--龙骨调平--木工板基层--黏贴玻璃--干挂木饰面--完成面处理。
b.用料分析
1)选用玻璃10mm;
2)选用12mm木饰面;
3)木饰面选用9厚干挂件;
4)银镜车边处理;
5) 自攻螺丝点需做防锈处理。
c.完成面处理
1)木饰面面层修补、保洁;
2)用专用保护膜做成品保护。

04. 玻璃与不锈钢


工艺说明:
a.施工工序
准备工作--现场放线--材料加工--基层处理--轻钢龙骨结构框架固定--细木工板基层--成品镜子安装--完成面处理。
b.用料分析
1)踢脚专用干挂配件;
2)选用指定木基层加工、固定框架;
3)用专用粘结剂固定安装不锈钢;
4)安装时不锈钢折边需平直。
c.完成面处理
用专用保护膜做成品保护

05. 软硬包与墙纸相接


工艺说明:
a.施工工序
准备工作--现场放线--材料加工--基层处理--木龙骨调平--木工板基层--石膏板基层--壁纸黏贴--成品软硬包安装--完成面处理。
b.用料分析
1)木龙骨三防处理;
2)木工板基层三防处理;
3)用专用胶安装壁纸;
4)安装时先贴墙纸在装软硬包。
c.完成面处理
用专用保护膜做成品保护。

06. 乳胶漆与不锈钢


工艺说明:
a.施工工序
准备工作--现场放线--材料加工--基层处理--卡式龙骨结构框架固定--纸面石膏板基层--细木工板基层--不锈钢安装--完成面处理。
b.用料分析
1)卡式龙骨调平;
2)细木工板基层三防处理;
3)石膏板钉眼防锈处理;
4)不锈钢折边平直;
5)不锈钢撞墙面乳胶漆。
c.完成面处理
用专用保护膜做成品保护。

07. 陶瓷与马赛克



08. 石材暗门工艺做法



09. 玻璃窗户与墙面相接



10. 石材隔墙工艺做法



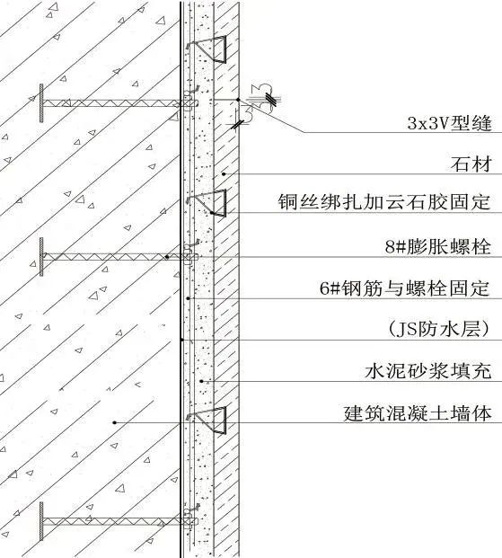
11. 石材与混凝土墙相接

▲ 石材与混凝土墙相接三维示意图

工艺说明:
a.墙面做JS防水层;
b.选用石材18mm,均经过六面防护、晶面处理;
c.塑造石材造型,上下口做3mm倒角;
d.石材安装前进行打9眼,方便铜丝固定(上下共4个眼);
e.钢筋与石材固定;
f.土建墙体固定膨胀螺栓;
g.钢筋于螺栓固定,钢筋成网状;
h.铜丝栓绑与钢筋网;
i.石材与墙体之间填充水泥砂浆,即灌浆。

12. 陶瓷马赛克隔墙工艺做法

▲ 陶瓷马赛克隔墙工艺做法三维示意图

工艺说明:
a.选用马赛克,表面平整、尺寸正确、边棱整齐;
b.上下固定75天地龙骨,上38穿心龙骨完成基层施工;
c.固定水泥板,上双层钢丝网;
d.水泥砂浆抹灰找平处理,一定保证平整度;
e.刮毛处理,保证粘结层的附着力;
f.铺贴马赛克,完成施工;
g.揭纸、调缝、擦缝。

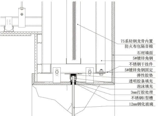
13. 玻璃窗户与墙面相接

▲ 玻璃窗户与墙面相接三维示意图

工艺说明:
a.玻璃物料选样,无划痕,无损伤;
b.钢架基层预埋;
c.U型槽的焊接安装;
d.弹性胶垫填充;
e.安装玻璃,透明胶条填充;
f.收口处3mm打胶处理;
g.清理,保护。

14. 加气块墙石材干挂

▲ 加气块墙石材干挂三维示意图

工艺说明:
a.选用石材18mm,均经过六面防护、晶面处理;
b.塑造石材造型,上下口做3mm倒角;
c.加气块墙体固定镀锌钢板,一般用8#穿墙螺栓固定;
d.在干挂件无法满足造型的需求下,采用满焊5#角钢转接件,以调整完成面与墙体的间距;
e.满焊8#镀锌槽钢竖向;
f.满焊5#镀锌角钢横向龙骨;
g.固定不锈钢干挂件;
h.固定不锈钢干挂件,AB胶固定石材,完成安装;
i.近色云石胶补缝,水抛晶面。

15. 艺术玻璃与墙面相接做法

▲ 艺术玻璃与墙面相接做法三维示意图

工艺说明:
a.玻璃物料选样,无划痕,无损伤;
b.钢架基层预埋;
c.钢架基层焊接;
d.使用结构胶安装艺术玻璃;
e.安装完成,清理,保护。

16. 木龙骨干挂木饰面墙面做法

▲ 木龙骨干挂木饰面墙面做法三维示意图

工艺说明:
a.30*40mm木龙骨中距300mm,刷防火涂料三度,用钢钉与木桢固定,木桢固定在混凝土墙体内;
b.12mm厚多层板基层找平处理,用钢钉与木龙骨固定,刷防火涂料三度;
c.木挂条中距300mm,用枪钉与多层板固定,木挂条背面刷胶,且刷防火涂料三度;
d.木挂条背面刷胶与木饰面用枪钉固定;
e.木饰面卡件安装,木饰面平整度调整。

17. 混凝土隔墙乳胶漆类做法

▲ 混凝土隔墙乳胶漆类做法三维示意图

工艺说明:
a.混凝土隔墙表面清除干净,墙面滚涂界面剂一遍,素水泥浆一道内掺水重3%~5%的108胶;
b.10厚1:0.3:3水泥石灰膏砂浆打底扫毛;
c.6厚1:0.3:2.5水泥石灰膏砂浆找平层;
d.满刮三遍腻子(内掺水重3%~5%的108胶);
e.封闭底涂料一道,待干燥后找平、修补、打磨;
f.第三遍涂料滚刷要均匀,滚涂要循序渐进,最好采用喷涂。




