
前言

近年来中国环境污染日益严峻,工业转型面临经济和社会的双重压力,形势紧迫。如何解决工业环境污染的同时又能够为企业创造经济效益?本文将给读者介绍脱硫工艺常见的方法,以及在这个大环境下的改进。


目前烟气脱硫工艺分类,按吸收剂不同,可以分为钙法、钠法、氨法、镁法、海水法;按脱硫产物是否可用,可分为回收法、抛弃法; 亦可分为干法、湿法和半干法。
主要脱硫工艺有: 石灰石石膏( 湿法) 脱硫、氧化镁法( 湿法)脱硫、氨( 湿法) 脱硫、氧化钙( 半干法) 流化床法脱硫、氧化钙( 半干法) 旋转喷雾法脱硫、炉内喷钙脱硫( 干法) 等。本文主要介绍煤气脱硫系统采用湿法氧化法脱硫技术(以PDS法为主)

一、脱硫工艺原理及技术比较
01
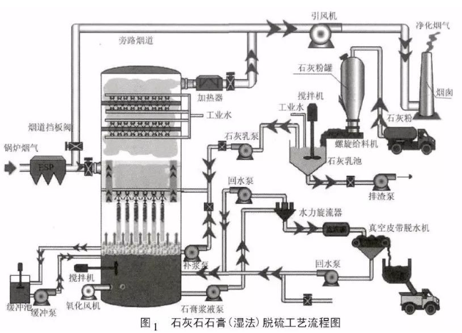
石灰石石膏(湿法)脱硫
其系统包括: 烟气系统、吸收塔系统、吸收剂制备系统、工艺水系统、石膏脱水系统、浆液排空及回收系统、压缩空气系统。
工艺原理: 利用石灰石( CaCO3) 浆液作为吸收剂,在反应塔内喷淋吸收烟气中的SO2等酸性污染气体,生成亚硫酸钙后,通过强制氧化生成含两个结晶水的硫酸钙( 石膏) 。该工艺是目前世界上应用最广泛和可靠的工艺,故本文对其工艺原理作较为详细的介绍。
湿法脱硫装置运行时,烟气从脱硫塔中部的入口烟道进入塔内,向上流动过程中,以逆流方式和从塔顶喷淋下来的石灰石浆液接触。
烟气的二氧化硫被吸收并发生化学反应,在吸收塔下部的反应池内被鼓入的空气氧化,最终生成石膏晶体。脱硫后的烟气通过除雾器除去夹带的液滴后,从顶部离开吸收塔进入烟囱。
脱硫反应产生的晶体石膏,被送到旋流站进行初步脱水,然后经真空皮带机二次脱水,成为石膏产品。

02
氧化镁法(湿法)脱硫
氧化镁法脱硫工艺按最终产物可以分为两种:
( 1) 回收法: 氧化镁经过熟化反应生成氢氧化镁,制成一定浓度的氢氧化镁浆液,在吸收塔内氢氧化镁和二氧化硫反应生成亚硫酸镁,亚硫酸镁经强制氧化生成硫酸镁,分离干燥后就是固体硫酸镁。图2 为氧化镁法( 湿法) 脱硫工艺流程图。
( 2) 氧化镁再生法: 氢氧化镁在吸收塔内和二化硫反应生成亚硫酸镁后,抑制亚硫酸镁生成硫镁,将其分离、干燥、焙烧后,产生氧化镁和二氧化硫富气,氧化镁循环再用,而二氧化硫富气用于制造硫酸。

03
氨(湿法)脱硫
氨或硫酸铵在吸收塔内吸收烟气中的二氧化硫、三氧化硫,生成亚硫酸铵或硫酸铵,其中亚硫酸铵经氧化生成硫酸铵,经过脱水、干燥后就得到固体硫酸铵。反应机理为:

04
氧化钙(半干法)流化床脱硫法
此法是在锅炉后部设置流化床作为吸收塔,氧化钙粉在悬浮状态下和烟气中的二氧化硫充分接触反应,从而吸收掉二氧化硫等酸性气体。反应机理如下:


05
氧化钙(半干法)旋转喷雾脱硫法
烟气中的二氧化硫在吸收塔内和高速喷入的石灰浆液雾滴进行充分混合反应,生成亚硫酸钙,经氧化生成硫酸钙。反应机理如下:


06
炉内喷钙脱硫(干法)
该法就是将熟石灰粉喷到锅炉炉膛内,因其效率较低,且只适用于流化床锅炉,不能保证二氧化硫排放值满足国家标准要求,故本文不做描述

二、各脱硫工艺的技术经济比较

三、煤制气PDS法脱硫、
煤气脱硫系统采用湿法氧化法脱硫技术(以PDS法为主)
煤制气脱硫:根据设计煤种全硫含量,以Na2CO3为碱源,在此前提下设计煤气脱硫系统,保证出口煤气中H2S含量≤20mg/Nm³;在脱硫塔内发生的主要反应如下:
(1)
Na2CO3 + H2S
NaHCO3 + NaHS
(2)
Na2CO3 + 2HCN
2NaCN + H2O + CO2
在再生塔内发生的主要反应如下:
(3)
NaHS + 1/2O2
NaOH + S
(4)
NaOH + NaHCO3
Na2CO3 + H2O
(5)
2NaHCO3
Na2CO3 + H2O + CO2
前工段来的粗煤气从脱硫塔底部进入,自下而上流动,与上部喷淋下的脱硫液逆流接触,煤气中的H2S被脱硫液吸收,由塔上部引出后进入后端系统。
吸收H2S后的脱硫富液,由脱硫塔底部排出,送到送到再生槽顶部的喷射再生器入口。脱硫富液高速经过喷射器喷嘴,在吸气室形成负压,大量的空气由空气进口进入喷射器吸气室,并与脱硫液一起高速通过喷射器喉管,在此脱硫富液与空气进行传质反应,完成大部分的氧化反应,再送至脱硫塔。
富液中的悬浮硫颗粒被空气浮选形成泡沫飘浮在再生槽上部。清液与泡沫分离后进入脱硫再生塔中上部的喷淋装置,与煤气逆流并发生反应,吸收硫化氢后的富液流入脱硫再生塔塔底,最后进入氧化槽,如此循环。
再生槽上部分离出的硫泡沫流入泡沫槽,当泡沫达到一定量时,启动泡沫泵,将泡沫打到压滤机及熔硫釜中,进行压滤、熔出和分离,最终形成硫磺。
(2)系统配置及设计要点
煤气脱硫系统采用湿法氧化法脱硫技术(以PDS法为主),脱硫塔采用一塔式结构,入脱硫塔煤气温度≤40℃,脱硫后煤气H2S要求≤20mg/Nm3,脱硫副产品为硫磺,事故槽按两期需求考虑,一期只建一套脱硫塔,预留两套脱硫塔(Φ8800)位置,全部建成后脱硫塔两开一备。脱硫泵房一次建成,泵房内配置电动葫芦,用于脱硫泵检修,预留二期泵位置。
脱硫塔填料采用聚丙烯阶梯环,喷射器、脱硫塔内件、脱硫泵(Q=2400m³/h,H=95m)及硫泡沫泵过流件均采用304材质,脱硫塔、事故槽、硫泡沫槽壳体均采用Q235B,内部采用环氧玻璃鳞片漆内防腐;脱硫塔壳体壁厚≥16/20/22mm,事故槽壳体壁厚≥14mm,硫泡沫槽壳体壁厚≥6mm。
硫泡沫采用板框压滤机压滤后进入熔硫釜熔硫,板框压滤机过滤面积≥100m2,熔硫釜夹套筒体材质采用Q345R,内筒材质采用304。
脱硫液循环量≥2400m3/h,脱硫泵1开1备。

来源:网络综合整理
编辑:高欣泽
审核:杨闻香
声明:本公众号所发相关内容,若需转载,请参考以下链接


