
作为一名室内设计新手,除了设计、软件等技能,施工着实算得上是一个难点。比如,你知道不同材质该如何施工,不同材质之间又该如何施工让拼接效果更好吗?

设计方案最后是要落实的,需要以施工做支撑,设计师了解施工工艺就格外重要,今天我们就一起来寻找这些施工工艺上问题的答案。


文末附 设计必备装饰工艺解析宝典
01
地面

地面材质不同,在施工铺贴工艺上也不相同。地面地砖与石材的铺贴工艺大致相同,在卫生间进行铺贴时,还需加入防水层。



▲ 地砖铺贴


▲ 石材铺贴
石材和地板的拼接也是非常常见,除了使用金属条以外,无缝拼接一定程度上更加美观,大受欢迎。



现在,环氧磨石地坪和自流平等地面涂料也是很常见的地面做法,能做出更多不同的空间地面效果,也是设计师必须掌握的。



▲ 环氧磨石地坪


▲ 自流平
02
墙面

墙面常见材质一般为涂料、木饰面、石材等,这里具体说说墙面木饰面和石材上墙。
木饰面一般以人造板材为基层,经加工制作后成为装饰面板。木饰面可以采用胶粘法或干挂法,干挂法是最常见的方式,需要使用挂件来达成。

![]() | ![]() |
▲ 轻钢龙骨基层干挂木饰面


▲ 木龙骨干挂木饰面
石材上墙也是现在比较流行的做法,石材干挂工艺是常用施工工艺,相较于传统湿贴工艺来说,能更好的避免后期出现空鼓、开裂、脱落等现象。



▲ 混凝土墙体石材干挂


▲ 加气砌块墙体石材干挂
03
顶面

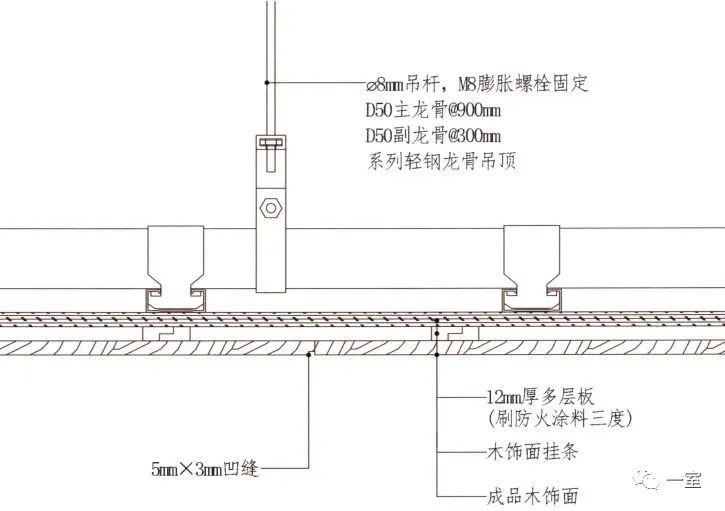
顶面除了使用频率最高的石膏板以外,还有木饰面、不锈钢等。
木饰面的吊顶,装饰效果强且富有个性。在施工时,需要在基层木工板上需进行防腐防潮处理,木饰面背面也需封漆。



不锈钢吊顶在整体空间中效果也非常优秀,尤其是近几年的水波纹不锈钢吊顶,在家装公装中都能见到。



当然,上面只是一些很基础的施工工艺,想成为一名合格的设计师还有墙地面不同材质相接、石膏板灯槽造型等更多的施工工艺要学习。所以这里小编为你准备了设计必备装饰工艺解析宝典,从墙、顶、地三个方面了解室内施工工艺。
设计必备装饰工艺解析宝典
本资料包含墙顶地面各种材质以及不同材质相接的施工工艺节点
资料总预览
【01】地面篇
【02】吊顶篇
【03】墙面篇
展示一:地面



















展示二:吊顶















展示三:墙面











▲以上仅为部分展示
全套资源 · 如何获取?
长按识别二维码极速获取

或:点击 “阅读原文” 快速获取




版权声明:我们尊重原创。文字美图素材,版权属于原作者。部分文章推送时因种种原因未能与原作者联系上,若涉及版权问题,敬请原作者联系我们,立即处理。


