工艺玩具
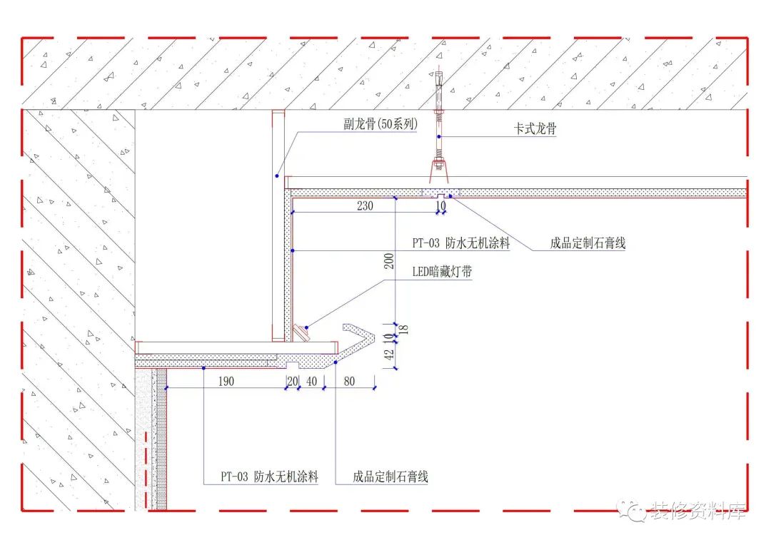
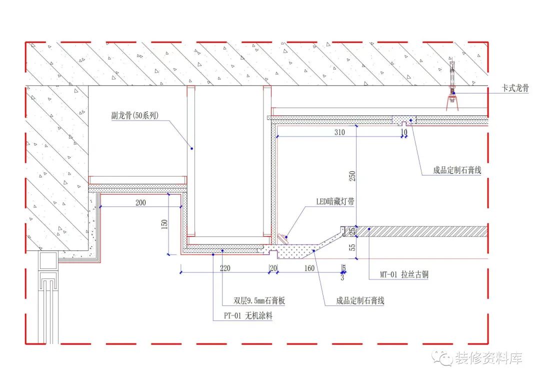
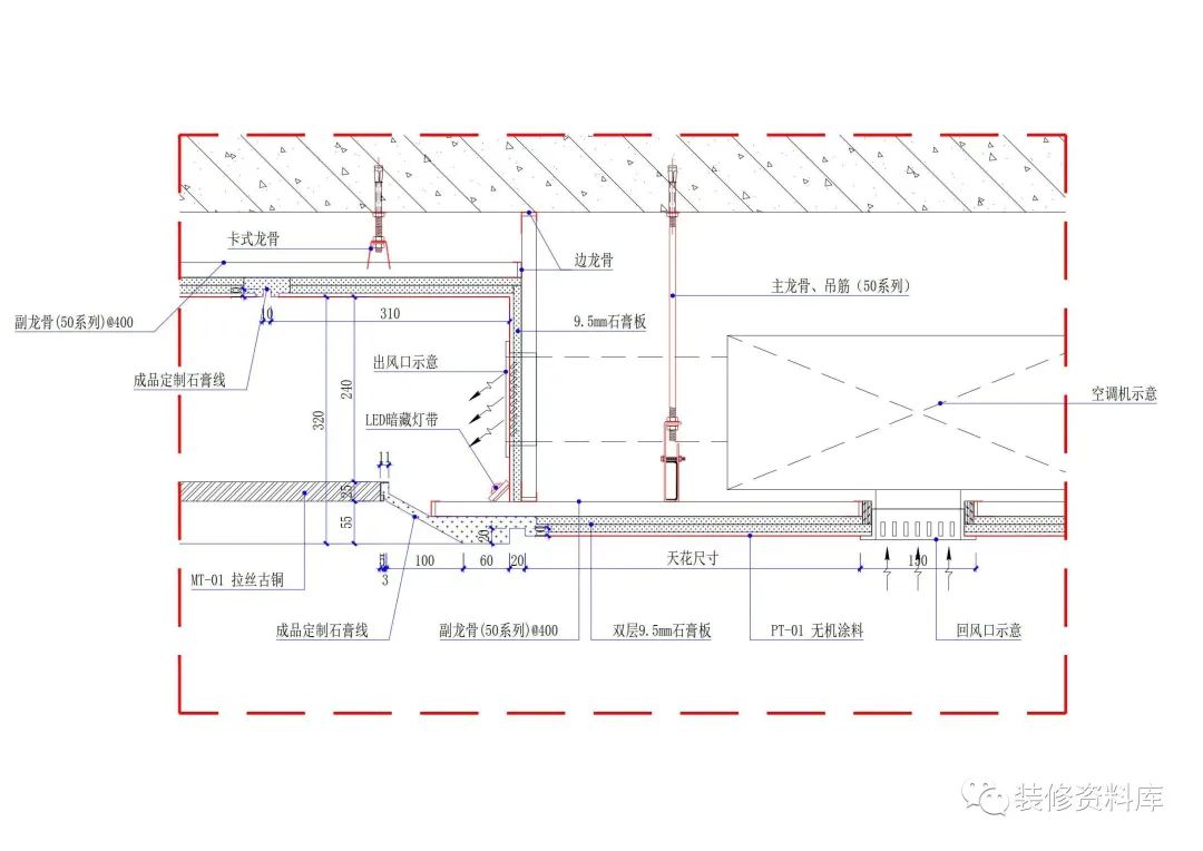
施工工艺节点三维模型+CAD图
2023-08-31 11:26

今天给大家分享一部分

《工艺节点三维图+CAD图》

希望对大家的工作有所帮助!

-扫码进入了解详情-


免责声明

以上图片以及资料内容来源于网络,由我方整理,版权归原著作者及其公司所有;本资料仅供学习研究之用,不得用于商业用途,若此图库侵犯到您的权益,请与我们联系删除

发表评论
0评