上期主要讲述了卫生间排水及地漏设计要点,本文承接上文主要讲述排水管道配件设计要点,供各位同行工作中参考使用。
1.伸缩节:粘接或热熔连接的塑料排水立管汇合配件处设置。

2.刚性防水套管(铸铁管采用B型,其他管材采用A型):地下室二级防水外墙侧壁和覆土顶板、建筑屋面、做防水处理的厨房楼板、卫生间、水泵房、垃圾房、隔油间、污水间、热水机房、雨水机房、水景机房、空调机房、设备平台、阳台、等有防水要求的场所楼板。
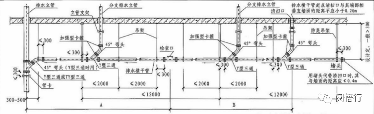
3.排水立管检查口设置:

(1)连接排水横支管的楼层及建筑物底层;
(2)立管拐弯处和乙字管的上部应设检查口;
(3)检查口中心高度距操作地面1.0m,并高于该层卫生器具上边缘0.15m;
(4)检查口应设置在H管件的上边;
(5)检查口的检查盖应面向便于检查清扫的方向。

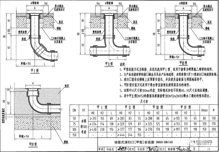
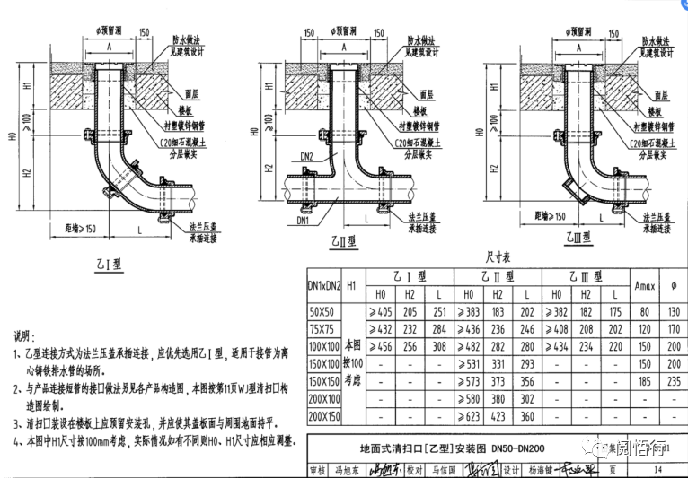
4.排水横管清扫口设置:

(1)铸铁排水横管:连接≥2个大便器或≥3个卫生器具;
(2)塑料排水横管:连接≥4个及4个以上的大便器;
(3)水流转角<135°;清扫口可采用带清扫口的转角配件替代;
(4)排出管上的清扫口至室外检查井中心的最大长度详见下表:
管径 (mm) | 50 | 75 | 100 | >100 |
最大长度(m) | 10 | 12 | 15 | 20 |
5.直线管段上清扫口之间的最大距离,详见下表:
管径(mm) | 距离 | |
生活废水 | 生活污水 | |
50~75 | 10 | 8 |
100~150 | 15 | 10 |
200 | 25 | 20 |
6.清扫口中心与其端部相垂直的墙面的净距离不得小于0.2m;
7.楼板下排水横管起点的清扫口与其端部相垂直的墙面的距离不得小于0.4m;
8.排水横管起点设置堵头代替清扫口时,堵头与墙面应有不小于0.4m的距离;
9.清扫口材质:
(1)铸铁排水管道:铜质;
(2)塑料排水管道:同质。
10.清扫口规格:
(1)≤75mm的排水管道:与管道同径;
(2)≥100mm的排水管道:与管道同径。
1.检查口及清扫口的安装可参考图集《建筑排水设备附件选用安装》04S301 。


11.当排水横管悬吊在转换层或地下室顶板下设置清扫口有困难时,可用检查口替代清扫口。

后记:本文如对您工作有所帮助,笔者甚是欣慰,笔者技术总结不易,如转发,请注明出处。
版权声明:本文部分图片来自于网络,侵权请联系删除。