甲方
你这个方案根本落不了地,都在瞎扯淡!
王工
不会啊,这几个地方我觉得挺好实现的。
甲方
放屁!你懂工艺吗?知道他怎么做出来的吗?
王工
不知道...
对于设计师来说,不能落地的方案,即便你设计得再酷炫,再天花乱坠,一切都是空谈!无论你做什么样的设计,都要在了解施工工艺和材料的基础上进行,否则的话,不就是瞎搞咯。

▲ 南浔绿地·文华府 / MBDI英斯佛朗
文末附顶级景观工艺做法集
你为什么要懂施工工艺?
要做好一个设计,第一条件就是你的方案要“做正确”,要能用,否则,即便你熬再多的夜,加再多的班,出来的也是废稿一份。

▲ 龙湖·天曜 / 犁墨景观
那么要如何做“正确”的方案呢?起码你得懂工艺做法,了解这个景观细部是怎么来了,好不好落地,在落地过程中会不会出现什么问题?才能继续将方案做下去。


▲ 图源网络
我有一个干工程的朋友,他们曾经接到某国际顶级公司设计的项目,刚拿到施工图就差点哭了:在一个入口大广场上用400*400mm的铺装,这不搞死施工员吗?还显得特别小气,最后还是靠他们把施工图重新优化一遍,才让这个项目做好。

其次,如果设计师对施工工艺、材料不熟悉的话,施工图根本不可能画好画专业!你要知道,施工图中的每一个节点,不但表达了设计师对细节的要求,还是内部结构工艺做法、材料与技术的直接体现。


▲ 图源网络
也就是说,如果你对施工工艺不熟悉的话,所画的施工图只会误导他人,最终呈现出来的项目效果,施工品质以及工程造价都大受影响!
了解施工工艺到底帮到你什么?
对于刚入职场的设计师来说,懂施工工艺能让你从根本上了解每个节点施工图的画法,从而更好地上手施工图,少走弯路。


▲ 图源网络
当你到了主创阶段,熟知工艺做法及材料,能够让你又快又准地画出可落地方案,面对甲方时,可以有理有据地从做法及材料的角度说服对方!


▲ 图源网络
当你到了总监阶段,那施工工艺则显得更为重要了。起码你在审图的时候,必须清晰了解最优的工艺做法,才能指导下面的该怎么画好,最终保证每一个项目的落地效果与质量。

▲ 图源网络
设计师必须拥有的顶级工艺做法!
对于我们设计师来说,一本顶级工艺做法集是必不可少的。今天推荐给你的这套顶级景观工艺做法集共400多页,它会告诉你系统的工艺做法、新型的材料工艺、先进的项目经验以及最优的施工做法。你想了解的工艺做法,都在里面!

系统的工艺做法
这本做法集分为地面、构筑物、水景、软景、配套5大类,并以此为基础细化出51个小类别,让你清晰、系统地了解各项工艺细节。


比方说你最常见的道路铺装,它里面就有多种不同材质的铺装工艺手法、各材料的优劣势、常见铺法、以及常用的规格及样式。




▲ 同一类材质里面的各类饰面效果,以及铺装规格、样式
新型的材料工艺
传统的景观元素我们做多了,但像这两年大火的风铃幕墙、幻彩玻璃等景观,你知道它的工艺做法吗?知道它需要注意哪些细节吗?
这套做法集里面都有清晰地告诉你其做法及注意事项。



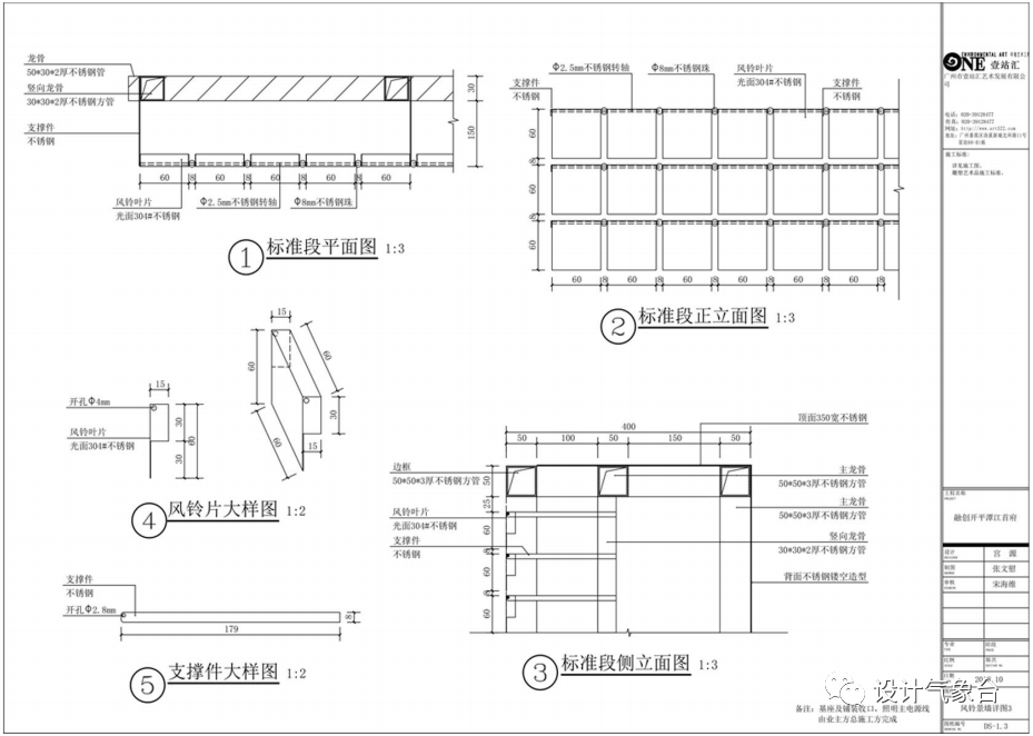
▲ 风铃幕墙的工艺做法



▲ 幻彩玻璃的做法及注意事项
先进的项目经验&最优的施工做法
这本做法集经过无数设计团队及施工团队的检验,凝聚出各细部设计的最优做法,让你少走弯路,指导施工团队又快又好地落地项目。



顶级大院景观工艺做法集



硬质铺装工艺部分预览





立面景墙工艺部分预览







构筑物工艺部分预览





水景工艺部分预览




软质景观工艺部分预览





配套景观工艺部分预览



获取方式




免责声明:
以上图片及资料内容部分来源于网络,由我方再整理,版权归原作者所有;若此图库侵犯到您的权益,请与我们联系删除。

