
实心圆柱产品在石材产品占有一定的比例,它由柱头、柱座、柱身构成。由于柱头、柱座、柱身的长度(高度),直径相差极大,因此对出材率(损耗率)的影响非常大。
圆柱出材率(损耗率)的计算适用于体积出材率计算法。
假定圆柱的柱座直径、柱身直径、柱头直径分别为d1、d2、d3;高度H1、H2、H3,使用长L、宽B、厚T的坯料加工n条实心柱,出材率公式:
P=n*(d1²*H1+d2²*H2+d3²*H3)/(L*B*T)*100%。如果是半圆实心柱,只要将体积除以2即可。
01
圆柱出材率计算
分以下几种情况:
1.1柱头、柱座、柱身直径、高度分别相同的出材率(损耗率)
P=n*(d1²*H1+d2²*H2+d3²*H3)/(L*B*T)*100%。
当加工的圆柱数量多要用N块坯料加工时, P=n*(d1²*H1+d2²*H2+d3²*L3)/(N*L*B*T)*100%。
实心圆柱出材率(损耗率)计算的基本知识:实心圆柱高度(长度)方向+30mm的余量;直径方向+10mm的余量,如果是半圆实心柱,则在直径方向+10mm余量,在半径方向+5mm余量。
实心圆柱的出材率(损耗率)计算与石材的荒料长、宽、厚,待加工的实心圆柱数量有很大的关系。

图1 图2
图1与图2是两种实心圆柱,分三种情况计算实心圆柱的出材率。一是客户购买图1圆柱;二是客户购买图2圆柱;三是客户购买图1、图3圆柱。
1.1.1不同荒料尺寸情况下对出材率(损耗率)的影响
图1实心柱尺寸:柱头直径320mm,高度280mm;柱座直径320mm,高度280mm;柱身直径260mm,高度1700mm。
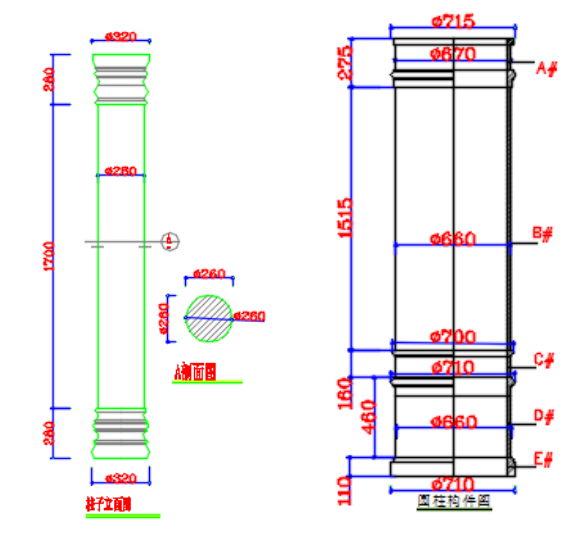
图2实心柱由A、B、C、D、E五部分组成,各部分尺寸:A部分直径715mm,高度275mm;B柱身直径660mm,高度1515mm;C部分直径710mm,高度160mm;D部分直径660,高度460mm;E部分直径710mm,高度110mm。
购买图1圆柱时:
图1的圆柱开料尺寸:柱头开料尺寸(320+10)*(320+10)*(280+30);柱座开料尺寸(320+10)*(320+10)(280+30;柱身的开料尺寸按(260+10)*(260+10)*(1700+30)。
情况一:荒料尺寸2300*1200*1200m³
由于荒料长度不够开出整条柱长度,开料方式按开料图3开料。
开料体积按柱头尺寸开料V=320*320*(280+280+1700)/109=0.231m³
此种情况下加工这条柱子的出材率P=0.231/(2.3*1.2*1.2)*100%=7%,损耗率=1-P=1-7%=93%。
从这个计算看显然是不正确的,没有那位客户接受这么做法,因为开料下来的大部分料还可以利用的。因此这种算法可以下面的进行。
按图3知道因为荒料长度不长,需要开1片330*330坯料才能加工出来这条柱,在这种情况下的出材率P=0.231/(2.3*0.33*1.2)*100%=25.3%,损耗率=1-25.3%=74.6%。
情况二:荒料尺寸2400*1200*1200m³
由于荒料长度够开出整条柱长度,开料方式按开料图4开料。
当荒料的长度尺寸为2400mm时,因为荒料的长度2400mm可以同时开出柱头、柱座、柱身,这种情况下只要开1片330*330*2400m3的料就可以了。

图3 图4
情况三:荒料尺寸2800*1450*1200
开料图见图5。
图5情况下由于荒料长度更长了,因此石材出材率更小,损耗率更大。

图5
购买图2圆柱时
情况一:荒料尺寸2300*1200*1200
由于整体柱长度为2520,因此该荒料的长度不够长,可以将整体柱开完,因此D部分需按图6方式开料方式可以开出一条柱子的料,开料图见图6。
图6
情况二:荒料尺寸2400*1200*1200
开料图与图6相同,只是荒料长度尺寸改变成2400mm。该荒料的长度同样不能开出一条柱,D部分需要按图7开料。

图7
情况三:荒料尺寸2800*1450*1200
该荒料的长度大于整条柱,因此可以将整体柱按A、B、C、D、E的顺序开出来,开料图见图8。
该情况下的石材出材率P=0.715*0.715*2.52/(2.8*1.2*1.45)*100%=26.4%,损耗率=1-P=73.5%。
该出材率计算方法显然不合理,客户是不会答应这么计算的,因此改进型的方法是将荒料修宽度,将1450方向开出一片710+10=720mm的坯料用于开图2的圆柱。此种情况下的荒料出材率将大大的提高,损耗率大大降低。剩下的料只能留到以后用了。

图9
作者 | 晏辉
未经授权请勿转载、欢迎转发朋友圈


