ART-CZEAIJ
见筑空间设计
FeelingLifeAndCreativity

项目背景
/
Time:2023.4
Acreage:242M²
Address:浙江金华
基地分析|LOCATIONANALYS
突出显示场景化概念,提供仪式感、场景化的不同价值体系设计。
I场地关系图

设计概念|DESIGNCONCEPT
让整个空间内所有元素似乎都处于动态、状态、无论是平滑的、还是有节奏的、营造了一种时尚与动感的氛围,可以看到设计师以橙红色为点缀。各种线条与充满韵律感的弧形曲线无处不在延展出空间流线型的视觉纵深感。
Let all the elements in the whole space seem to be in a dynamic state, whether smooth or rhythmic, creating a fashionable and dynamic atmosphere. You can see that the designer is decorated with orange and red. All kinds of lines and curved curves full of rhythm are everywhere, extending the visual depth of streamlined space.
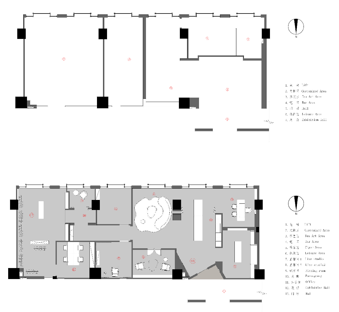
空间构成|SPACEANALYSIS
I平面布局
设计起初对空间结构和形式的塑造,均采用了极简的设计。在有限的空间中追求形态感和层次感,通过黑白搭配来展现空间比例和色彩和谐统一,强调时尚、实用、简约和空间的灵活性。浓郁的木纹、地毯等视觉元素强调材料、光影线条更具有艺术感。还采用了多样化的照明效果,营造非传统空间,将家具碰撞出艺术性和独特性的风格效果。
设计呈现|RENDERING
I展厅


“时尚简约的展厅”。白色作为主调色的展厅
暖白的灯光撒落在过道上,成为主导色彩设计的主体。
I吧区

软装配饰与家具以深色调为主,使整个空间的氛围沉稳大气。
用线条丰富空间层次感,再用绿植来调和庄严的气氛,自然又不失调皮。
I直播间


冷暖色调的搭配,营造出一种层次丰富、趣味十足的视觉感,
用木纹、挂画、壁炉等材料,丰富空间肌理,使得空间既治愈又很有质感。
结构与形式并存,
艺术与实用兼顾,
是我们始终如一的坚持。
Copyright©2020ART-CZEAIJSPACE.Allrightsreserved#
MoreAboutInformation
关注微信还有更多

见筑空间创意事务所
ART-C ZEAIJ
期待你的 | 关注 | 点赞 | 分享 | 在看 |
342603903@qq.com | 邮箱
15988578660 | 手机
342603903 | QQ




