轻改造爸妈的家?
2025-11-08 18:18
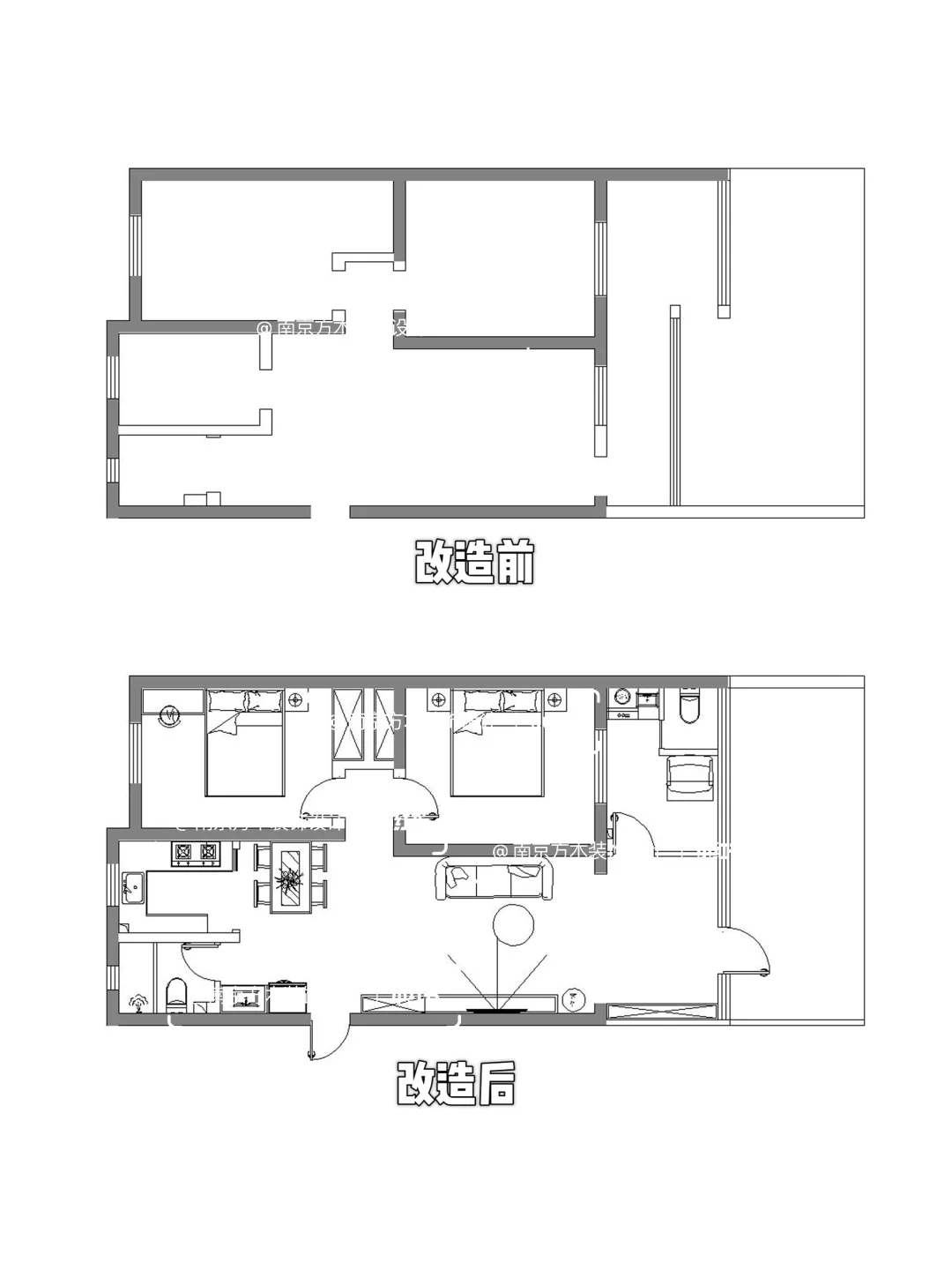
轻改造爸妈的家?





▫️户型为两房,女儿为老人装修的养老房,面积78㎡,业主要求,简洁整齐,希望有一个次净衣区,尽可能多点的收纳空间,动线划分合理。
▫️改造内容
去掉原有传统电视墙,做整排鞋帽柜背景墙一体柜,进门收纳整齐全解决
厨房门内移,给出餐厅空间,三联动门,U型橱柜,既可以增大厨房橱柜空间,又可以跟客厅阳台南北通透
阳台门连窗打通,不要移门,一体式客餐厅阳台,视觉通透,整体显大
阳台也被充分的利用起来,一边做洗衣空间,另一边做整面储物柜,增加收纳空间。
原创案例,感谢喜欢,更多改造案例将持续分享~~
#轻改造爸妈家 #记录吧就现在 #旧房改造 #装修前后对比 #老破小翻新改造 #老房改造翻新