家居用品
开放式设计让家多出20㎡活动区,是你的爱吗
2025-11-08 18:04
开放式设计让家多出20㎡活动区,是你的爱吗

开放式设计让家多出20㎡活动区,是你的爱吗

开放式设计让家多出20㎡活动区,是你的爱吗

开放式设计让家多出20㎡活动区,是你的爱吗

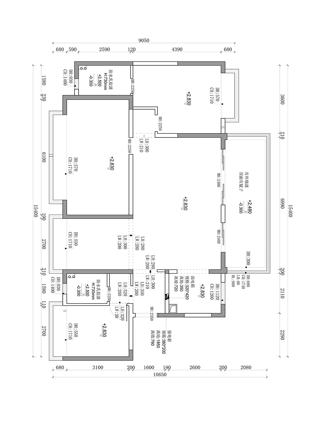
? **#空间魔法**
拆墙重组,释放公共区!客厅+书房无界串联,放大视野与互动感。主卧套间私密独立,次卧灵动可变。厨房延展岛台,餐厨一体超能装!
#装修设计 #装修 #装修避坑 #有限空间无限家 #空间布局规划 #打造个性空间 #提升空间感 #空间规划设计 #装修知识 #装修避雷 #户型改造 #装修小白 #平面布局 #户型优化布局 #方案优化 #我心爱的小角落 #空间改造 #开放式布局设计 #南宁同城 #南宁装修
发表评论
0评