家居用品
四室改两室,要的就是舒适❗❗❗
2025-11-08 17:34
四室改两室,要的就是舒适❗❗❗

四室改两室,要的就是舒适❗❗❗

四室改两室,要的就是舒适❗❗❗

四室改两室,要的就是舒适❗❗❗

四室改两室,要的就是舒适❗❗❗

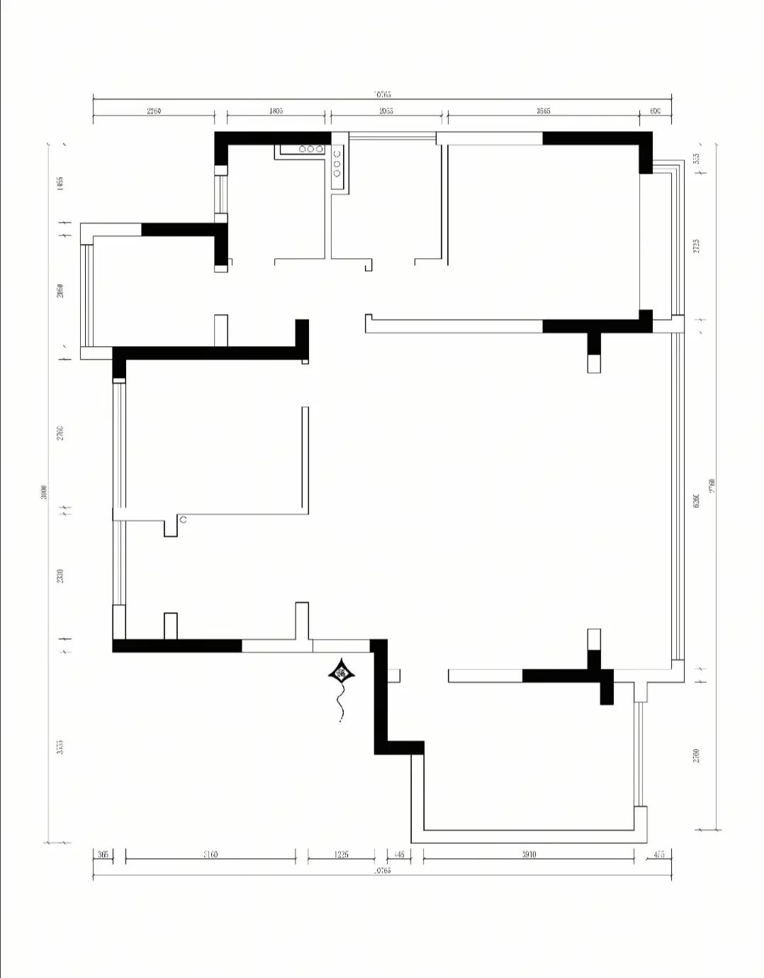
原户型三室两卫!
客户三口之家,基本上没有其他人过夜?️
需要多收纳,最好能有个衣帽间

厨房太小,没有餐厅,客厅不好摆放

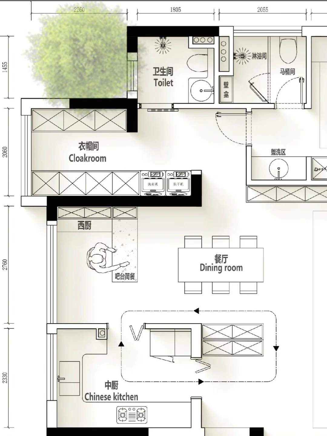
设计改造之后:
保留主卧和南次卧,保证私密性

相互不吵闹
两个北卧室一个改餐厅,一个改衣帽间增加收纳,衣帽间做个可床可柜的多功能柜和隐藏推拉门

厨房餐厅一体设计,环绕动线,中西厨结合,满足各种需求

客厅增加书房功能

入户玄关冰箱一体设计
#空间布局规划 #户型优化设计 #设计方案 #空间设计改造 #户型改造 #居住空间设计 #户型优化布局
发表评论
0评