99%的人忽略的布局秘诀!让空间放大3倍!
2025-11-08 17:23
99%的人忽略的布局秘诀!让空间放大3倍!



「户型再小,也能住出豪宅感!」
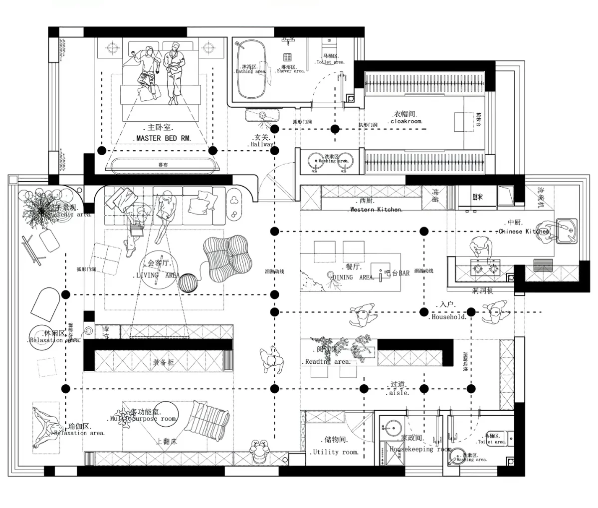
今天分享一套刚完工的168㎡户型改造方案✨
原始户型问题:
❌ 客厅狭小,采光差
❌ 动线混乱,储物不足
❌ 次卧利用率极低
? 我的改造思路:
1️⃣ 砸掉非承重墙 → 开放式LDK布局,瞬间通透!
2️⃣ 主次卧合并 → 打造带衣帽间的“套房式主卧”
3️⃣ 动线分明,功能互通,互动。
? 小户型必看细节:
✔️ 用玻璃隔断代替实墙,引光入室
✔️ 家具尺寸精准到厘米,榨干每1㎡
✔️ 动线规划“回字形”,家务效率提升50%
? 你以为的“缺陷户型”,其实只是缺个好设计!
#平面规划方案 #设计 #设计装修 #室内设计 #简约 #大气 #精致生活